Sommerhus - 6 personer - Am Yachthafen - 24376 - Olpenitz
Alternative emner
I nærheden (1.233)6 personer
Oversigt
Emne nr.: 552-193405
7 overnatninger
Fra
DKK 10.043,-
6
voksne
0
børn
- Soverum 2
- Badeværelser 1
- Boligareal 100 m²
- Husdyr 1
- Tilbyder miniferie Ja
- Afstand vand 10 m
- Afstand indkøb 1.200 m
- Sauna Ja
- Internet Ja
- Udsigt til vand Ja
- Opvaskemaskine Ja
- Ikkeryger Ja
Beskrivelse
Beskrivelsen foreligger desværre ikke på Dansk. Se teksten på Tysk nedenfor, eller se den maskinoversatte tekst på Dansk.
Ferienhaus "Auszeit" mit Sauna, Kamin, Südterrasse und 50 Metern zu Ostseestrand
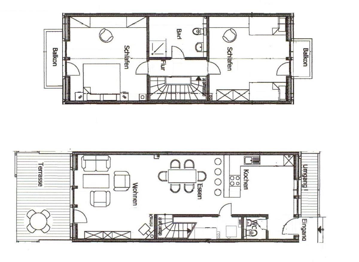
Das Ferienhaus "Auszeit" bietet auf 100 m² ein maritimes Flair, mit einem offen gestalteten Wohn- und Essbereich und einer integrierten Küche im Erdgeschoss. Oben liegen zwei Schlafzimmer, mit Boxspringbetten und Balkon, sowie ein großes Bad mit finnischer Sauna. Die Südterrasse bietet Gartenmöbel, einen Elektrogrill und einen traumhaften Blick auf den Yachthafen des Ostseeresort Olpenitz. Nur 50 Meter trennen das Haus vom privaten Strand der Olpenitz Badebucht. Ein Parkplatz ist verfügbar.
Auf einer Fläche von etwa 100 Quadratmetern vermittelt das Ostsee-Ferienhaus "Auszeit" bereits beim Betreten ein maritimes Ambiente.
Das Erdgeschoss zeichnet sich durch einen offen gestalteten Wohn- und Essbereich mit integrierter Küche aus. Im Obergeschoss befinden sich zwei Schlafzimmer sowie ein geräumiges Badezimmer mit finnischer Sauna.
Beide Schlafzimmer sind mit einem Boxspringbett, einem Schlafsessel, einem Loewe-Fernseher und einem Balkon mit Blick auf die Schlei oder den Yachthafen ausgestattet. Sämtliche Fenster verfügen über elektrische Außenjalousien.
Das Badezimmer beinhaltet neben einem großen Waschtisch und einem WC eine finnische Sauna sowie eine ebenerdige Luxusdusche mit exklusiver Kopfbrause. Im Erdgeschoss befindet sich zusätzlich ein Gäste-WC.
Die private, nach Süden ausgerichtete Terrasse mit Blick auf den Yachthafen ist mit Gartenmöbeln, einem Elektrogrill und einem Sonnenschirm ausgestattet. Von hier aus können die ein- und auslaufenden Schiffe beobachtet werden.
Das Haus mit der roten Fassade grenzt unmittelbar an den Yachthafen im Ostseeresort Olpenitz. Der private, feinsandige Strand in geschützter Lage ist weniger als 50 Meter entfernt.
Kinder sind in diesem herzlich Haus willkommen. Ein Kinderbett und ein Hochstuhl sind vorhanden.
Ein privater Parkplatz steht vor dem Haus zur Verfügung.
Das Ferienhaus Auszeit ist Teil des nördlichen, exklusiven Ostseeresorts Olpenitz. Bitte beachten Sie, dass es in der Umgebung teilweise noch zu Bautätigkeiten kommen kann. Gerne informieren wir Sie über den genauen derzeitigen Stand. Wir haben jedoch leider keine genauen Informationen wann zukünftig welche Arbeiten ausgeführt werden.
Vores gæsteanmeldelser Eksterne anmeldelser
Faciliteter
-
Afstand
-
Afstand indkøb1,2 km
-
Byafstand5 km
-
Lufthavnsafstand125000 km
-
Restaurant afstand1,2 km
-
Strandafstand200 m
-
Sø afstand10 m
-
-
Aktiviteter
-
Basketball
-
Boccie
-
Bueskydning
-
Bådudlejning
-
Cykling
-
Dykning
-
Fiskeri
-
Fitness træning
-
Fodbold
-
Golf
-
Jogging
-
Kajaksejlads
-
Kano
-
Minigolf
-
Mountainbike
-
Nordic walking
-
Pilates
-
Ridning
-
Roning
-
Sejlads
-
Surfing
-
Svømning
-
Tennis
-
Trekking
-
Vandreture
-
Vandski
-
Vandsport
-
Yoga
-
-
Badeværelse
-
Badeværelse vindue
-
Bruseantal1
-
Bruser
-
Gæstetoilet1
-
Håndvask
-
Hårtørrer
-
Tørretumbler
-
WC
-
-
Grundlæggende
-
Børn velkomne
-
Ikke-ryger
-
Kvadratmeter100 m²
-
Værelser3
-
-
Hus
-
Blu-Ray
-
Brandalarm
-
CDs
-
DVD
-
DVDs
-
Familie
-
Fireside
-
Flueskærm
-
Garderobe
-
Havudsigt
-
Internet
-
Komfur
-
Kultur
-
Lounge siddepladser
-
Makeup spejl
-
Mulighed for mørklægning af rummet
-
Oprindeligt udstyret
-
Radiator
-
Radio
-
Rundstykkeservice
-
Røgalarm
-
Sauna
-
Senge6
-
Shopping
-
Skraldespand
-
Skænk
-
Sofa
-
Sovesofaer til én2
-
Spejl
-
Spisebord
-
Spisepladser
-
Spisestue
-
Strygebræt
-
Strygejern
-
Stue
-
Støvsuger
-
TV
-
TV antal3
-
Underfloor heating
-
Varmt vand
-
Vaskemaskine
-
WiFi
-
-
Køkken
-
Blander
-
Elkedel
-
Fryser
-
Kaffemaskine
-
Køkken
-
Køkkenredskaber
-
Køleskab
-
Mikroovn
-
Opvask
-
Opvaskemaskine
-
Ovn
-
Toaster
-
-
Udendørs
-
Antal parkeringspladser1
-
Gril
-
Have
-
Havemøbler
-
Parasol
-
Privat P-plads
-
Terrasse
-
Miniferie
Der er begrænset mulighed for miniferie hele året, typisk uden for højsæsonen.
Priser og kalender
Kalender
Varighed
Personer
Pris
Periode
- Ankomst
- Afrejse
- Varighed
- 1 uge
Personer
Ingen personer er valgt
Bemærk
Ankomst er ikke valgt.
Der er ikke valgt personer.
