Sommerhus - 5 personer - 24376 - Olpenitz
Alternative emner
I nærheden (1.233)5 personer
Oversigt
Emne nr.: 354-DE-24376-142
7 overnatninger
Fra
DKK 13.200,-
- Soverum 2
- Badeværelser 1
- Boligareal 102 m²
- Husdyr Ikke tilladt
- Tilbyder miniferie Ja
- Afstand indkøb 6.500 m
- Internet Ja
- Handicapvenligt Ja
- Vaskemaskine Ja
- Tørretumbler Ja
- Opvaskemaskine Ja
Beskrivelse
Ferielejlighed i Olpenitz med sauna
Bolig:
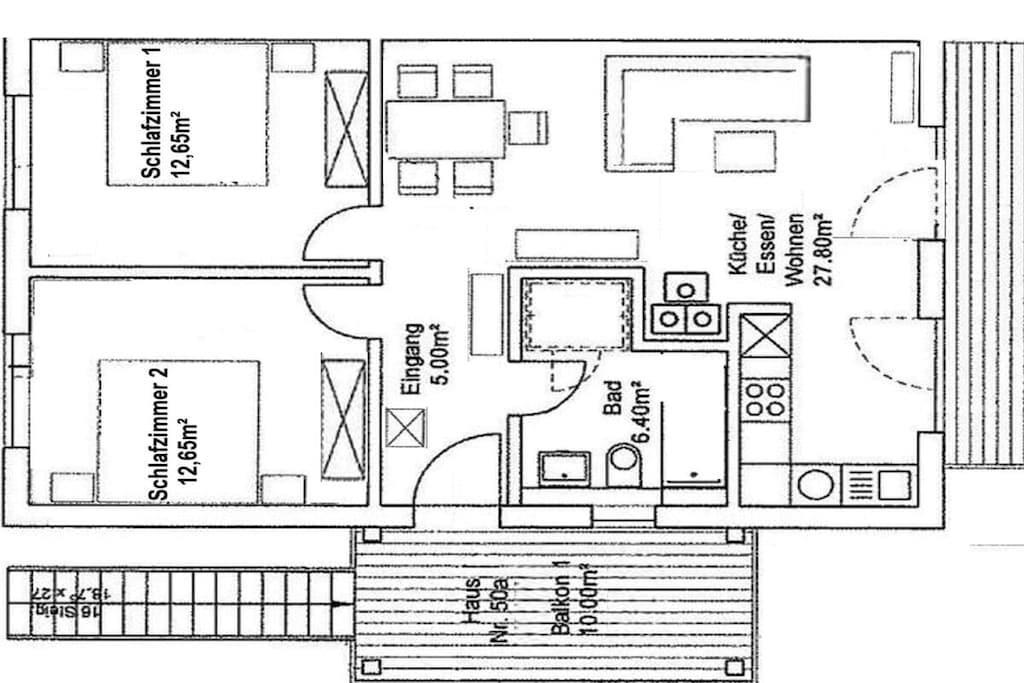
Nyt fra 2025 Luksuriøst dobbelthus "Schleivilla Hafenblick by Seeblick Ferien ORO" Oplev en uforglemmelig ferie i det luksuriøse dobbelthus "Schleivilla Hafenblick by Seeblick Ferien ORO", der ligger direkte ved havnen i OstseeResort Olpenitz. Denne eksklusive ferievilla ligger på en smal halvø mellem Sliens udmunding og lystbådehavnen og tilbyder en betagende udsigt over den travle havn og Østersøen. Sol hele dagen og spektakulær udsigt Terrasserne i denne drømmeagtige bolig tilbyder solskin hele dagen lang – fra solopgang til solnedgang. Hver etage har et attraktivt udendørsområde, hvor højdepunktet er den 360° tagterrasse, der tilbyder en sensationel panoramaudsigt. Herfra kan du nyde udsigten over lystbådehavnen, Østersøen, Sliens udmunding, Slifjorden og det omkringliggende naturreservat. Opholds- og spisestue i stueetagen Den lyse stueetage i det 102 m² store feriehus Schleivilla Hafenblick by Seeblick Ferien ORO har en åben opholds- og spisestue. Herfra har du direkte adgang til terrassen ved havet – perfekt til morgenmad i morgensolen eller en grill med udsigt over havnens aktivitet. Den komfortable opholdsstue inviterer dig til at slappe af med en sofa, et smart-tv med hjemmeunderholdning og højhastighedsinternet. En brændeovn skaber en hyggelig atmosfære i de køligere måneder. Ved siden af ??opholdsstuen ligger spisestuen med et rummeligt bord og stole. Det åbne køkken er fuldt udstyret og lader intet tilbage at ønske, inklusive en kaffemaskine til kaffeelskere. Afslapningsområde på øverste etage På første sal er der to soveværelser med udsigt over vandet. Soveværelset, der vender ud mod havnen, er møbleret med en dobbeltseng og tilbyder adgang til en balkon og den store tagterrasse. Det andet soveværelse har udsigt over Sli-fjorden og har to fleksible enkeltsenge. Begge soveværelser er udstyret med ekstra fladskærms-tv og mørklægningsgardiner. En femte soveplads er placeret i stuen på sofaen. Spa-badeværelse og andre faciliteter På første sal er der også et moderne spa-badeværelse med bruser og finsk saunakabine – naturligvis med udsigt over vandet. Et gæstetoilet er også tilgængeligt i stueetagen. Hele Schleivilla Hafenblick by Seeblick Ferien ORO er udstyret med gulvvarme, hvilket garanterer komfort og varme året rundt. Praktiske faciliteter og en fantastisk beliggenhed To gratis parkeringspladser er tilgængelige foran huset, samt et aflåseligt cykelskur med opladningsmuligheder til elcykler og en wallbox til din elbil. Dette dobbelthus imponerer ikke kun med sin komfort, men også med sin unikke beliggenhed. Den lille, hvide sandstrand ved OstseeResort Olpenitz ligger kun omkring 700 meter væk, ligesom havnepromenaden og eventyrlegepladsen. Den kilometerlange sandstrand ved Weidefelder, som også tilbyder livreddere og et bredt udvalg af vandsport, er let tilgængelig. Med vores eksklusive bagerileveringsservice ønsker vi at tilbyde dig en afslappende og ubekymret ferie. Ingen travlhed, ingen kø i supermarkedet – i stedet kan I nyde friskbagt bagværk hver morgen uden at forlade jeres feriehus. Velkommen ombord! Ferie med havudsigt fra Seeblick Ferien ORO Holder I ferie sammen – men bor hver for sig? Denne villa på Slien, Hafenblick fra Seeblick Ferien ORO, kombineret med Schleivilla Kapitän James Cook2 fra Seeblick Ferien ORO, er også perfekt til en stor familie eller to par/små familier, der ønsker at holde ferie sammen, men bo hver for sig: I samme bygning, men i den anden halvdel, tilbyder disse to villaer tilsammen plads til op til 10 personer, samtidig med at de stadig giver den nødvendige privatliv! Vigtig information om jeres Schleivilla Hafenblick fra Seeblick Ferien ORO: Bemærk venligst, at el- og vandomkostninger ikke er inkluderet i lejeprisen. Disse faktureres separat efter forbrug. Dette giver jer mulighed for at overvåge jeres individuelle forbrug og sikre en fair fakturering. For din bekvemmelighed tilbyder vi muligheden for at booke sengelinned og håndklæder som linnedpakker direkte hos bureauet Seeblick Ferien ORO. Prisen er cirka 24 EURO pr. person. Hvis du booker disse linnedpakker, vil dine senge være redt ved din ankomst. Forkæl dig selv med ren afslapning med vores saunapakke (21 EURO pr. saunapakke)! Book nu og få en eksklusiv badekåbe og et saunahåndklæde. Som et særligt højdepunkt inkluderer pakken en wellness-brusebombe. Fordyb dig i en verden af ??afslapning og forkæl dig selv med den perfekte forkælelsesoplevelse.
Layout:
, , , , Stue(, , , , bibliotek, enkeltsovesofa, Fjernsyn, Fjernsyn, pejs, radio, CD-afspiller, stereoanlæg, varme, legetøj), Køkken(, tekøkken, spisebord, kogeplade, elkedel, brødrister, kaffemaskine, ovn, grill, mikrobølgeovn, opvaskemaskine , køleskab, fryser, barnestol, Foodprocessor), soveværelse(, dobbeltseng, barneseng), soveværelse(, dobbeltseng), badeværelse(, , toilet, bruser, håndvask, føntørrer), guest toilet(guest toilet), loungerum(sauna), Internetadgang, Førstehjælp, tørretumbler, vaskemaskine, balkon(balkon), have(havemøbler, solstole, Haveskur), parkering, strygebræt, strygejern, tørreskab, Vaskeripakke mod et gebyr
Bolig:
Nyt fra 2025 Luksuriøst dobbelthus "Schleivilla Hafenblick by Seeblick Ferien ORO" Oplev en uforglemmelig ferie i det luksuriøse dobbelthus "Schleivilla Hafenblick by Seeblick Ferien ORO", der ligger direkte ved havnen i OstseeResort Olpenitz. Denne eksklusive ferievilla ligger på en smal halvø mellem Sliens udmunding og lystbådehavnen og tilbyder en betagende udsigt over den travle havn og Østersøen. Sol hele dagen og spektakulær udsigt Terrasserne i denne drømmeagtige bolig tilbyder solskin hele dagen lang – fra solopgang til solnedgang. Hver etage har et attraktivt udendørsområde, hvor højdepunktet er den 360° tagterrasse, der tilbyder en sensationel panoramaudsigt. Herfra kan du nyde udsigten over lystbådehavnen, Østersøen, Sliens udmunding, Slifjorden og det omkringliggende naturreservat. Opholds- og spisestue i stueetagen Den lyse stueetage i det 102 m² store feriehus Schleivilla Hafenblick by Seeblick Ferien ORO har en åben opholds- og spisestue. Herfra har du direkte adgang til terrassen ved havet – perfekt til morgenmad i morgensolen eller en grill med udsigt over havnens aktivitet. Den komfortable opholdsstue inviterer dig til at slappe af med en sofa, et smart-tv med hjemmeunderholdning og højhastighedsinternet. En brændeovn skaber en hyggelig atmosfære i de køligere måneder. Ved siden af ??opholdsstuen ligger spisestuen med et rummeligt bord og stole. Det åbne køkken er fuldt udstyret og lader intet tilbage at ønske, inklusive en kaffemaskine til kaffeelskere. Afslapningsområde på øverste etage På første sal er der to soveværelser med udsigt over vandet. Soveværelset, der vender ud mod havnen, er møbleret med en dobbeltseng og tilbyder adgang til en balkon og den store tagterrasse. Det andet soveværelse har udsigt over Sli-fjorden og har to fleksible enkeltsenge. Begge soveværelser er udstyret med ekstra fladskærms-tv og mørklægningsgardiner. En femte soveplads er placeret i stuen på sofaen. Spa-badeværelse og andre faciliteter På første sal er der også et moderne spa-badeværelse med bruser og finsk saunakabine – naturligvis med udsigt over vandet. Et gæstetoilet er også tilgængeligt i stueetagen. Hele Schleivilla Hafenblick by Seeblick Ferien ORO er udstyret med gulvvarme, hvilket garanterer komfort og varme året rundt. Praktiske faciliteter og en fantastisk beliggenhed To gratis parkeringspladser er tilgængelige foran huset, samt et aflåseligt cykelskur med opladningsmuligheder til elcykler og en wallbox til din elbil. Dette dobbelthus imponerer ikke kun med sin komfort, men også med sin unikke beliggenhed. Den lille, hvide sandstrand ved OstseeResort Olpenitz ligger kun omkring 700 meter væk, ligesom havnepromenaden og eventyrlegepladsen. Den kilometerlange sandstrand ved Weidefelder, som også tilbyder livreddere og et bredt udvalg af vandsport, er let tilgængelig. Med vores eksklusive bagerileveringsservice ønsker vi at tilbyde dig en afslappende og ubekymret ferie. Ingen travlhed, ingen kø i supermarkedet – i stedet kan I nyde friskbagt bagværk hver morgen uden at forlade jeres feriehus. Velkommen ombord! Ferie med havudsigt fra Seeblick Ferien ORO Holder I ferie sammen – men bor hver for sig? Denne villa på Slien, Hafenblick fra Seeblick Ferien ORO, kombineret med Schleivilla Kapitän James Cook2 fra Seeblick Ferien ORO, er også perfekt til en stor familie eller to par/små familier, der ønsker at holde ferie sammen, men bo hver for sig: I samme bygning, men i den anden halvdel, tilbyder disse to villaer tilsammen plads til op til 10 personer, samtidig med at de stadig giver den nødvendige privatliv! Vigtig information om jeres Schleivilla Hafenblick fra Seeblick Ferien ORO: Bemærk venligst, at el- og vandomkostninger ikke er inkluderet i lejeprisen. Disse faktureres separat efter forbrug. Dette giver jer mulighed for at overvåge jeres individuelle forbrug og sikre en fair fakturering. For din bekvemmelighed tilbyder vi muligheden for at booke sengelinned og håndklæder som linnedpakker direkte hos bureauet Seeblick Ferien ORO. Prisen er cirka 24 EURO pr. person. Hvis du booker disse linnedpakker, vil dine senge være redt ved din ankomst. Forkæl dig selv med ren afslapning med vores saunapakke (21 EURO pr. saunapakke)! Book nu og få en eksklusiv badekåbe og et saunahåndklæde. Som et særligt højdepunkt inkluderer pakken en wellness-brusebombe. Fordyb dig i en verden af ??afslapning og forkæl dig selv med den perfekte forkælelsesoplevelse.
Layout:
, , , , Stue(, , , , bibliotek, enkeltsovesofa, Fjernsyn, Fjernsyn, pejs, radio, CD-afspiller, stereoanlæg, varme, legetøj), Køkken(, tekøkken, spisebord, kogeplade, elkedel, brødrister, kaffemaskine, ovn, grill, mikrobølgeovn, opvaskemaskine , køleskab, fryser, barnestol, Foodprocessor), soveværelse(, dobbeltseng, barneseng), soveværelse(, dobbeltseng), badeværelse(, , toilet, bruser, håndvask, føntørrer), guest toilet(guest toilet), loungerum(sauna), Internetadgang, Førstehjælp, tørretumbler, vaskemaskine, balkon(balkon), have(havemøbler, solstole, Haveskur), parkering, strygebræt, strygejern, tørreskab, Vaskeripakke mod et gebyr
Faciliteter
-
Afstand
-
Banegård43,5 km
-
Centrum3 km
-
Diverse2,9 km
-
Lufthavn127 km
-
Restauranter1,7 km
-
Shopping6,5 km
-
-
Andre
-
Gæstetoilet
-
Hårtørrer
-
Linnedpakke mod betaling
-
Radiator
-
Strygebræt
-
Strygejern
-
Terrasse
-
Tørreskab
-
-
Byggestatus
-
Top placering
-
-
Børn
-
Børneseng
-
Højstol
-
Legetøj
-
-
Generel Information
-
Boligareal102 m²
-
WiFi
-
-
Handicap - Mål
-
Frihøjde under håndvasken >= 70 cm
-
-
Hjemmesikkerhed
-
Førstehjælpskasse
-
-
Køkkenudstyr
-
Blander
-
Elkedel
-
Food processor
-
Fryser
-
Grill
-
Kaffemaskine
-
Kogeplade
-
Køleskab
-
Mikroovn
-
Opvaskemaskine
-
Ovn
-
Toaster
-
-
Parkfaciliteter
-
Førstehjælp
-
Internetadgang
-
-
Rundt om huset
-
Have
-
Havemøbler
-
Haveskur
-
Mole
-
Parkering
-
Sun loungers
-
-
Sanitet / Vask
-
Bruser
-
Håndvask
-
Tørretumbler
-
Varmt vand
-
Vaskemaskine
-
-
Type
-
Feriebolig
-
-
Værelsesudstyr
-
CD afspiller
-
Garderobe
-
Lænestol
-
Makeup-spejl
-
Pejs
-
Radio
-
Sikkerheds boks
-
Spejl
-
Spil
-
Spisebord
-
Stereoanlæg
-
Stikdåser
-
Støvsuger
-
TV
-
Ventilator
-
Miniferie
Der er begrænset mulighed for miniferie de næste 4 uger.
Priser og kalender
Kalender
Varighed
Pris
Periode
- Ankomst
- Afrejse
- Varighed
- 1 uge
Personer
Op til 5 personer
Bemærk
Ankomst er ikke valgt.
