Arkitekttegnet sommerhus med wellness og aktiviteter
Sommerhus - 12 personer - Strandvænget - Vejlby Klit - 7673 - Harboøre
Alternative emner
I nærheden (481)12 personer
Oversigt
Emne nr.: 121-20-2100
7 overnatninger
Fra
DKK 6.955,-
Valgfri rengøring: DKK 1.497,-
Moderne sommerhus med wellness, natur og aktiviteter ved Vejlby Klit.
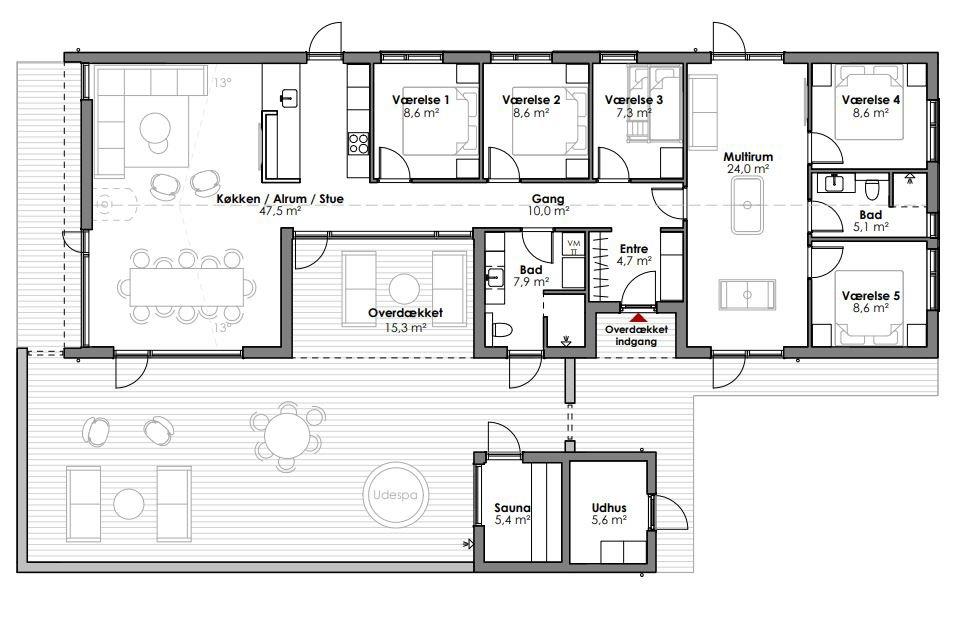
- Soverum 5
- Badeværelser 2
- Boligareal 170 m²
- Grundareal 2.077 m²
- Husdyr 1
- Tilbyder miniferie Ja
- Afstand vand 450 m
- Afstand indkøb 300 m
- Spa Ja
- Sauna Ja
- Internet Ja
- Brændeovn Ja
- Aktivitetsrum Ja
- Udsigt til vand Ja
- Vaskemaskine Ja
- Tørretumbler Ja
- Opvaskemaskine Ja
- Ikkeryger Ja
- Ladestander til elbil Ja
- Energivenligt Ja
Beskrivelse
Plads til hygge, oplevelser og forkælelse – hele året.
Glæd jer til et ophold i et arkitekttegnet, moderne, energivenligt og bæredygtigt sommerhus midt i Vejlby Klits fantastiske natur. Her får I en ferie, hvor wellness, nærvær og naturoplevelser går hånd i hånd.
Huset er indrettet med omtanke i naturlige materialer, en varm atmosfære og masser af plads til både afslapning og samvær – og med fem rummelige soveværelser, to badeværelser og et stort, lyst køkken-alrum er der god plads til hele familien. Udenfor venter jeres private wellnessområde med udendørsspa, koldtvandskar og sauna – perfekt til både rolige morgener og afslutning på en aktiv dag ved Vesterhavet.
Fra stuen er der direkte udgang til en stor terrasse med både solrige områder og overdækket hyggekrog, som indbyder til udendørs middage, grill og stille stunder. Brændeovnen indendørs sørger for ægte feriestemning på kølige dage. Multirummet giver ekstra plads til sjov med poolbord, bordfodbold og PlayStation, så der er underholdning uanset vejret.
Lige overfor huset finder I Vejlby Klit Feriepark, hvor børn og voksne i højsæsonen kan lege løs med minigolf, hoppepuder, legepladser og boldbaner. Sommerhuset ligger tæt på både stranden, klitterne og områdets mange oplevelser. Nyd en gåtur i det rå, smukke vestjyske landskab eller besøg Lemvig og Thyborøn med spændende attraktioner, hyggelige havnemiljøer og gode spisesteder. Et feriehus, der kombinerer komfort, kvalitet og bæredygtighed – og giver den perfekte base for en uforglemmelig ferie i Vestjylland. Glæd jer til ro, velvære og Vesterhavets magi.
Indretning
Sommerhuset egner sig til 12 personer samt 1 barn op til 3 år. 4 af sovepladserne er kun egnet til større børn (4-11 år). Ferieboligen er på 170 m² og er bygget i 2026. Det er tilladt at medbringe 1 husdyr. Ferieboligen er udstyret med energibesparende luft til vand varmepumpe. Hele ferieboligen har gulvvarme. Ferieboligen har vaskemaskine. Tørretumbler. Der er desuden brændeovn. Til de små er der 1 stk. barnestol.
Udenfor
Ferieboligen er beliggende på en 2077 m² stor naturgrund. Der er 450 m til havet. Nærmeste forretning er beliggende i en afstand af 300 m. Til ferieboligen hører åbent terrasseareal. Desuden er der overdækket terrasse. Der ligger en legeplads i en afstand af 20 m. Udendørs sauna. Udendørs bruser. Grill til rådighed. Der er installeret stik til opladning af elbil. Type 2 stik. Med 11 kW ladeeffekt. Parkering ved ferieboligen.
Aktivitetsrum
I aktivitetsrummet er der følgende udstyr: Poolbord. Airhockey.
Soveforhold
Der er i alt 5 soveværelser. Sovepladserne fordeler sig på: 8 sovepladser i dobbeltsenge. 4 sovepladser i køjesenge. Derudover er der 1 stk. barneseng.
Køkken
Køkkenet er udstyret med 1 køleskab. Der er 4 keramiske kogeplader, 2 varmluftovne, mikrobølgeovn samt opvaskemaskine.
Toilet og bad
Der er 2 badeværelser med bruseniche og 2 toiletter. Der er gulvvarme på 2 badeværelser.
Spa
Der er mulighed for afslapning i udendørs standvandsspa til 5 personer.
Multimedier
2 Smart-TV. 2 Chromecasts. TV via internet. Der er 1-3 danske kanaler. 1-3 tyske kanaler. Der er trådløst internet til rådighed.
Værd at vide
Ingen udlejning til ungdomsgrupper, hvor alle er 15-25 år. Rygning ikke tilladt. Ved overtrædelse af forbuddet opkræves et gebyr på minimum DKK 3.000,-.
Indretning
Sommerhuset egner sig til 12 personer samt 1 barn op til 3 år. 4 af sovepladserne er kun egnet til større børn (4-11 år). Ferieboligen er på 170 m² og er bygget i 2026. Det er tilladt at medbringe 1 husdyr. Ferieboligen er udstyret med energibesparende luft til vand varmepumpe. Hele ferieboligen har gulvvarme. Ferieboligen har vaskemaskine. Tørretumbler. Der er desuden brændeovn. Til de små er der 1 stk. barnestol.
Udenfor
Ferieboligen er beliggende på en 2077 m² stor naturgrund. Der er 450 m til havet. Nærmeste forretning er beliggende i en afstand af 300 m. Til ferieboligen hører åbent terrasseareal. Desuden er der overdækket terrasse. Der ligger en legeplads i en afstand af 20 m. Udendørs sauna. Udendørs bruser. Grill til rådighed. Der er installeret stik til opladning af elbil. Type 2 stik. Med 11 kW ladeeffekt. Parkering ved ferieboligen.
Aktivitetsrum
I aktivitetsrummet er der følgende udstyr: Poolbord. Airhockey.
Soveforhold
Der er i alt 5 soveværelser. Sovepladserne fordeler sig på: 8 sovepladser i dobbeltsenge. 4 sovepladser i køjesenge. Derudover er der 1 stk. barneseng.
Køkken
Køkkenet er udstyret med 1 køleskab. Der er 4 keramiske kogeplader, 2 varmluftovne, mikrobølgeovn samt opvaskemaskine.
Toilet og bad
Der er 2 badeværelser med bruseniche og 2 toiletter. Der er gulvvarme på 2 badeværelser.
Spa
Der er mulighed for afslapning i udendørs standvandsspa til 5 personer.
Multimedier
2 Smart-TV. 2 Chromecasts. TV via internet. Der er 1-3 danske kanaler. 1-3 tyske kanaler. Der er trådløst internet til rådighed.
Værd at vide
Ingen udlejning til ungdomsgrupper, hvor alle er 15-25 år. Rygning ikke tilladt. Ved overtrædelse af forbuddet opkræves et gebyr på minimum DKK 3.000,-.
Faciliteter
-
Adgang til ferieboligen
-
Nøgleboks med kode
-
-
Aktivitetsrum
-
Air hockey
-
Aktivitetsrum
-
Poolbord
-
-
Bemærk
-
Ingen håndværkere efter anmodning
-
Ingen ungdomsgrupper efter anmodning
-
Rygning er forbudt
-
-
Indretning
-
Antal børn (0-3 år)1
-
Antal børn 4-11 år4
-
Antal voksne inkl. 4-11 år12
-
Bebygget areal170 m²
-
Brændeovn1
-
Byggeår2026
-
Feriebolig
-
Gulvvarme
-
Husdyr1
-
Højstol1
-
Tørretumbler1
-
Varmepumpe
-
Varmepumpe luft til vand
-
Vaskemaskine1
-
-
Køkken
-
Antal keramiske kogeplader4
-
Køleskab1
-
Mikrobølgeovn1
-
Opvaskemaskine1
-
Varmluftovn2
-
-
Multimedier
-
0-3 danske kanaler
-
0-3 tyske kanaler
-
Antal tv'er2
-
Chromecast2
-
Smart-Tv2
-
Trådløst internet
-
TV igennem
-
-
Soveforhold
-
Antal soveværelser5
-
Barneseng1
-
Dobbeltseng (antal sovepladser)8
-
Køjeseng (antal sovepladser)4
-
-
Spa
-
Udendørs forfyldt spabad (antal personer)5
-
-
Toilet og bad
-
Antal badeværelser2
-
Antal toiletter2
-
Brusekabine
-
Gulvvarme2
-
-
Udenfor
-
Butik300 m
-
Elbil hjemmeoplader
-
Grill1
-
Hav450 m
-
KW udgangseffekt11
-
Ladestik type 2
-
Legeplads20
-
Lukket terrasse
-
Natursted
-
Overdækket terrasse
-
Parkeringsplads ved huset
-
Størrelse af grunden2077 m²
-
Terrasse
-
Udendørs bruser
-
Udendørs sauna
-
-
Udsigt
-
Udsigt over søen fra huset
-
Udsigt over søen fra stedet
-
Miniferie
Der er begrænset mulighed for miniferie hele året, typisk uden for højsæsonen.
Priser og kalender
Kalender
Varighed
Pris
Periode
- Ankomst
- Afrejse
- Varighed
- 1 uge
Personer
Op til 12 personer
Bemærk
Ankomst er ikke valgt.
