Hyggeligt sommerhus nær Vejers Strand

Sommerhus - 6 personer - Engesøvej - Vejers Nordøst - 6853 - Vejers Strand

Hyggeligt sommerhus nær Vejers Strand med moderne faciliteter og tre dobbeltsoveværelser, perfekt til en afslappende ferie i naturskønne omgivelser.

Beskrivelse

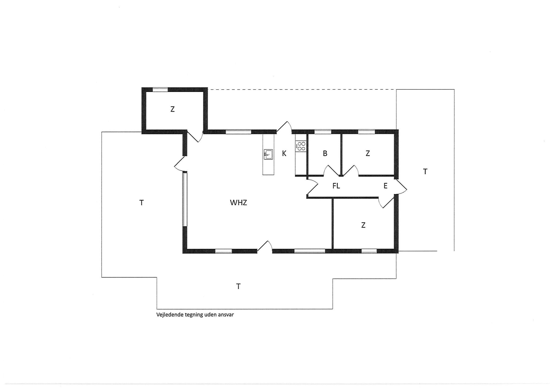
Hyggeligt, nyrenoveret sommerhus beliggende på skøn naturgrund. Stuen har plads nok til 6 personer. Stranden ligger ca. 1000 meter fra huset inden for gåafstand. God parkering til rådighed ved huset. Opholdsstuen er i åbent plan med spiseplads og køkken. Et hyggeligt sofahjørne med en fantastisk udsigt. Mellem sofahjørnet og læsehjørnet i huset er der en hængende pejs. Dette giver en hyggelig varme. Tyske tv-programmer kan også modtages. Der er YouSee-appen til at se tv og Smart TV. Desuden er der også Bluetooth-højttalere.  Det moderne og veludstyrede køkken har komfur med keramisk kogeplade, ovn, mikroovn, opvaskemaskine og køleskab med fryser.  Badeværelset er udstyret med gulvvarme og har håndvask, toilet og bruser. I alt tre soveværelser er tilgængelige for gæsterne. Alle tre soveværelser er udstyret med dobbeltsenge (DB + DB + DB). Sommerhuset har internetforbindelse (W-Lan).  Sommerhuset er opført i 1978 og flot renoveret i 2024.  Der er tre skønne terrasseområder omkring huset, hvor en af dem er også delvist dækket. Her kan du følge solen på alle tider af dagen og krydre med en kop kaffe om eftermiddagen eller med en grill. (El-grill kun til afbenyttelse om sommeren)

MAX 1 lille hund er tilladt. Rygning er IKKE tilladt i huset.

 

HUSDYR:
1 lille hund tilladt.

GODT AT VIDE:
Ingen udlejning til ungdomsgrupper.
Fri parkering uden for ferieboligen.
Delvis overdækket terrasse.
Forbrug afregner efter aflæsning.
Vandforbrug er inklusiv i prisen.
Rengøring er inklusiv i prisen.
3 soveværelser med dobbeltseng (160x200 cm).
Det er muligt at låne barneseng og højstol fra kontoret.
Sengelinned er ikke inkluderet men kan tilkøbes.
Energispare-hus.

NÆRMESTE INDKØB:
Bageri 1,5 km fra ferieboligen. Supermarked "Storkøb" 1,6 km fra ferieboligen.

OFFENTLIG TRANSPORT:
Nærmeste station ligger i Oksbøl ca. 10 km fra Vejers.

Populære faciliteter

  • Soverum 3
  • Badeværelser 1
  • Boligareal 65 m²
  • Grundareal 2.588 m²
  • Husdyr 1
  • Tilbyder miniferie Nej
  • Afstand vand 1 km
  • Afstand indkøb 600 m
  • Internet Ja
  • Brændeovn Ja
  • Opvaskemaskine Ja
  • Ikkeryger Ja
  • Energivenligt Ja

Alle faciliteter

  • Soverum

    • Antal soveværelser
      3
    • Soverum 1: Antal dobbeltsenge
      1
    • Soverum 2: Antal dobbeltsenge
      1
    • Soverum 3: Antal dobbeltsenge
      1
  • Køkken og hvidevarer

    • Mikrobølgeovn
    • Opvaskemaskine
    • Køle-/fryseskab
    • Antal Køkkener
      1
    • Separat ovn
    • Kogeplader
  • Wellness, bad og toiletforhold

    • Antal badeværelser/rum
      1
    • Bad med toilet, bruser og vask
  • Multimedier

    • Internetadgang
    • Dansk TV
    • Fjernsyn
    • Tysk TV
    • YouSee TV
    • Smart-Tv
    • Bluetooth højtaler
  • Husinfo

    • Husdyr tilladt
    • Max antal hunde
      1
    • Rygning er ikke tilladt
    • Kat er ikke tilladt
    • Byggeår
      1978
    • Husets m²
      65
    • Renoveret
      2024
    • Max antal personer
      6
    • Ingen ungdomsgrupper tilladt
    • Vandforbrug inklusiv i lejen
    • Energispare-hus
    • Grundareal
      2588
    • Privat parkering ved huset
  • Udendøre

    • Overdækket terrasse
    • Træ terrasse
    • Delvis lukket terrasse
    • Kul Grill (sommersæson)
  • Diverse

    • Nyhed
  • Afstand til:

    • Afstand til strand
      1 km
    • Afstand til indkøb
      600 m
    • Afstand til restaurant
      600 m
  • Segmenter

    • Slow-Life
  • Ferie koncepter

    • Børnevenligt
    • Ankomstdag lørdag
    • Prisregulering +/- 15 %
  • Varmekilder

    • Brændeovn
    • Klimaanlæg med varme
    • Gulvvarme i bad
  • Stue

    • Antal Stuer
      1
  • Faciliteter

    • Dobbeltværelse
      3
    • Person antal
      6
    • Grill (sommer sæson)

Miniferie

Prices and calendar

Kalender

Ankomst
Forrige Næste
  • maj 2026
    mationtofr
    18123
    1945678910
    2011121314151617
    2118192021222324
    2225262728293031
    23
  • juni 2026
    mationtofr
    231234567
    24891011121314
    2515161718192021
    2622232425262728
    272930
    28
   Se om emnet er ledigt på den valgte dato
Ledig
Optaget
   Ankomst mulig
Varighed

Pris

Periode
Ankomst
Afrejse
Varighed
1 uge
Personer
Op til 6 personer

Bemærk

Ankomst er ikke valgt.
Aftale- og lejebetingelser