Sommerhus - 5 personer - Skarntydevej - Lønstrup - 9800 - Hjørring
Alternative emner
I nærheden (433)Oversigt
- Soverum 3
- Badeværelser 1
- Boligareal 98 m²
- Grundareal 1.220 m²
- Husdyr Ikke tilladt
- Tilbyder miniferie Ja
- Afstand vand 600 m
- Afstand indkøb 625 m
- Internet Ja
- Parabol/kabel TV Ja
- Brændeovn Ja
- Aircondition Ja
- Vaskemaskine Ja
- Tørretumbler Ja
- Opvaskemaskine Ja
- Ikkeryger Ja
- Energivenligt Ja
Beskrivelse
Lyst og indbydende sommerhus centralt i Lønstrup
Vil du gerne bo centralt og samtidig roligt i den hyggelige kystby Lønstrup på din næste ferie? Så skal du kigge nærmere på dette dejlige sommerhus, der ligger på den lukkede Skarntydevej – bare en kort og hyggelig gåtur fra hovedgadens fine udvalg af spisesteder, butikker og gallerier.
Velkommen indenfor
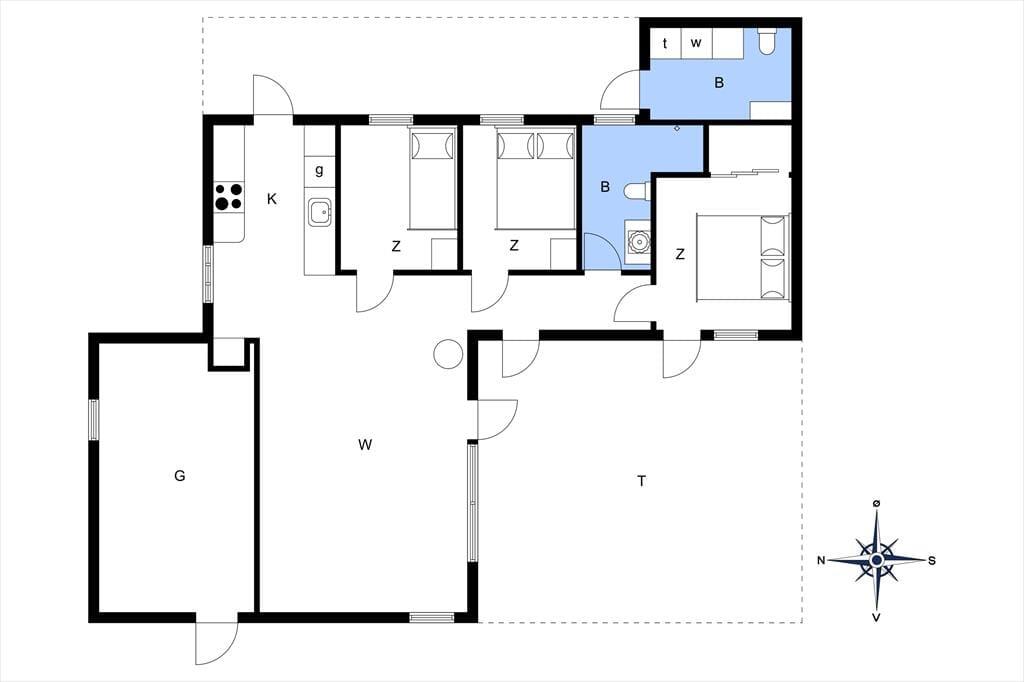
Inden døre i sommerhuset er atmosfæren lys og venlig, og hvis du er taget på ferie for at slappe af med tykke bøger, lækker mad og gode hyggesnakke, har du valgt helt rigtigt. I løbet af dagen strømmer sollyset ind gennem stuens store vinduer, og når mørket falder på, og vejret indbyder til det, er det skønt at tænde op i brændeovnen og lade varmen sprede sig. Et veludstyret køkken ligger i åben forbindelse med stuen, og planløsningen byder derudover på et brusebadeværelse og tre gode soveværelser med i alt fem sengepladser. Det største soveværelse har for øvrigt direkte udgang til den sydvestvendte terrasse, og ved terrassen mod øst finder du et ekstra toilet med vaskemaskine og tørretumbler, så det er muligt at få frisket feriegarderoben op, hvis børnene får ispletter på tøjet.
Nyd livet udenfor
Hvis du er her med din familie eller med venner, der elsker havespil og udendørs lege, kan I glæde jer over, at sommerhusgrunden byder på en stor og plan græsplæne. Her kan I frit udfolde jer – og hvis I har brug for mere plads, ligger der et grønt fællesareal med fodboldmål tæt på huset. Er du mere i humør til at sidde helt roligt med morgenkaffen eller nyde en god frokost i solen, kan du slå dig ned på en af de gode terrasser, der breder sig ved huset. På den ellers åbne østterrasse er der et lille overdækket areal i forlængelse af køkkenet, mens den sydvestvendte terrasse er delvist afskærmet, så der er gode chancer for at finde læ.
Kom tæt på de lokale oplevelser
Skarntydevej er en rolig og lukket grusvej, og via stier og småveje er det nemt at komme ud i det hyggelige sommerhusområde – for eksempel hvis du vil begive dig ud mod Harerenden eller op på Lønstrup Klint for at beundre udsigten over Vesterhavet. Du kan også spadsere ind til Lønstrups bymidte, hvis du vil kigge i butikker med kunsthåndværk eller besøge nogle af byens mange gallerier og arbejdende kunstnerværksteder. En god bid mad kan du også sagtens finde, for Lønstrup byder på alt, lige fra ishuse og caféer til michelinrestauranten Villa Vest. Skallerup Seaside Resort er stedet, hvor du kan invitere børnene i badeland eller ud at bowle, og for alle naturelskere er det et must at besøge Rubjerg Knude.
Husk, at du altid kan låne trækvogne, barnestole og barnesenge hos os i Lønstrup. Du kan hente dem direkte på bureauet og returnere dem til os igen, når din ferie er vel overstået.
Vores gæsteanmeldelser Eksterne anmeldelser
Faciliteter
-
Hus Info
-
2 x WC
-
Antal voksne5
-
Bruser
-
Byggeår1984
-
Grundareal / Naturgrund1220 m²
-
Husareal98 m²
-
Renoveringsår2017
-
-
Afstande
-
Afstand golfbane3,4 km
-
Afstand indkøb / Helårsbutik625 m
-
Afstand restaurant685 m
-
Afstand strand / Sand-/stenstrand600 m
-
-
Energi / Opvarmning
-
Brændeovn
-
Varmepumpe / Med køl
-
-
Hårde hvidevarer
-
Elkedel
-
Emhætte
-
Fryser90
-
Kaffemaskine
-
Komfur
-
Køleskab
-
Mikroovn
-
Opvaskemaskine
-
Strygebræt
-
Strygejern
-
Tørretumbler
-
Vaskemaskine
-
-
Multimedier
-
Dansk tvInkl. TV2
-
Gratis Wi-Fi - Under 5 Mbit
-
Parabol
-
TV
-
Tysk TV
-
-
Ekstra
-
Golfferie
-
-
Udenfor
-
Havemøbler
-
Liggestole2
-
Parasol
-
Parkering på grunden
-
Åben terrasse40 m²
-
-
Diverse
-
2 x Dobbeltseng 1x160x200
-
2 x Gulvvarme
-
Enkeltseng 1x90x200
-
-
Regler
-
Husdyr ikke tilladt
-
Opladning af elbil ikke tilladt
-
Rygning ikke tilladt
-
-
Pris inklusiv
-
Slutrengøring inkl.
-
-
GAMMEL
-
Radio
-
Miniferie
Priser og kalender
Kalender
Pris
- Ankomst
- Afrejse
- Varighed
- 1 uge
