Sommerhus - 4 personer - Fuglegræsvej - 9800 - Lønstrup
Alternative emner
I nærheden (404)Oversigt
- Soverum 2
- Badeværelser 1
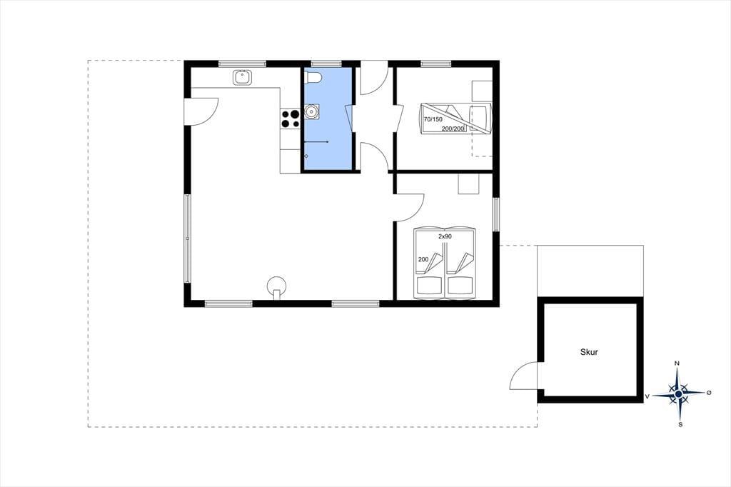
- Boligareal 66 m²
- Grundareal 1.206 m²
- Husdyr Ikke tilladt
- Tilbyder miniferie Ja
- Afstand vand 1 km
- Afstand indkøb 720 m
- Internet Ja
- Parabol/kabel TV Ja
- Brændeovn Ja
- Vaskemaskine Ja
- Ikkeryger Ja
- Energivenligt Ja
Beskrivelse
Lyst og venligt sommerhus for enden af lukket vej i Lønstrup
Fuglegræsvej 6 er den helt rette feriedestination for dig, der drømmer om at slappe af i et hyggeligt sommerhus i fredelige omgivelser. Her på adressen kan du og dine kære koble af i stuen nær brændeovnen eller sole jer på en grønne grund – og selvom huset ligger for enden af en lukket vej, har I samtidig nem adgang til Lønstrups bymidte og Vesterhavet.
Velkommen indenfor
Den gode sommerhusstemning bliver slået an lige fra start, for med træbeklædning på væggene og komfortabelt møblement har alle rum en varm og venlig atmosfære. Vinduerne sørger for et godt lysindfald, og stuens temperatur kan du hurtigt skrue op for takket være brændeovnen og varmepumpen. Hvis det slet ikke er koldt, men lunt udenfor, er der en dør ud til terrassen lige ved køkkenet, så du kan invitere frisk luft og sommerdufte ind i opholdsrummet. Køkkenet er for øvrigt af nyere dato, så du har en dejlig arbejdsstation, når du vil lave frokost eller blot brygge kaffe til eftermiddagens brætspil.
Nyd livet udenfor
Sommerhusgrundens store, grønne græsplæne indbyder til fangeleg og fodbold med børnene – eller en rolig stund på et tæppe med udsigt til de forbipasserende skyer på himlen. Foretrækker du at sidde lidt mere civiliseret, kan du slå dig ned på sommerhusets dejlige terrasse, der breder sig mod syd og vest. Når aftenen nærmer sig, kan du overveje, om det er tid til at tænde op i enten grillen eller bålfadet, for det er herligt at sidde helt roligt i havens fredfyldte omgivelser, mens skyggerne bliver lange, og fuglene synger fra trætoppene.
Husk, at du altid kan låne trækvogne, barnestole og barnesenge hos os i Lønstrup. Du kan hente dem direkte på bureauet og returnere dem til os igen, når din ferie er vel overstået.
Faciliteter
-
Hus Info
-
Antal voksne4
-
Bruser
-
Byggeår1978
-
Grundareal1206 m²
-
Husareal66 m²
-
Renoveringsår2020
-
WC
-
-
Afstande
-
Afstand indkøb720 m
-
Afstand restaurant720 m
-
Afstand strand1 km
-
-
Energi / Opvarmning
-
Brændeovn
-
Varmepumpe
-
-
Hårde hvidevarer
-
Elkedel
-
Emhætte
-
Kaffemaskine
-
Komfur
-
Køleskab med frys
-
Mikroovn
-
Vaskemaskine
-
-
Multimedier
-
Chromecast
-
Dansk tv
-
Gratis Wi-Fi - Over 20 Mbit
-
Kabel-TV
-
Norsk TV
-
Svensk TV
-
TV
-
Tysk TV
-
-
Udenfor
-
Grill
-
Havemøbler
-
Liggestole2
-
Parasol1
-
Parkering på grunden
-
Terrasse
-
-
Diverse
-
2 x Dobbeltseng
-
Køje
-
-
Regler
-
Husdyr ikke tilladt
-
Opladning af elbil ikke tilladt
-
Rygning ikke tilladt
-
-
Pris inklusiv
-
Brænde inkl.
-
Slutrengøring inkl.
-
Vand inkl.
-
Miniferie
Priser og kalender
Kalender
Pris
- Ankomst
- Afrejse
- Varighed
- 1 uge
