Alternative emner
I nærheden (298)
Hyggeligt sommerhus tæt på strand og natur
Sommerhus - 6 personer - Agertoften - 9480 - Løkken
-
Løkken
-
6 personer
-
Boligareal116 m²
-
Emne nr.:548-999216200
Hyggeligt sommerhus i Nørre Lyngby, kun 800 m fra Vesterhavet, med skovgrund, terrasse og moderne køkken.
Beskrivelse
Information omkring ankomst bliver sendt som besked 4 dage før ankomst
Hyggeligt ugenert sommerhus 800 m. fra stranden
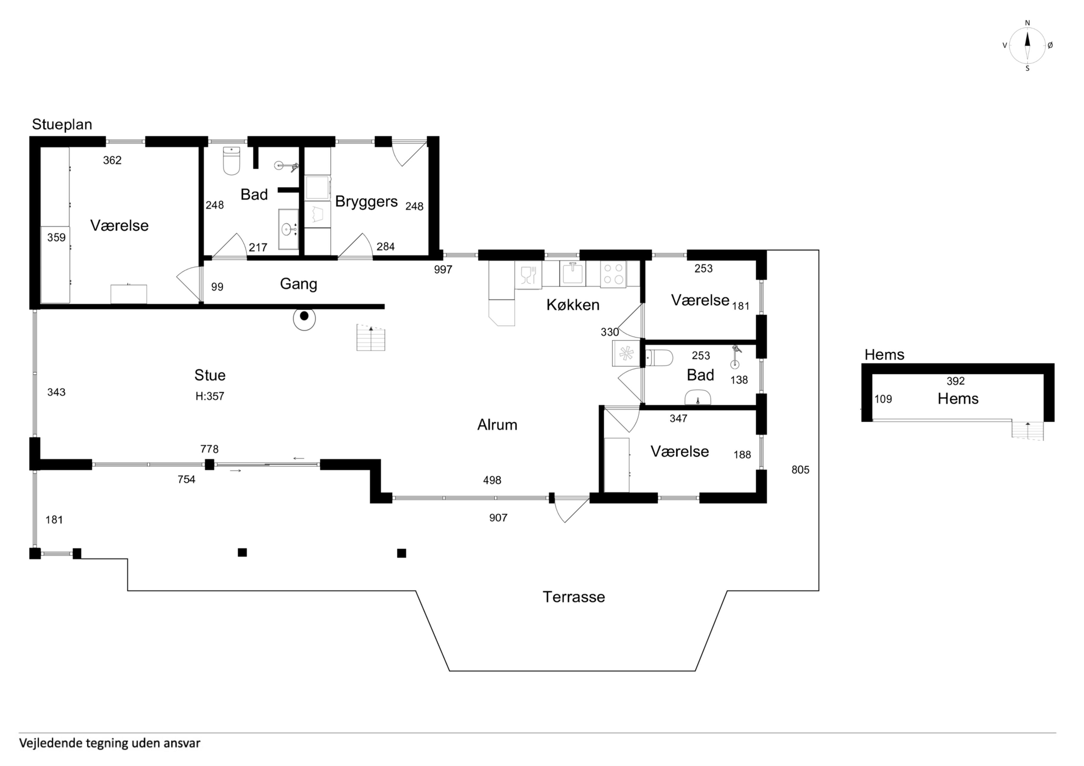
Sommerhuset er beliggende i Nørre Lyngby, 4 km nord for Løkken og 10 km syd for Lønstrup og 25 km fra Blokhus. Der er således nem adgang til flere af de hyggelige byer i området, som byder på et væld af aktiviteter, spisesteder og liv. I Nørre Lyngby er der roligt og hyggeligt, og med under 800 meter til Vesterhavet. Nørre Lyngby strand har fint hvidt sand og smukke stejle klitter. Stranden har det hvide badeflag, som bl.a. symboliserer, at badevandskvaliteten er høj. Huset ligger på en 2.250 m2 grund, der både rummer græsarealer og skov. På grunden er der desuden et shelter til fri afbenyttelse. Grunden ligger roligt og ugenert ud til en grusvej. Huset er på 116 m2 og består af en oprindelig, men renoveret, del fra 1969, og en nybygget del fra 2014. Man kommer ind i huset igennem bryggerset, hvor man til den ene side har et stort soveværelse med dobbeltseng (180x200) og et badeværelse, og til den anden side kommer ind i køkken/alrummet. Køkkenet er fra 2023 og rummer fint plads til 6 personer. Fra alrummet er der adgang til husets meget hyggelige og rummelige stue hvor der både er brændeovn og en sofagruppe. Her er der forskellige bøger og spil til fri afbenyttelse. Herudover er der adgang til en hyggelig hems. Fra både stue og alrummet er der adgang til en delvist overdækket terrasse. Fra køkkenet er der adgang til husets andet badeværelse. Herudover er der adgang til husets to øvrige mindre soveværelser. Det ene består af 2 senge på 70x190 og det andet værelse har 2 boksmadrasser på 80x200.
Hyggeligt sommerhus beliggende tæt på Løkken på en grund med græs og skov. Huset har 3 soveværelser, hyggeligt køkken/alrum i åben forbindelse til en skøn stue med brændeovn og fantastisk lysindfald. Herudover er der bryggers og 2 badeværelser
Hyggeligt ugenert sommerhus 800 m. fra stranden
Sommerhuset er beliggende i Nørre Lyngby, 4 km nord for Løkken og 10 km syd for Lønstrup og 25 km fra Blokhus. Der er således nem adgang til flere af de hyggelige byer i området, som byder på et væld af aktiviteter, spisesteder og liv. I Nørre Lyngby er der roligt og hyggeligt, og med under 800 meter til Vesterhavet. Nørre Lyngby strand har fint hvidt sand og smukke stejle klitter. Stranden har det hvide badeflag, som bl.a. symboliserer, at badevandskvaliteten er høj. Huset ligger på en 2.250 m2 grund, der både rummer græsarealer og skov. På grunden er der desuden et shelter til fri afbenyttelse. Grunden ligger roligt og ugenert ud til en grusvej. Huset er på 116 m2 og består af en oprindelig, men renoveret, del fra 1969, og en nybygget del fra 2014. Man kommer ind i huset igennem bryggerset, hvor man til den ene side har et stort soveværelse med dobbeltseng (180x200) og et badeværelse, og til den anden side kommer ind i køkken/alrummet. Køkkenet er fra 2023 og rummer fint plads til 6 personer. Fra alrummet er der adgang til husets meget hyggelige og rummelige stue hvor der både er brændeovn og en sofagruppe. Her er der forskellige bøger og spil til fri afbenyttelse. Herudover er der adgang til en hyggelig hems. Fra både stue og alrummet er der adgang til en delvist overdækket terrasse. Fra køkkenet er der adgang til husets andet badeværelse. Herudover er der adgang til husets to øvrige mindre soveværelser. Det ene består af 2 senge på 70x190 og det andet værelse har 2 boksmadrasser på 80x200.
Hyggeligt sommerhus beliggende tæt på Løkken på en grund med græs og skov. Huset har 3 soveværelser, hyggeligt køkken/alrum i åben forbindelse til en skøn stue med brændeovn og fantastisk lysindfald. Herudover er der bryggers og 2 badeværelser
Populære faciliteter
- Soverum 3
- Badeværelser 2
- Boligareal 116 m²
- Husdyr Ikke tilladt
- Tilbyder miniferie Ja
- Afstand vand 0 km
- Afstand indkøb 0 km
- Spa Ja
- Internet Ja
- Gode fiskeforhold Ja
- Vaskemaskine Ja
- Tørretumbler Ja
- Opvaskemaskine Ja
- Ikkeryger Ja
Alle faciliteter
-
Indendørs
-
Antal (ekstra) barnesenge / børnesenge1
-
Antal (ekstra) børnestole1
-
Antal badeværelser2
-
Antal dobbeltsenge1
-
Antal enkeltsenge4
-
Antal madrasser2
-
Antal soveværelser3
-
Antal stuer1
-
Baby bad
-
Baby seng
-
Babystol (er)/højstol (r) på forespørgsel
-
Barneseng (er)/barneseng (er) efter anmodning
-
Blu-ray-afspiller
-
Boligareal (m²)116
-
Brandslukker
-
Bruser
-
Brætspil/Puzzlespil
-
Byggeår1969
-
DVD
-
Fladskærms TV
-
Førstehjælpskasse
-
Golf Equipment
-
Hårtørrer
-
Kulilte detektor
-
Legetøj
-
Liggestole
-
Radiator
-
Radio
-
Rengøringsprodukter
-
Røgalarm
-
Samlet antal værelser5
-
Seneste år, hvor boligen blev moderniseret2014
-
Skab
-
Spa faciliteter
-
Spa/wellness -pakker
-
Stereo
-
Støvsuger
-
TV
-
Tørretumbler
-
Vaskemaskine
-
WiFiGratis
-
-
Køkken
-
Elkedel
-
Fryser
-
Grundlæggende madlavning (gryder og pander)
-
KaffemaskineNormal
-
Kapacitet fryser (i liter)72
-
Krydderier
-
Køkken
-
Køkken komfurKeramisk
-
Køkkenredskaber
-
Køkkenredskaber til børn
-
Køleskab
-
Mikrobølgeovn
-
Opvaskemaskine
-
Ovn
-
Sandwich maker
-
Toaster
-
Vinglas
-
-
Udendørs
-
Grill
-
gynge
-
Have
-
Legeplads
-
ParkeringPrivat parkeringsplads
-
Terrasse
-
Udendørs møbler
-
Udendørs pejs eller bålplads
-
-
Egnethed
-
Huset er for ikke-rygere
-
Huset er ikke egnet til grupper af unge
-
Huset er velegnet til at sejle
-
Huset er velegnet til børn
-
Huset er velegnet til ridning
-
-
Strand
-
Strand
-
-
Diverse
-
Bar
-
Bowling
-
Cykling
-
Dykning
-
Fiskeri
-
Golf
-
Helt i stueetagen
-
Huset har et romantisk udseende
-
Live musik/performance
-
Massage
-
Minigolf
-
Mountainbike
-
Natklub/DJ
-
Nærliggende Zoo
-
Privat indgang
-
Restaurant1
-
Vandland
-
Vandreruter
-
Vandreture
-
Miniferie
Der er begrænset mulighed for miniferie hele året, typisk uden for højsæsonen.
Prices and calendar
Pris
Periode
- Ankomst
- Afrejse
- Varighed
- 1 uge
Personer
Ingen personer er valgt
Bemærk
Ankomst er ikke valgt.
Der er ikke valgt personer.