Hyggeligt sommerhus tæt på strand og by

Sommerhus - 6 personer - Ane Mariesvej - 9480 - Løkken

Hyggeligt sommerhus i Løkken med dejlig have, to terrasser og tæt på stranden og byens faciliteter.

Beskrivelse

Dejligt sommerhus som skaber rammerne for en hyggelig ferie i Nordjylland. Ligger i stille og roligt område, og har en dejlig have med skønne terrasser.

Velkommen indenfor
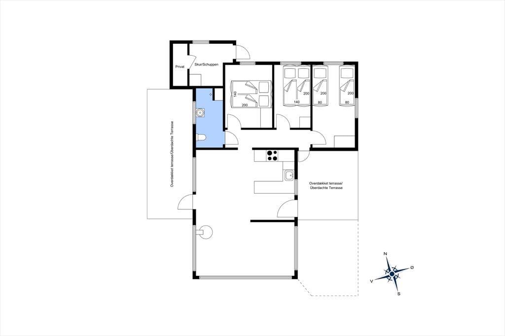
Sommerhuset er pænt og velholdt, og er indrettet med store glaspartier, som lukker et dejligt og behageligt lys ind. Med lyse trævægge, gode møbler og en flot gammeldags brændeovn møder man her den typisk danske sommerhusstil. Køkkenet er udstyret med de nødvendige hjælpemidler og ligger i forbindelse med spisepladsen. Med tre fine værelser er her plads til seks overnattende gæster, og på det lille badeværelse er alle m2 godt udnyttet. Desuden er der på tv’et danske og tyske kanaler, og med internetforbindelse har man adgang til nyheder osv.

Nyd livet udenfor
Med to dejlige terrasser er der næsten garanti for mange timer udendørs aktivitet. Foran huset ligger en lukket terrasse, som er delvist overdækket. Der er adgang fra køkkenet, så det er oplagt at tage måltiderne med herud i godt vejr. På bagsiden af sommerhuset, mod Vesterhavet, er en overdækket vestvendt terrasse med udsigt over et fælles naturområde; her kan man slappe af til lyden af Vesterhavets brusen og færdes i fred og ro, da der ikke er naboer til denne side.

Kom tæt på de lokale oplevelser
Grunden ligger lige op til et fællesareal med en lille bæk og tæt på en stor fodboldbane, som hører til vejen. Med kun en halv kilometer til Løkken, kan turen sagtens tages på gåben, og i byen er gode restauranter og butikker. Samme afstand er der til stranden, hvor timerne går med at bade, bygge sandslotte og lege i klitterne. Der er også mulighed for at tage på mange sjove udflugter, besøg f.eks. Børglum Kloster nord for Løkken eller bestig Rubjerg Knude og slut af med en is i altid hyggelige Lønstrup.

Husk, at du altid kan låne trækvogne, barnestole og barnesenge hos os i Løkken. Du kan hente dem direkte på bureauet og returnere dem til os igen, når din ferie er vel overstået.


Rumindretning

  • Soveværelse
    • Dobbeltseng - 1x140x200
  • Soveværelse
    • Enkelt seng - 1x80x200
    • Enkelt seng - 1x80x200
  • Soveværelse
    • Dobbeltseng - 1x140x200

Populære faciliteter

  • Soverum 3
  • Badeværelser 1
  • Boligareal 72 m²
  • Grundareal 1.340 m²
  • Husdyr Ikke tilladt
  • Tilbyder miniferie Ja
  • Afstand vand 430 m
  • Afstand indkøb 2 km
  • Internet Ja
  • Parabol/kabel TV Ja
  • Brændeovn Ja
  • Aircondition Ja
  • Vaskemaskine Ja
  • Tørretumbler Ja
  • Opvaskemaskine Ja
  • Ikkeryger Ja
  • Ladestander til elbil Ja
  • Energivenligt Ja
  • Inklusiv forbrug Ja

Alle faciliteter

  • Hus Info

    • Antal voksne
      6
    • Bruser
    • Byggeår
      1957
    • Grundareal / Have
      1340 m²
    • Husareal
      72 m²
    • WC
  • Afstande

    • Afstand golfbane
      2,4 km
    • Afstand indkøb / Helårsbutik
      2 km
    • Afstand restaurant
      2,1 km
    • Afstand strand / Sandstrand
      430 m
  • Energi / Opvarmning

    • Brændeovn
    • Elvarme
    • Solenergi
    • Varmepumpe / Med køl
  • Hårde hvidevarer

    • Elkedel
    • Emhætte
    • Kaffemaskine
    • Kogeplader
      43 induktionskogeplader
    • Køleskab med frys
    • Opvaskemaskine
    • Ovn
    • Strygebræt
    • Strygejern
    • Tørretumbler
      Kombi-maskine med vask og tørrefunktion
    • Vaskemaskine
  • Multimedier

    • Chromecast
    • Dansk tv
      Inkl TV2
    • Gratis Wi-Fi - Over 20 Mbit
    • Norsk TV
    • Parabol
    • Svensk TV
    • TV
    • Tysk TV
  • Ekstra

    • Golfferie
    • Vandrevenlig
  • Udenfor

    • Delvis overdækket terrasse
    • Grill
    • Havemøbler
    • Liggestole
      2
    • Overdækket terrasse
    • Parasol
      1
    • Parkering på grunden
  • Diverse

    • Afmærkede vandreruter i nærheden
  • Regler

    • Husdyr ikke tilladt
    • Opladning af elbil tilladt / Lader til elbil forefindes (Type 2 stik, inklusiv kabel)
    • Rygning ikke tilladt
  • Pris inklusiv

    • Forbrug inkl.
    • Opvarmning inkl.
    • Slutrengøring inkl.
    • Strøm inkl.
    • Vand inkl.
  • GAMMEL

    • CD
    • Radio

Miniferie

Der er begrænset mulighed for miniferie hele året, typisk uden for højsæsonen.

Prices and calendar

Kalender

Ankomst
Forrige Næste
   Se om emnet er ledigt på den valgte dato
Ledig
Optaget
   Ankomst mulig
Varighed

Pris

Periode
Ankomst
Afrejse
Varighed
1 uge
Personer
Op til 6 personer

Bemærk

Ankomst er ikke valgt.
Aftale- og lejebetingelser

Vores gæsteanmeldelser Eksterne anmeldelser

4,0
Baseret på 2 vurderinger
Sidste vurdering fra d. 30-06-2024
5
(0)
4
(2)
3
(0)
2
(0)
1
(0)
Kommentarer
Ingen vurderinger har kommentarer på dansk
1 vurdering har kommentar på et andet sprog.