Hyggeligt sommerhus med brændeovn og stor terrasse

Sommerhus - 5 personer - Solbærvangen - Jegum - 6840 - Oksbøl

Hyggeligt sommerhus i Jegum Ferieland med brændeovn, badekar og stor terrasse, perfekt til afslapning og udendørs aktiviteter.

Beskrivelse

Oplev dette hyggelige sommerhus på Solbærvangen 5 i Jegum Ferieland, bygget i 1981 og stilfuldt renoveret i 2025. Med 102 m² fordelt på komfortable rum til 5 feriegæster, byder sommerhuset på en varm brændeovn og et badeværelse med badekar – perfekt til afslapning efter en dag fuld af oplevelser.

Brændeovns hygge og afslapning i badekarret

Når I træder indenfor, bliver I mødt af et veludstyret og komfortabelt miljø, der er skabt til at gøre opholdet så behageligt som muligt. Inde i sommerhuset finder I vaskemaskinen, så frisk tøj og håndklæder altid er lige ved hånden. Fortsætter I videre, åbner køkkenet sig op – her er det en fornøjelse at lave mad, og opvaskemaskinen sørger for, at oprydningen går hurtigt og ubesværet.

I stuen står den hyggelige brændeovn klar til at sprede varme og skaber en indbydende stemning på kølige aftener – træpillerne kan nemt købes direkte ved sommerhuset. Badeværelset med badekar indbyder til lange, afslappende bade, mens gæstetoilettet sørger for praktisk komfort, når alle skal bruge faciliteterne samtidig.

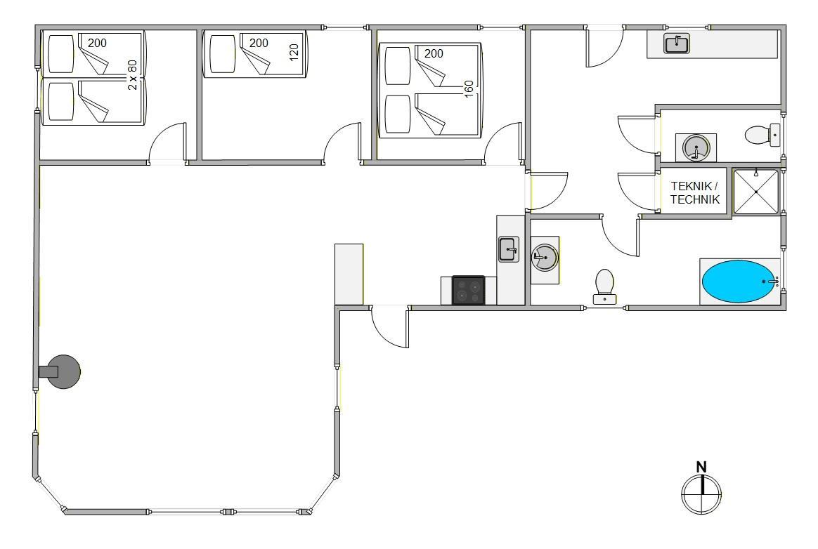
Videre finder I 3 soverum med i alt 5 komfortable sovepladser, hvor alle kan trække sig tilbage og nyde en fredelig og afslappende nats søvn. Hvert rum emmer af ro, og sommerhuset som helhed giver en naturlig følelse af hjemlig hygge og velvære.

Middag under åben himmel og bilen er parkeret under carpoten

Udenfor byder sommerhuset på et generøst udeareal med en størrelse på 1518 m2, hvilket giver jer masser af plads til udendørs aktiviteter og afslapning. Den kombinerede åbne og overdækkede terrasse gør det muligt at nyde udelivet i al slags vejr og danner den perfekte ramme for alt fra solbadning til hyggelige middagsselskaber. Plænegrunden er ideel til leg og spil, hvor både børn og voksne kan nyde en aktiv dag i det fri.

For bilister er der mulighed for at lade bilen på sommerhuset ladestik til el-biler, så I nemt kan holde bilen klar under opholdet. Desuden er der en grill til rådighed, som gør det nemt at tilberede lækre måltider udendørs. Bilerne kan beskyttes mod vejrets luner ved brug af carporten, som kompletterer de mange fordelagtige udendørs faciliteter.

Oplev området nær Solbærvangen 5 I Jegum Ferieland:

Området omkring Solbærvangen 5 byder på en rig palet af oplevelser og bekvemmeligheder, der er svære at modstå. Med havet beliggende kun 10000 meter væk, har I nem adgang til lange gåture langs stranden eller en forfriskende dukkert i bølgerne. Hvis der er behov for at foretage daglige indkøb, vil I sætte pris på, at der kun er 850 meter til nærmeste indkøbsmulighed, hvilket gør det nemt og hurtigt at få fat i alle nødvendigheder.

Ud over disse praktiske fordele er området også kendt for sine lokale seværdigheder, som gør jeres ophold i Jegum Ferieland endnu mere interessant. I kan besøge Blåvandshuk Fyr, som er Danmarks vestligste punkt, og nyde en fantastisk udsigt ud over Vesterhavet. Hvis I er interesserede i kunst, bør I tage et smut forbi Henne Kirkeby Kro, som ikke kun er kendt for sine gastronomiske oplevelser, men også for den tilstødende kunstvæg.

Populære faciliteter

  • Soverum 3
  • Badeværelser 1
  • Boligareal 102 m²
  • Grundareal 1.518 m²
  • Husdyr Ikke tilladt
  • Tilbyder miniferie Nej
  • Afstand vand 10 km
  • Afstand indkøb 850 m
  • Internet Ja
  • Vaskemaskine Ja
  • Opvaskemaskine Ja
  • Ikkeryger Ja
  • Ladestander til elbil Ja
  • Energivenligt Ja

Alle faciliteter

  • Opholdsrum

    • Fladskærms-TV
      1
    • Dock/Bluetooth enhed
    • Kork/Vinyl gulv
    • Pilleovn
  • Soverum

    • Gulv: Trælaminat
    • Dobbeltsenge
      1
    • Enkeltsenge
      3
    • Sovepladser
      5
    • Soverum
      3
    • 1. soverum/sengestørrelser
      160x200
    • 2. soverum/sengestørrelser
      2x80x200
    • 3. soverum/sengestørrelser
      120x200
  • Køkken

    • Komfur: Induktion m. ovn
    • Køleskab
    • Opvaskemaskine
    • Mikroovn
    • Separat fryser /L
      80
    • Affaldssortering
  • Baderum

    • Gulvvarme bad
    • Antal badeværelser
      1
    • Antal gæstetoiletter
      1
  • Objektinfo - Inde

    • Areal: Hus m²
      102
    • Byggeår
      1981
    • Ikke ryger hus
    • Personantal
      5
    • Renoveret
      2025
    • Danske TV-kanaler (Betalingskanaler)
    • Tyske tv-programmer
    • Varme: Elvarme
    • Varme: Varmepumpe luft til luft
    • Vaskemaskine
    • Gratis fiber Internet
    • Jubilæumsmønt er udleveret
  • Objektinfo - ude

    • Afstand i meter: Hav
      10 km
    • Afstand i meter: Indkøb
      850 m
    • Grundens areal i m2
      1518
    • Grill
    • Havemøbler
    • Solvogne
    • Parasol
    • Parkering: Carport
    • Terrasse: åben
    • Terrasse: Overdækket
    • Plænegrund
    • Affald hentes:
      Mandag
    • Skraldespand - Liter
      240
    • Ladestik til el-bil
  • Koncepter

    • Skiftedag: Lørdag
  • Miniferie

    • Ja, tak - tillad miniferie

Miniferie

Prices and calendar

Kalender

Ankomst
Forrige Næste
  • april 2026
    mationtofr
    1412345
    156789101112
    1613141516171819
    1720212223242526
    1827282930
    19
  • maj 2026
    mationtofr
    18123
    1945678910
    2011121314151617
    2118192021222324
    2225262728293031
    23
   Se om emnet er ledigt på den valgte dato
Ledig
Optaget
   Ankomst mulig
Varighed

Pris

Periode
Ankomst
Afrejse
Varighed
1 uge
Personer
Op til 5 personer

Bemærk

Ankomst er ikke valgt.
Aftale- og lejebetingelser