Sommerhus - 6 personer - Ringvejen - Bolilmark - 6792 - Rømø
Alternative emner
I nærheden (199)Oversigt
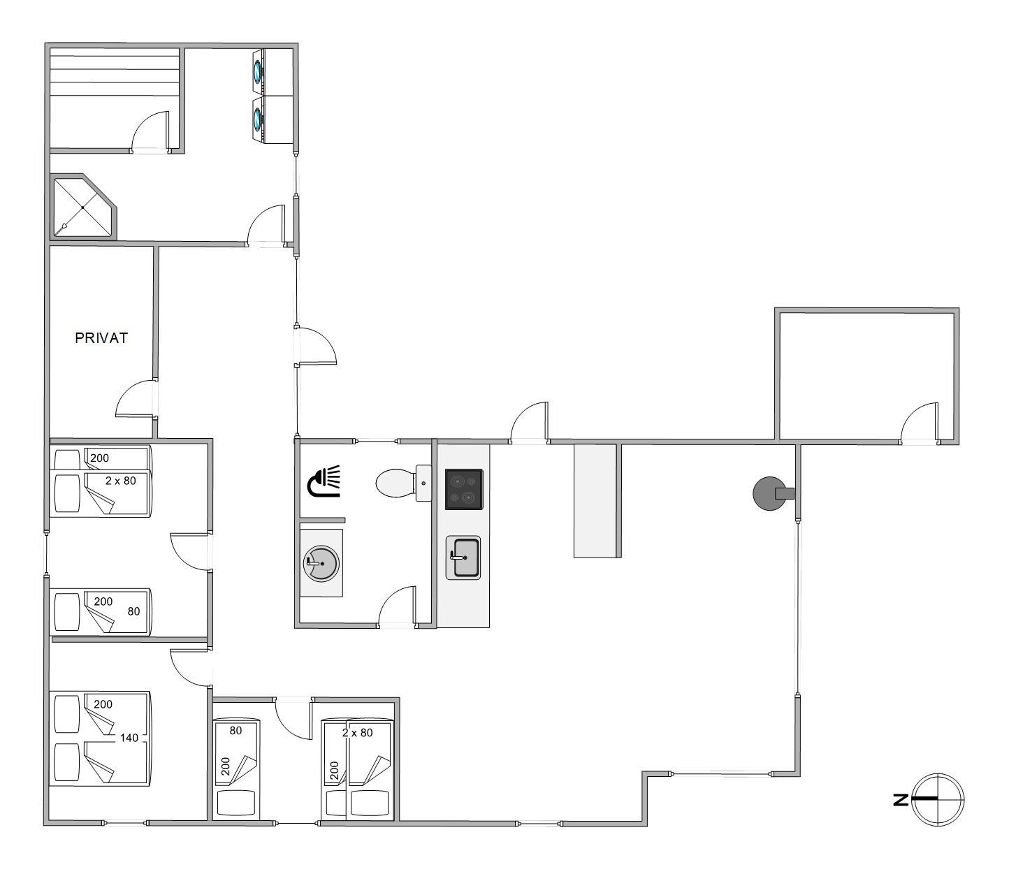
- Soverum 3
- Badeværelser 1
- Boligareal 109 m²
- Grundareal 2.500 m²
- Husdyr Ikke tilladt
- Tilbyder miniferie Nej
- Afstand vand 2.400 m
- Afstand indkøb 2.500 m
- Sauna Ja
- Internet Ja
- Parabol/kabel TV Ja
- Brændeovn Ja
- Vaskemaskine Ja
- Tørretumbler Ja
- Opvaskemaskine Ja
- Ikkeryger Ja
- Energivenligt Ja
Beskrivelse
Dette fine sommerhus på Ringvejen 10 i Bolilmark på Rømø, er det ideelle sted til en ferie med familie eller venner for op til 6 personer. I sommerhuset er der en sauna, som er helt perfekt til afslapning og velvære efter en frisk gåtur ved vandet. Fra sommerhuset er der blot 2400 meter til stranden.
Brændeovn til hyggelige aftener
I sommerhuset finder I en hyggelig stue med en brændeovn, der skaber en varm og behagelig stemning, perfekt til kølige aftener. Varmepumpen sørger for ekstra komfort hele året rundt. Stuen ligger i åben forbindelse til køkken og spiseplads, så dette kommer til at være det naturlige samlingsrum for jer under ferien. I stuen er der en parabol fjernsyn, så i har mulighed for en hyggelig filmaften sammen med hele familien.
Et af sommerhusets highlights er den skønne sauna, hvor I kan nyde varmen og rigtig få slappet af efter en aktivitetsrig feriedag. For jeres bekvemmelighed er der både vaskemaskine og tørretumbler til rådighed, så I kan tage på længere ferier uden at bekymre jer om vasketøj.
Sommerhuset byder på 3 gode soveværelser, hvoraf 2 er indrettet med dobbeltsenge, og det tredje soveværelse har en køjeseng – et hit blandt børnene.
Udendørs afslapning på overdækket terrasse
Udenfor kan I nyde sommersolen fra havemøblerne og bruge grillen på den overdækkede terrasse, hvilket er ideelt til hyggelige aftener med grillmad. Sommerhuset er beliggende på en naturlig afskærmet naturgrund, der værner om privatlivet under jeres ferie. Her er der også god plads til, at børnene kan lege, mens I ser på fra en liggestol.
Feriedage på stranden
Sommerhuset i Bolilmark på Rømø ligger kun 2400 meter fra havet, hvilket giver jer nem adgang til skønne stranddage og forfriskende bade.
Udover at nyde de fantastiske strande, kan I også tage på spændende udflugter på øen. Rømø byder på en række aktiviteter som cykelture, ridning på de brede sandstrande og golf. I kan også besøge Nationalmuseets Kommandørgård og lære om øens spændende historie eller tage en tur med færgen til den tyske vadehavs-ø Sild. Mulighederne er mange, og I vil finde masser af måder at gøre ferien både spændende og afslappende.
Væggene i stuen og køkkenet bliver malet hvidt indtil Januar. Derudover bliver der løbende foretaget forbedringer af huset.
Faciliteter
-
Opholdsrum
-
Gulv: Tæppe
-
Radio
-
Brændeovn
-
Fladskærms-TV1
-
-
Soverum
-
Gulv: Tæppe
-
Dobbeltsenge2
-
Køjesenge1
-
Sovepladser6
-
Soverum3
-
1. soverum/sengestørrelser140x200
-
2. soverum/sengestørrelser140x200
-
3. soverum/sengestørrelser2 x 80x200
-
-
Køkken
-
Komfur: El m. ovn
-
Køleskab m. frostboks
-
Opvaskemaskine
-
Mikroovn
-
-
Baderum
-
Sauna
-
Antal badeværelser1
-
-
Objektinfo - Inde
-
Areal: Hus m²109
-
Byggeår1979
-
Ikke ryger hus
-
Personantal6
-
Renoveret1997
-
Tyske tv-programmer
-
Tørretumbler
-
Varme: Elvarme
-
Varme: Varmepumpe luft til luft
-
Vaskemaskine
-
Parabol (enkelte danske og tyske kanaler)
-
Gratis fiber Internet
-
Jubilæumsmønt er udleveret
-
-
Objektinfo - ude
-
Afstand hav2,4 km
-
Afstand indkøb2,5 km
-
Areal: Grund m²2500
-
Grill
-
Havemøbler
-
Solvogne
-
Terrasse: åben
-
Terrasse: Overdækket
-
Naturgrund
-
Affald hentes:Tirsdag
-
Affald: Helårstømning
-
Affald: Liter240
-
-
Koncepter
-
Skiftedag: Lørdag
-
Vandaflæsning
-
Fjernaflæsning af vandmåler
-
Priser og kalender
Kalender
Pris
- Ankomst
- Afrejse
- Varighed
- 1 uge
