Ferielejlighed - 6 personer - Gebersdorf Nr. - 98743 - Gräfenthal
Alternative emner
I nærheden (3)6 personer
Oversigt
Emne nr.: 530-210344
7 overnatninger
Fra
DKK 16.666,-
6
personer
- Soverum 2
- Badeværelser 2
- Boligareal 113 m²
- Husdyr Ikke tilladt
- Tilbyder miniferie Ja
- Afstand indkøb 3 km
- Internet Ja
- Parabol/kabel TV Ja
- Vaskemaskine Ja
- Tørretumbler Ja
- Opvaskemaskine Ja
- Ikkeryger Ja
- Ladestander til elbil Ja
- Energivenligt Ja
Beskrivelse
Beskrivelsen foreligger desværre ikke på Dansk. Se teksten på Tysk nedenfor, eller se den maskinoversatte tekst på Dansk.
Ferienhaus - Hotel Steiger, Ferienwohnung 4
Unser Haus ist ein familiär geführtes Frerienhaus mit 4 Fereinwohnungen im Thüringer Wald mit ruhiger Lage. Nähe Rennsteig und Frankenwald in der Verwaltungsgemeinschaft Probstzella Gräfenthal mit herrlichen Wandermöglichkeiten. Es wird gerne der Transfear bei Rennsteigwanderungen übernommen.
Ferienwohnung 1: Erdgeschoss Barriere frei, Behindertengerecht, Rollstuhlgerecht
Größe: 52,50 m² 2 Personen + 1Kind
Ausstattung: 1 Schlafzimmer 2 Boxspringbetten mit elektrischer Kopf- und Fußverstellbarkeit.
Seitenablage mit Lampe und Leselampe, Kleiderschrank, Kofferbock, Spiegel,
kl. Schreibtisch. Bettwäsche, Bade- und Handtücher werden gestellt.
Wohn-und Speisezimmer: Küchenzeile mit Kühlschrank und Tiefkühlfach, Abzugshaube, Elektro- Ceranfeldherd, Geschirrspüler, Abwaschbecken, Geschirrschrank mit Inhalt, Wasserkocher, Kaffeemaschine. Toaster, Mikrowelle, Bügeleisen, Bügelbrett, Telefon,
Speisetisch mit Stühlen, Farbfernseher, Couchtisch, Schlafcouch, alter Bauernherd mit Holzfeuerung.
Bad: Begehbare Dusche mit Duschsitz, Rollstuhl gerechtes Waschbecken, behinderten WC, Spiegel mit Leuchte, Fön, Waschmaschine, Badschrank, Badetuch- und
Handtuchtrocknender Heizkörper.
Fereinwohnung 2,3 und 4 je Schlafzimmer eine Naßzelle mit der gleichen Ausstattung nicht behiderten gerecht.
Keine Tiere oder Haustiere. Nichtraucher Zimmer. Endreinigung im Preis enthalten.
Brötchendienst. Bade- und Handtuchwechsel 3,00 €
Preise: Mindestaufenthalt 3Tage:
Alle Online-Buchungen ohne Frühstück. Frühstück kann bei Anreise dazu gebucht werden.
Für 1 Person 82,50 € ohne Frühstück pro Tag.
89,00 € mit Frühstück pro Tag.
(Diese Preise sind gültig für FW 1und 2)
Ab 2 Personen pro Tag.
42,00 € pro Person im DZ ohne Frühstück .
48,50 € pro Person im DZ mit Frühstück.
30,00 € Aufbettung ohne Frühstück.
36,50 € Aufbettung mit Frühstück.
Kinder bis 4 Jahre frei.
Kinder bis 14 Jahre 50% ermäßigt.
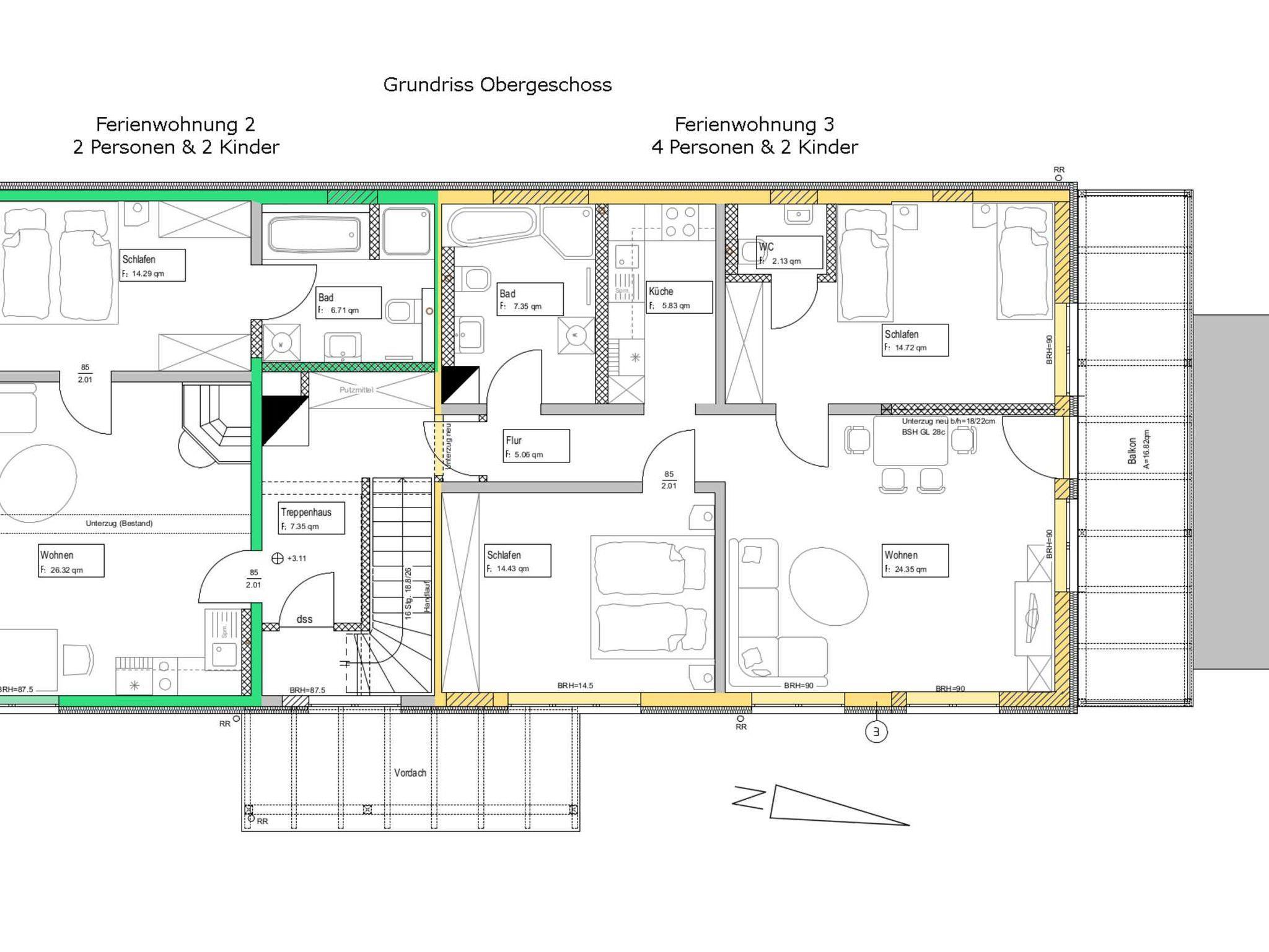
Hinweis für unsere weiteren Ferienwohnungen 3 & 4.
Ferienwohnung 3: 1. Etage mit Balkon.
Größe: 75,00m² 4 Personen + 2Kinder
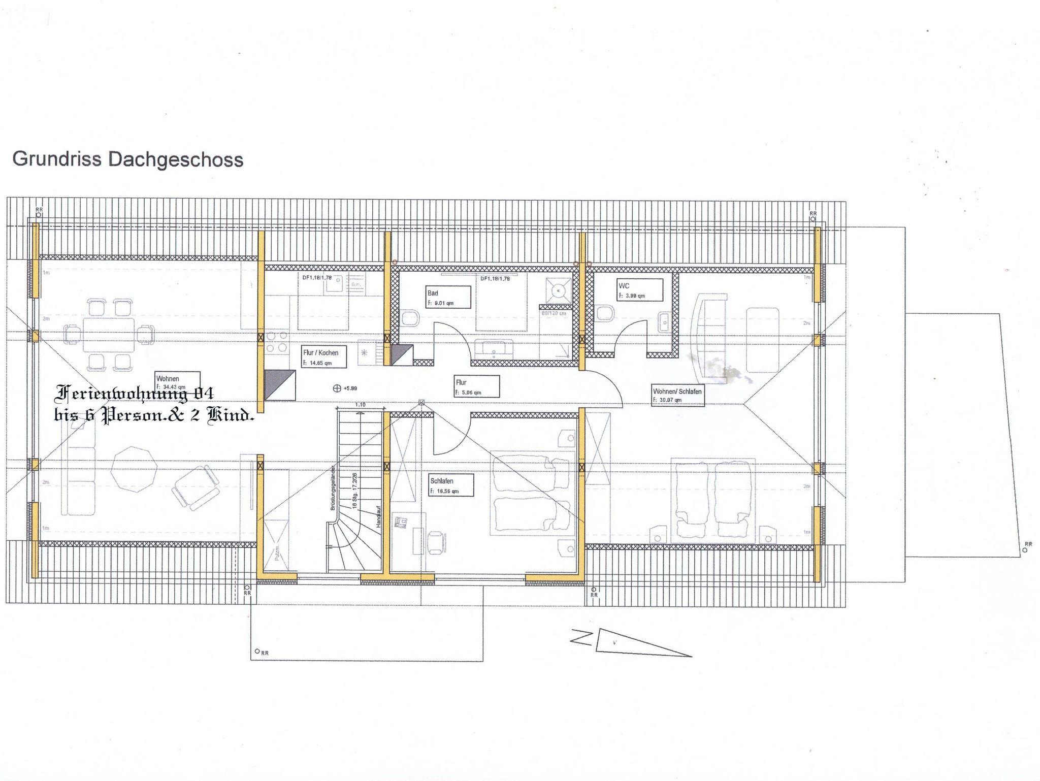
Ferienwohnung 4: 2.Etage
Größe: 113,80m² 4 Erw. + 2Kinder/2Erw.
Ferienwohnung 1: Erdgeschoss Barriere frei, Behindertengerecht, Rollstuhlgerecht
Größe: 52,50 m² 2 Personen + 1Kind
Ausstattung: 1 Schlafzimmer 2 Boxspringbetten mit elektrischer Kopf- und Fußverstellbarkeit.
Seitenablage mit Lampe und Leselampe, Kleiderschrank, Kofferbock, Spiegel,
kl. Schreibtisch. Bettwäsche, Bade- und Handtücher werden gestellt.
Wohn-und Speisezimmer: Küchenzeile mit Kühlschrank und Tiefkühlfach, Abzugshaube, Elektro- Ceranfeldherd, Geschirrspüler, Abwaschbecken, Geschirrschrank mit Inhalt, Wasserkocher, Kaffeemaschine. Toaster, Mikrowelle, Bügeleisen, Bügelbrett, Telefon,
Speisetisch mit Stühlen, Farbfernseher, Couchtisch, Schlafcouch, alter Bauernherd mit Holzfeuerung.
Bad: Begehbare Dusche mit Duschsitz, Rollstuhl gerechtes Waschbecken, behinderten WC, Spiegel mit Leuchte, Fön, Waschmaschine, Badschrank, Badetuch- und
Handtuchtrocknender Heizkörper.
Fereinwohnung 2,3 und 4 je Schlafzimmer eine Naßzelle mit der gleichen Ausstattung nicht behiderten gerecht.
Keine Tiere oder Haustiere. Nichtraucher Zimmer. Endreinigung im Preis enthalten.
Brötchendienst. Bade- und Handtuchwechsel 3,00 €
Preise: Mindestaufenthalt 3Tage:
Alle Online-Buchungen ohne Frühstück. Frühstück kann bei Anreise dazu gebucht werden.
Für 1 Person 82,50 € ohne Frühstück pro Tag.
89,00 € mit Frühstück pro Tag.
(Diese Preise sind gültig für FW 1und 2)
Ab 2 Personen pro Tag.
42,00 € pro Person im DZ ohne Frühstück .
48,50 € pro Person im DZ mit Frühstück.
30,00 € Aufbettung ohne Frühstück.
36,50 € Aufbettung mit Frühstück.
Kinder bis 4 Jahre frei.
Kinder bis 14 Jahre 50% ermäßigt.
Hinweis für unsere weiteren Ferienwohnungen 3 & 4.
Ferienwohnung 3: 1. Etage mit Balkon.
Größe: 75,00m² 4 Personen + 2Kinder
Ferienwohnung 4: 2.Etage
Größe: 113,80m² 4 Erw. + 2Kinder/2Erw.
Ferienwohnung 4: 2.Etage
Größe: 113,80m² 4 Erw. + 2 Kinder / Erw.
Ausstattung: 2 Schlafzimmer je 2 Boxspringbetten, Seitenablage mit Lampe und Leselampe,
Kleiderschrank, Kofferbock, Spiegel, kl. Schreibtisch. Bettwäsche, Bade- und Handtücher werden gestellt.
Küche: Küchenzeile mit Kühlschrank und Tiefkühlschrank, Abzugshaube, Elektro- Ceranfeldherd, Geschirrspülmaschine, Abwaschbecken, Geschirrschrank mit Inhalt, Wasserkocher, Kaffeemaschine. Toaster, Mikrowelle, Bügeleisen, Bügelbrett, Telefon,
Wohnzimmer: Speisetisch mit Stühlen, Fernsehtisch mit Farbfernseher, Couchtisch, 2 Schlafcouch.
1 Bad je Schlafzimmer: Begehbare Dusche, Waschbecken, WC, Spiegel mit Leuchte, Fön, Waschmaschine, Badschrank, Badetuch- und Handtuchtrocknender Heizkörper.
Keine Tiere oder Haustiere. Nichtraucher Zimmer. Endreinigung im Preis enthalten.
Brötchendienst. Bade- und Handtuchwechsel 3,00 €.
Preise: Mindestaufenthalt 3Tage
Ab 3 Personen.
42,00 € pro Person im DZ ohne Frühstück.
48,50 € pro Person im DZ mit Frühstück.
30,00 € Aufbettung ohne Frühstück.
36,50 € Aufbettung mit Frühstück.
Kinder bis 4 Jahre frei.
Kinder bis 14 Jahre 50% ermäßigt.
Aufenthalt 4-5 Tage 1,00 € Nachlass pro Person
Aufenthalt 6-7 Tage 2,00 € Nachlass pro Person
Aufenthalt 8-9 Tage 3,00 € Nachlass pro Person
Größe: 113,80m² 4 Erw. + 2 Kinder / Erw.
Ausstattung: 2 Schlafzimmer je 2 Boxspringbetten, Seitenablage mit Lampe und Leselampe,
Kleiderschrank, Kofferbock, Spiegel, kl. Schreibtisch. Bettwäsche, Bade- und Handtücher werden gestellt.
Küche: Küchenzeile mit Kühlschrank und Tiefkühlschrank, Abzugshaube, Elektro- Ceranfeldherd, Geschirrspülmaschine, Abwaschbecken, Geschirrschrank mit Inhalt, Wasserkocher, Kaffeemaschine. Toaster, Mikrowelle, Bügeleisen, Bügelbrett, Telefon,
Wohnzimmer: Speisetisch mit Stühlen, Fernsehtisch mit Farbfernseher, Couchtisch, 2 Schlafcouch.
1 Bad je Schlafzimmer: Begehbare Dusche, Waschbecken, WC, Spiegel mit Leuchte, Fön, Waschmaschine, Badschrank, Badetuch- und Handtuchtrocknender Heizkörper.
Keine Tiere oder Haustiere. Nichtraucher Zimmer. Endreinigung im Preis enthalten.
Brötchendienst. Bade- und Handtuchwechsel 3,00 €.
Preise: Mindestaufenthalt 3Tage
Ab 3 Personen.
42,00 € pro Person im DZ ohne Frühstück.
48,50 € pro Person im DZ mit Frühstück.
30,00 € Aufbettung ohne Frühstück.
36,50 € Aufbettung mit Frühstück.
Kinder bis 4 Jahre frei.
Kinder bis 14 Jahre 50% ermäßigt.
Aufenthalt 4-5 Tage 1,00 € Nachlass pro Person
Aufenthalt 6-7 Tage 2,00 € Nachlass pro Person
Aufenthalt 8-9 Tage 3,00 € Nachlass pro Person
Vor Ort
Kinder bitte Anreise vor Ort anmelden. Es können nur Erwachsene online gebucht werden.
Kinder bitte Anreise vor Ort anmelden. Es können nur Erwachsene online gebucht werden.
Faciliteter
-
Afstande
-
Over havniveau450 m
-
Til bageren3 km
-
Til lufthavnen70 km
-
Til lægen3 km
-
Til motorvejen70 km
-
Til pengeautomaten/banken3 km
-
Til stien3,5 km
-
Til supermarkedet3 km
-
Til svømme-/sjovpoolen3 km
-
Til sygehuset/klinikken10 km
-
Til togstationen7 km
-
-
Aktivitetsfaciliteter
-
Cykelvenlig
-
Langrend
-
Solarium
-
-
Børnefaciliteter
-
Familievenlig
-
Småbørns udstyr
-
-
Grundlæggende faciliteter
-
Størrelse113 m²
-
År renoveret2018
-
-
Indkvartering Faciliteter
-
Bar
-
BBQ
-
Betalingskort
-
Cykelrum aflåselig
-
E-bil ladestation
-
Ikke-ryger hus
-
Internet i det offentlige område
-
Konferenceudstyr
-
Kreditkort
-
Overførselstjeneste
-
Room Service
-
Rygeområde
-
Skirum
-
Tørrerum
-
Vandrer venlig
-
Vaskeservice
-
Vedvarende energi
-
Velegnet til montører
-
Ølhave
-
-
Mad faciliteter
-
Brødservice
-
Halvpension
-
Køkken - regionale produkter
-
Køkken (vegetarisk)
-
Morgenmad muligt
-
Produkter fra egen produktion
-
Restaurant i huset
-
-
Omgivende faciliteter
-
Bus parkering
-
Cykelrum
-
Garage
-
Have til brug
-
Parkeringsplads
-
Siddeplads i haven
-
-
Servicefaciliteter
-
Bad/toilet
-
Bjergudsigt
-
Brødservice
-
Dyr ikke tilladt
-
Flere soveværelser
-
Håndklæder
-
Hårtørrer
-
Ikke-rygere
-
Internet - WiFi
-
Kabel/Sat
-
Køleskab
-
Mikroovn
-
Morgenmadsservice
-
Mulighed for fryser
-
Opvarmet
-
Opvaskemaskine
-
Pude
-
Røgalarm
-
Sengetøj
-
Separat køkken
-
Sæbe
-
Toiletpapir
-
TV
-
TV - fladskærm
-
Tørretumbler
-
Vaskemaskine
-
Miniferie
Der er mulighed for miniferie hele året.
Priser og kalender
Kalender
Varighed
Personer
Pris
Periode
- Ankomst
- Afrejse
- Varighed
- 1 uge
Personer
Ingen personer er valgt
Bemærk
Ankomst er ikke valgt.
Der er ikke valgt personer.
