Ferielejlighed - 4 personer - Lauterbrunnen - 3823

Beskrivelse

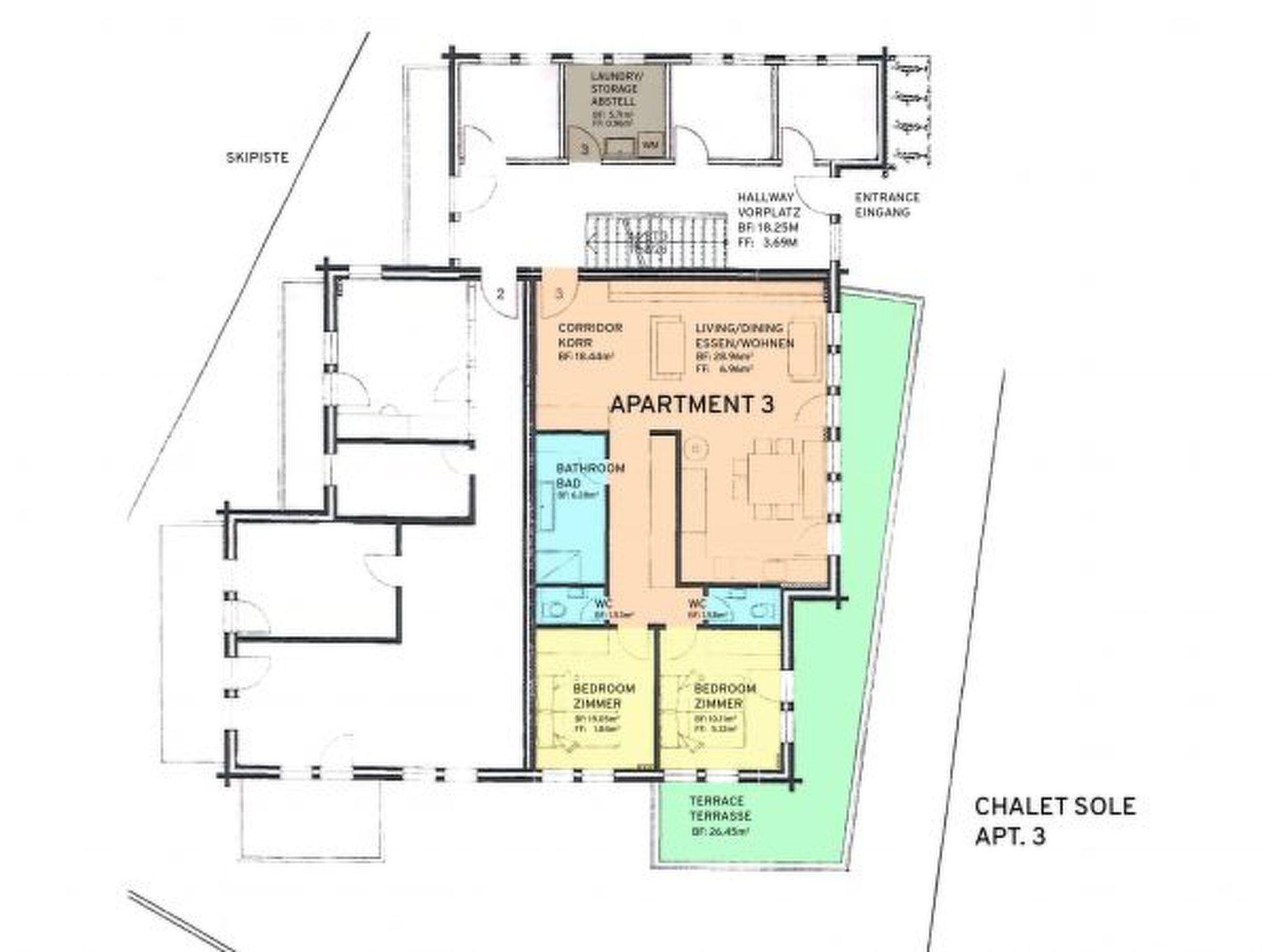
Vi beklager, men p.t. foreligger ingen beskrivelse.

Populære faciliteter

  • Soverum 1
  • Badeværelser 1
  • Boligareal 77 m²
  • Husdyr Ikke tilladt
  • Tilbyder miniferie Ja

Alle faciliteter

  • Afstand

    • Airport BRN
      62,8 km
    • Lufthavn BSL
      166,5 km
    • Lufthavn GVA
      225,6 km
    • Lufthavn ZRH
      150,7 km
  • Husinfo

    • Antal badeværelser
      1
    • Antal soveværelser
      1
    • Antal værelser
      2
    • Boligareal
      77 m²

Miniferie

Der er mulighed for miniferie hele året.

Prices and calendar

Kalender

Ankomst
Næste
   Se om emnet er ledigt på den valgte dato
Ledig
Optaget
   Ankomst mulig
Varighed

Pris

Periode
Ankomst
Afrejse
Varighed
1 uge
Personer
Op til 4 personer

Bemærk

Ankomst er ikke valgt.
Aftale- og lejebetingelser

Vores gæsteanmeldelser Eksterne anmeldelser

Ingen gæsteanmeldelser
0,0
Generelt:
0,0
Eksterne anmeldelser
Ingen detaljerede eksterne anmeldelser