Ferielejlighed - 4 personer - Mauerstraße - 38640 - Goslar
Alternative emner
I nærheden (28)4 personer
Oversigt
Emne nr.: 530-600475
7 overnatninger
Fra
DKK 9.702,-
- Soverum 1
- Badeværelser 1
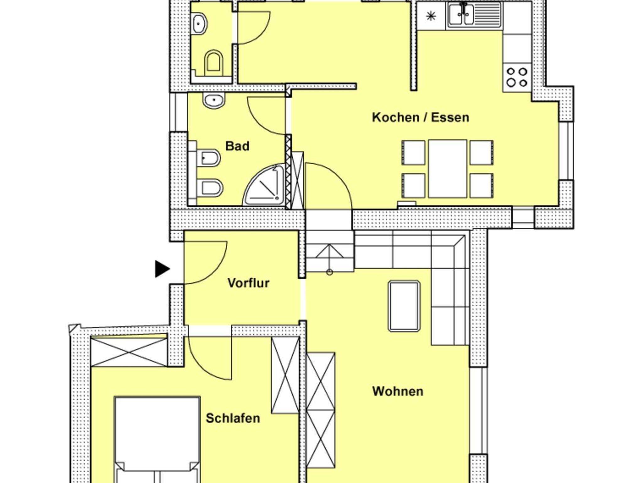
- Boligareal 67 m²
- Husdyr Ikke tilladt
- Tilbyder miniferie Ja
- Afstand indkøb 500 m
- Internet Ja
- Parabol/kabel TV Ja
- Vaskemaskine Ja
- Tørretumbler Ja
- Opvaskemaskine Ja
- Ikkeryger Ja
Beskrivelse
Beskrivelsen foreligger desværre ikke på Dansk. Se teksten på Tysk nedenfor, eller se den maskinoversatte tekst på Dansk.
City-Appartements Am Wall, Appartement Rammelsberg*****
Entdecken Sie Goslar und lassen Sie sich von seinem mittelalterlichen Altstadtflair verzaubern. Genießen Sie in unseren neuen, modernen und gemütlichen Ferienwohnungen erstklassigen Wohn-Komfort. Hier harmonieren eine hochwertige Einrichtung und Ausstattung mit charmanten Altbau-Elementen. Und unsere Appartements sind der ideale Ausgangspunkt, um Goslar und den Harz zu erkunden. Eine großzügige Gartenanlage lädt ein zum Entspannen. Lassen Sie nach Ihren Entdeckungstouren und Unternehmungen die Seele baumeln und genießen den Sonnenuntergang bei einem BBQ am Fuße der Goslarer Bergwelt.
Mit 67m² ist die Ferienwohnung Rammelsberg die flächenmäßig größte unserer fünf Ferienwohnungen. Bis zu vier Personen finden hier bequem Platz, denn neben dem Schlafzimmer mit Boxspringbetten für zwei Personen bietet die komfortable Schlaf-Couch eine Schlafmöglichkeit für bis zu zwei weitere Personen. Neben dem modernen Badezimmer verfügt diese Ferienwohnung noch über ein separates Gäste-WC – jeweils mit Fußbodenheizung. Und im voll ausgestatteten offenen Koch-Essbereich findet die ganze Familie Platz für ein ausgiebiges Frühstück oder gemütliche Koch- und Spieleabende.
Vores gæsteanmeldelser Eksterne anmeldelser
Faciliteter
-
Afstande
-
Til bageren300 m
-
Til centrum300 m
-
Til restauranten100 m
-
Til supermarkedet500 m
-
Til togstationen700 m
-
Til turistinformationen600 m
-
-
Aktivitetsfaciliteter
-
Cykelvenlig
-
Langrend
-
-
Børnefaciliteter
-
Familievenlig
-
-
Grundlæggende faciliteter
-
Størrelse67 m²
-
År renoveret2013
-
-
Indkvartering Faciliteter
-
Cykelvenlig
-
Ikke-ryger hus
-
Internet i det offentlige område
-
Vandrer venlig
-
-
Omgivende faciliteter
-
Garage
-
Have til brug
-
Siddeplads i haven
-
-
Servicefaciliteter
-
Bad / WC
-
Bad/toilet
-
Dobbeltseng
-
Dyr ikke tilladt
-
Elektricitet
-
Gæstetoilet
-
Håndklæder
-
Hårtørrer
-
Ikke-rygere
-
Internet - WiFi
-
Kabel/Sat
-
Køkken (åbent)
-
Køleskab
-
Mulighed for fryser
-
Opvarmet
-
Opvaskemaskine
-
Ovn
-
Rindende vand
-
Sengetøj
-
Sikkerheds boks
-
Sofa seng
-
Soveværelse
-
TV
-
TV - fladskærm
-
Tørretumbler
-
Vaskemaskine
-
Miniferie
Der er mulighed for miniferie hele året.
Priser og kalender
Kalender
Varighed
Pris
Periode
- Ankomst
- Afrejse
- Varighed
- 1 uge
Personer
Op til 4 personer
Bemærk
Ankomst er ikke valgt.
