Ferielejlighed - 10 personer - Vienna - 1200
Alternative emner
I nærheden (35)10 personer
Oversigt
Emne nr.: 301-AT1000.640.1
7 overnatninger
Fra
DKK 20.993,-
Inkl. rengøring og forsikring
10
personer
- Soverum 6
- Badeværelser 3
- Boligareal 180 m²
- Husdyr 1
- Tilbyder miniferie Ja
- Internet Ja
- Vaskemaskine Ja
- Tørretumbler Ja
- Opvaskemaskine Ja
- Ikkeryger Ja
Beskrivelse
Beskrivelsen foreligger desværre ikke på Dansk. Se teksten på Engelsk nedenfor, eller se den maskinoversatte tekst på Dansk.
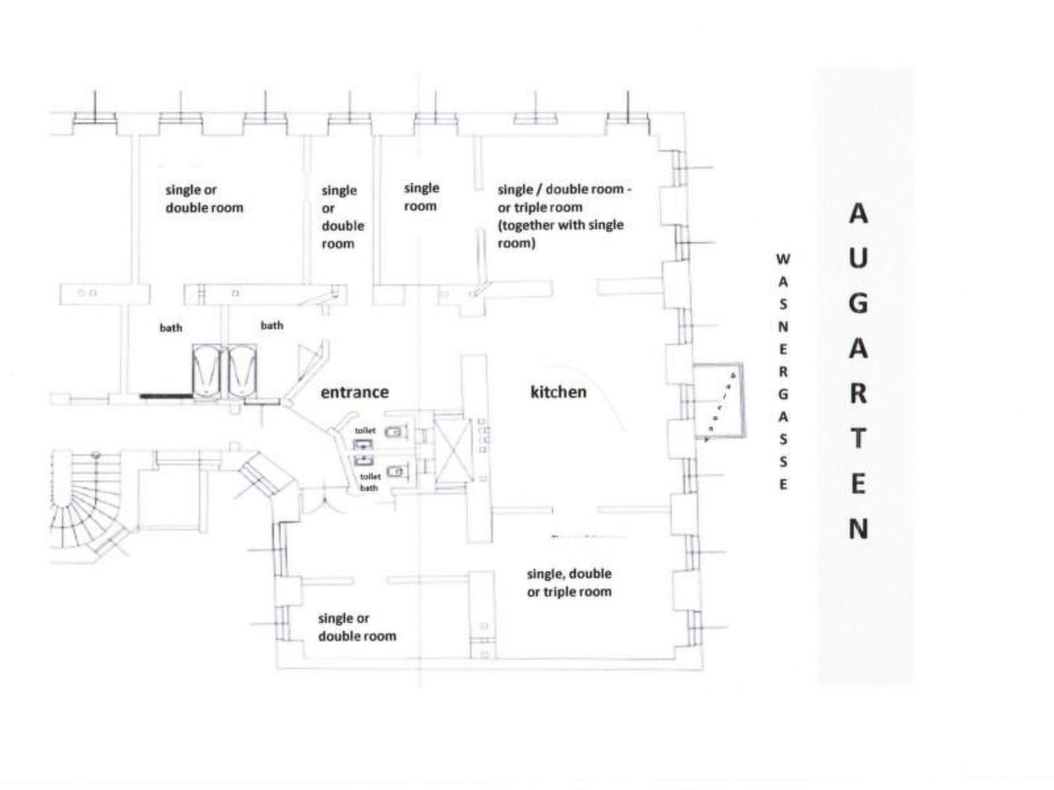
Unusual, large flat on the Augarten. You live in a central location in a typical Viennese Gründerzeit house from 1890. The house is in the 20th district (Brigittenau) in a quiet alley directly on the Augarten - the oldest and possibly most beautiful baroque park in Vienna. All shops for daily needs within 5 minutes walking distance. Three bathrooms (2x bathtub, 1x shower), 2 WCs, small balcony overlooking the Augarten, fully equipped kitchen and a library.
Directly at the Augarten (children/family outdoor pool and playgrounds in summer), supermarkets Billa (3 minutes walk) and Lidl (4 minutes walk), Wallensteinplatz (4 minutes walk, tram lines 5+33, bus 5B, restaurants, cafés, tobacconist, sausage stand, pharmacy, post office/bank, bakery, cabaret Vindobona...). 6 minutes walk to Gaußplatz (24h bakery "Prindl", tram 31, church), bus 5A in front of the house
Basic information
- Pets allowed: 1
- Type of property: holiday apartment
- is located in: Housing estate
- type of building: Multiple-family dwelling
- Floor on which the object can be found: 1. floor
- Total number of floors in the building above the ground floor: 3
- no youth groups
- non-smoking
- Number of bedrooms: 6
- Number of bathrooms: 3
Top features
- WiFi
- heating: Everywhere
- balcony
- Total of private car parking spaces: 2
- ? of which garage spaces: 2
- ? of which carport spaces: None
- ? of which private outdoor parking spaces: None
- distance to public multi-storey car park: 600 m
Sleeping
bedroom 10
- double bed (from 1.51 m to 1.79 m width)
bedroom 14
- double bed (from 1.31 m to 1.50 m width)
bedroom 18
- double sofa bed for 2 people
bedroom 2
- double bed (from 1.51 m to 1.79 m width)
bedroom 22
- double sofa bed for 2 people
bedroom 6
- double bed (from 1.51 m to 1.79 m width)
Bathroom
bathroom 10
- bath tub
bathroom 2
- shower
bathroom 6
- bath tub
Guest toilet (or WC)
- toilet
Guest toilet (or WC)
- toilet
Cooking/Living
- coffee machine: coffee machine
- fridge/freezer: freezing compartment, deep freezer, fridge
- stove: ceramic hob
- kitchen hood
- oven
- toaster
- microwave
- electric kettle
- dishwasher
- dishtowels
- size of kitchen: 38 m²
- number of dining tables: 2
- number of seats: 14
Entertainment
- TV: cable TV
- DVD player
- radio
- CD player
- party games for adults
For children
- high chair
- party games for children
Utility
- washing machine: For sole use in the object
- Clothes dryer: For communal use in the building
- iron
- vaccum cleaner
- fan: 4
Outside area
- grilling not allowed
Surroundings
- Grocery store: 150 m
- going out: 2,5 km
- restaurant: 150 m
- train station: 2,5 km
- airport: 20,0 km
- distance public transport: 300 m
- river: 800 m
- playground: 150 m
- public swimming pool: 2,0 km
Distinctive features
- historical building
Type of building: Multiple-family dwelling.
Directly at the Augarten (children/family outdoor pool and playgrounds in summer), supermarkets Billa (3 minutes walk) and Lidl (4 minutes walk), Wallensteinplatz (4 minutes walk, tram lines 5+33, bus 5B, restaurants, cafés, tobacconist, sausage stand, pharmacy, post office/bank, bakery, cabaret Vindobona...). 6 minutes walk to Gaußplatz (24h bakery "Prindl", tram 31, church), bus 5A in front of the house
Basic information
- Pets allowed: 1
- Type of property: holiday apartment
- is located in: Housing estate
- type of building: Multiple-family dwelling
- Floor on which the object can be found: 1. floor
- Total number of floors in the building above the ground floor: 3
- no youth groups
- non-smoking
- Number of bedrooms: 6
- Number of bathrooms: 3
Top features
- WiFi
- heating: Everywhere
- balcony
- Total of private car parking spaces: 2
- ? of which garage spaces: 2
- ? of which carport spaces: None
- ? of which private outdoor parking spaces: None
- distance to public multi-storey car park: 600 m
Sleeping
bedroom 10
- double bed (from 1.51 m to 1.79 m width)
bedroom 14
- double bed (from 1.31 m to 1.50 m width)
bedroom 18
- double sofa bed for 2 people
bedroom 2
- double bed (from 1.51 m to 1.79 m width)
bedroom 22
- double sofa bed for 2 people
bedroom 6
- double bed (from 1.51 m to 1.79 m width)
Bathroom
bathroom 10
- bath tub
bathroom 2
- shower
bathroom 6
- bath tub
Guest toilet (or WC)
- toilet
Guest toilet (or WC)
- toilet
Cooking/Living
- coffee machine: coffee machine
- fridge/freezer: freezing compartment, deep freezer, fridge
- stove: ceramic hob
- kitchen hood
- oven
- toaster
- microwave
- electric kettle
- dishwasher
- dishtowels
- size of kitchen: 38 m²
- number of dining tables: 2
- number of seats: 14
Entertainment
- TV: cable TV
- DVD player
- radio
- CD player
- party games for adults
For children
- high chair
- party games for children
Utility
- washing machine: For sole use in the object
- Clothes dryer: For communal use in the building
- iron
- vaccum cleaner
- fan: 4
Outside area
- grilling not allowed
Surroundings
- Grocery store: 150 m
- going out: 2,5 km
- restaurant: 150 m
- train station: 2,5 km
- airport: 20,0 km
- distance public transport: 300 m
- river: 800 m
- playground: 150 m
- public swimming pool: 2,0 km
Distinctive features
- historical building
Type of building: Multiple-family dwelling.
Vores gæsteanmeldelser Eksterne anmeldelser
Faciliteter
-
Afstand
-
Lufthavnsliv23,2 km
-
Offentlig transport300 m
-
-
Husinfo
-
Antal badeværelser3
-
Antal soveværelser6
-
Antal værelser11
-
Bad og bruser
-
Boligareal180 m²
-
Bruser
-
DVD
-
Enkelt garage
-
Fryser
-
Garage
-
Husdyr1
-
Håndklæder gratis
-
Ikke rygere
-
Ingen grupper
-
Ingen ungdomsgrupper
-
Internet
-
Internet (DSL)
-
Internet (ISDN)
-
Køleskab
-
Legeplads
-
Linnedfri
-
Mikroovn
-
Opvaskemaskine
-
Ovn
-
Parkering overdækket
-
Radiator
-
Terrasse
-
Tørretumbler
-
Vaskemaskine
-
WLAN
-
-
Tema
-
Byferie
-
Natteliv
-
Miniferie
Der er begrænset mulighed for miniferie hele året, typisk uden for højsæsonen.
Priser og kalender
Kalender
Varighed
Personer
Pris
Periode
- Ankomst
- Afrejse
- Varighed
- 1 uge
Personer
Ingen personer er valgt
Bemærk
Ankomst er ikke valgt.
Der er ikke valgt personer.
