Ferielejlighed - 4 personer - Sonnleitn - 9620 - Nassfeld - Hermagor
Alternative emner
I nærheden (5)4 personer
Oversigt
Emne nr.: 532-727226
7 overnatninger
Fra
DKK 8.797,-
4
personer
- Soverum 2
- Boligareal 50 m²
- Husdyr Ikke tilladt
- Tilbyder miniferie Ja
- Internet Ja
- Parabol/kabel TV Ja
- Ikkeryger Ja
Beskrivelse
Beskrivelsen foreligger desværre ikke på Dansk. Se teksten på Tysk nedenfor, eller se den maskinoversatte tekst på Dansk.
Appartement "Sonja" Nassfeld, Appartment/Fewo, Dusche, WC
TOPLAGE DIREKT AN DER PISTE BEIM 4-ER SESSELLIFT
Sie können buchstäblich von der Wohnung auf die Piste fahren Das Appartement **** Sonja befindet sich im Haus Carinthia am Nassfeld direkt beim 4-er Sessellift im Dorf Sonnleitn. Sie können die Skier vor der Haustüre an- und abschnallen und schon sind Sie mit ein paar Abschwüngen bei der Skiliftstation in Sonnleitn Das Haus bietet das Restaurant/Pizzeria Primavera, das Cafe-Restaurant Servus mit großer Sonnenterrasse direkt an der Piste vor dem Haus, ein Sportgeschäft mit Skiverleih und Skiservice, eine Skischule sowie einen Schiaufbewahrungsraum mit Schischuhtrocknern.
Eine beleuchtete Rodelbahn führt bis zum Haus.
Ein Mini Markt als Lebensmittelgeschäft sowie andere Restaurants und Cafes befinden sich vis a vis.
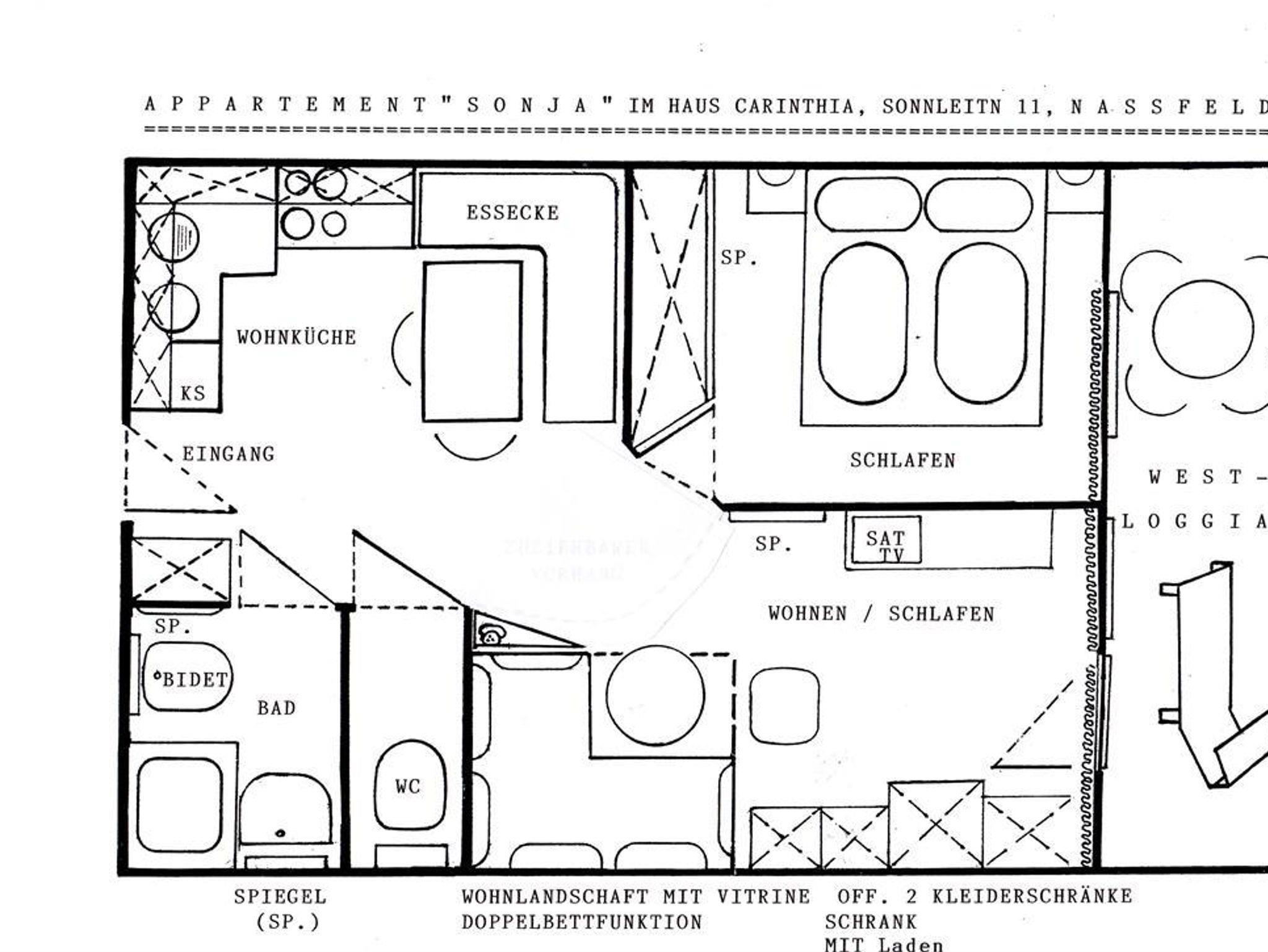
Die Ferienwohnung ist sehr komfortabel und ansprechend ausgestattet und eingerichtet, 50 m2 groß und besteht aus
1 Küche mit großem Esstisch, Kaffeemaschine, Mikrowelle, Toaster, Kühlschrank/Gefrierfach, E-Herd mit Backofen, Fön, Bügeleisen, CD-Player und Radio
1 Schlafzimmer mit großem Doppelbett und großem Spiegelschrank,
1 Wohnschlafzimmer mit Doppelcouch, SAT-TV 50Zoll Flat Screen mit Netflix und integriertem DVD-Player,
1 großen West-Balkon mit Sitzgarnitur, Tisch und Sonnenschirm sowie schönem Ausblick ins Dorfgeschehen und auf die Berge,
1 Bad mit Dusche und Bidet sowie 2 großen Spiegeln,
1 WC vom Bad getrennt
1 Parkplatz kostenfrei
Wlan vorhanden
Unsere Homepage: www.apartment-sonja.at und geben Sie bitte für noch umfassendere Infos und Bilder folgendes ein:
https://www.bergfex.at/sommer/nassfeld-pressegger-see/ferienwohnung-appartement-sonja/?force=1 or
https://www.bergfex.at/sommer/nassfeld-pressegger-see/ferienwohnung-appartement-sonja/
https://www.bergfex.com/nassfeld/ferienwohnung-appartement-sonja/
Email:
Tel.: +43 664 222 6418
Weitere Informationen:
Verbringen Sie einen schönen Skiurlaub bei uns!
Das Nassfeld gehört zu den zehn besten Skigebieten Österreichs und punktet mit seinen 31 Skiliften und 60 traumhaft schönen und jederzeit vorbildlichstgepflegten Pisten von 110 km Länge - 19 Schleppliften, 5 Kabinenseilbahnen, 7 vierer- bzw. 6er Sesseliften
Boarder Cross Funpark. Flutlichtpiste. Gepflegte Loipen lassen auch für den Skilangläufer keine Wünsche offen.
Wander-, Bike- und Kletterurlaub Das Appartement Sonja **** ist sehr komfortabel eingerichtet und bestens ausgestattet. Es befindet sich am Nassfeld im Haus Carinthia im Dorf Sonnleitn, sonnig, ruhig und zentral, ein phantastisches Wandergebiet mit großem Freizeitangebot erwartet Sie. 100 m von unserem Haus entfernt befinden sich ein Mini Markt für Lebensmittel sowie das Almstüberl und der Dorfwirt, beide bieten eine sehr gute Küche. Das Haus ist idealer Ausgangspunkt für Wanderungen auf die Almen zu den vielen umliegenden Almhütten mit guter Bauernkost oder auf die Berge und Berggipfel.
Der Funpark befindet sich in der Nähe der Tressdorfer Alm und diese ist von uns aus zu Fuß in 20 Minuten erreichbar. Die Flying Fox Meile mit Hochseilgarten lässt den Adrenalinspiegel hochschnellen, im Felsenlabyrinth erlebt man Abenteuer, toller Fahrspaß mit der 2 km langen Sommerrodelbahn Pendolino, Nervenkitzel bei Klettersteigen und im Klettergarten, Bogenschießen hat einen eigenen Reiz, das Nassfeld Kino genießen, den interessanten Aqua Trail Bergwasser mit kleinen Bächen und Wasserrädern, Trampolin, und See mit altem Schiff und Gondel bewandern, es gibt viele Relaxliegen mit toller Aussicht auf das umliegende Bergpanorama. Der Aqua Trail ist auch mit Kinderwagen befahrbar, dies alles garantiert Ihnen einen unvergesslichen Urlaub.
Auf den Wanderwegen befinden sich viele bewirtschaftete Almhütten mit herzhafter Brettljause, schmackhaftem Almkäse, Schmankerln aus der Region, Buttermilch, Holundersaft etc. oder Sie genießen in diversen Gastlokalen regionale Kost und Pizza, Pasta sowie Fischspezialitäten und ausgezeichneten Kaffee.
Unsere Homepage: www.apartment-sonja.at
https://www.bergfex.at/sommer/nassfeld-pressegger-see/ferienwohnung-appartement-sonja/
Email:
Tel. Nr. +43 664 222 6418
Die Ferienwohnung ist sehr komfortabel und ansprechend ausgestattet und eingerichtet, 50 m2 groß und besteht aus
1 Küche mit großem Esstisch, Kaffeemaschine, Mikrowelle, Toaster, Kühlschrank/Gefrierfach, E-Herd mit Backofen, Fön, Bügeleisen, CD-Player und Radio
1 Schlafzimmer mit großem Doppelbett und großem Spiegelschrank,
1 Wohnschlafzimmer mit Doppelcouch, SAT-TV mit Flat Screen und integriertem DVD-Player,
1 großen West-Balkon mit Sitzgarnitur, Tisch und Sonnenschirm sowie schönem Ausblick ins Dorfgeschehen und auf die Berge,
1 Bad mit Dusche und Bidet sowie 2 großen Spiegeln,
1 WC vom Bad getrennt
1 Parkplatz kostenfrei
Wlan vorhanden
Sie können buchstäblich von der Wohnung auf die Piste fahren Das Appartement **** Sonja befindet sich im Haus Carinthia am Nassfeld direkt beim 4-er Sessellift im Dorf Sonnleitn. Sie können die Skier vor der Haustüre an- und abschnallen und schon sind Sie mit ein paar Abschwüngen bei der Skiliftstation in Sonnleitn Das Haus bietet das Restaurant/Pizzeria Primavera, das Cafe-Restaurant Servus mit großer Sonnenterrasse direkt an der Piste vor dem Haus, ein Sportgeschäft mit Skiverleih und Skiservice, eine Skischule sowie einen Schiaufbewahrungsraum mit Schischuhtrocknern.
Eine beleuchtete Rodelbahn führt bis zum Haus.
Ein Mini Markt als Lebensmittelgeschäft sowie andere Restaurants und Cafes befinden sich vis a vis.
Die Ferienwohnung ist sehr komfortabel und ansprechend ausgestattet und eingerichtet, 50 m2 groß und besteht aus
1 Küche mit großem Esstisch, Kaffeemaschine, Mikrowelle, Toaster, Kühlschrank/Gefrierfach, E-Herd mit Backofen, Fön, Bügeleisen, CD-Player und Radio
1 Schlafzimmer mit großem Doppelbett und großem Spiegelschrank,
1 Wohnschlafzimmer mit Doppelcouch, SAT-TV 50Zoll Flat Screen mit Netflix und integriertem DVD-Player,
1 großen West-Balkon mit Sitzgarnitur, Tisch und Sonnenschirm sowie schönem Ausblick ins Dorfgeschehen und auf die Berge,
1 Bad mit Dusche und Bidet sowie 2 großen Spiegeln,
1 WC vom Bad getrennt
1 Parkplatz kostenfrei
Wlan vorhanden
Unsere Homepage: www.apartment-sonja.at und geben Sie bitte für noch umfassendere Infos und Bilder folgendes ein:
https://www.bergfex.at/sommer/nassfeld-pressegger-see/ferienwohnung-appartement-sonja/?force=1 or
https://www.bergfex.at/sommer/nassfeld-pressegger-see/ferienwohnung-appartement-sonja/
https://www.bergfex.com/nassfeld/ferienwohnung-appartement-sonja/
Email:
Tel.: +43 664 222 6418
Weitere Informationen:
Verbringen Sie einen schönen Skiurlaub bei uns!
Das Nassfeld gehört zu den zehn besten Skigebieten Österreichs und punktet mit seinen 31 Skiliften und 60 traumhaft schönen und jederzeit vorbildlichstgepflegten Pisten von 110 km Länge - 19 Schleppliften, 5 Kabinenseilbahnen, 7 vierer- bzw. 6er Sesseliften
Boarder Cross Funpark. Flutlichtpiste. Gepflegte Loipen lassen auch für den Skilangläufer keine Wünsche offen.
Wander-, Bike- und Kletterurlaub Das Appartement Sonja **** ist sehr komfortabel eingerichtet und bestens ausgestattet. Es befindet sich am Nassfeld im Haus Carinthia im Dorf Sonnleitn, sonnig, ruhig und zentral, ein phantastisches Wandergebiet mit großem Freizeitangebot erwartet Sie. 100 m von unserem Haus entfernt befinden sich ein Mini Markt für Lebensmittel sowie das Almstüberl und der Dorfwirt, beide bieten eine sehr gute Küche. Das Haus ist idealer Ausgangspunkt für Wanderungen auf die Almen zu den vielen umliegenden Almhütten mit guter Bauernkost oder auf die Berge und Berggipfel.
Der Funpark befindet sich in der Nähe der Tressdorfer Alm und diese ist von uns aus zu Fuß in 20 Minuten erreichbar. Die Flying Fox Meile mit Hochseilgarten lässt den Adrenalinspiegel hochschnellen, im Felsenlabyrinth erlebt man Abenteuer, toller Fahrspaß mit der 2 km langen Sommerrodelbahn Pendolino, Nervenkitzel bei Klettersteigen und im Klettergarten, Bogenschießen hat einen eigenen Reiz, das Nassfeld Kino genießen, den interessanten Aqua Trail Bergwasser mit kleinen Bächen und Wasserrädern, Trampolin, und See mit altem Schiff und Gondel bewandern, es gibt viele Relaxliegen mit toller Aussicht auf das umliegende Bergpanorama. Der Aqua Trail ist auch mit Kinderwagen befahrbar, dies alles garantiert Ihnen einen unvergesslichen Urlaub.
Auf den Wanderwegen befinden sich viele bewirtschaftete Almhütten mit herzhafter Brettljause, schmackhaftem Almkäse, Schmankerln aus der Region, Buttermilch, Holundersaft etc. oder Sie genießen in diversen Gastlokalen regionale Kost und Pizza, Pasta sowie Fischspezialitäten und ausgezeichneten Kaffee.
Unsere Homepage: www.apartment-sonja.at
https://www.bergfex.at/sommer/nassfeld-pressegger-see/ferienwohnung-appartement-sonja/
Email:
Tel. Nr. +43 664 222 6418
Die Ferienwohnung ist sehr komfortabel und ansprechend ausgestattet und eingerichtet, 50 m2 groß und besteht aus
1 Küche mit großem Esstisch, Kaffeemaschine, Mikrowelle, Toaster, Kühlschrank/Gefrierfach, E-Herd mit Backofen, Fön, Bügeleisen, CD-Player und Radio
1 Schlafzimmer mit großem Doppelbett und großem Spiegelschrank,
1 Wohnschlafzimmer mit Doppelcouch, SAT-TV mit Flat Screen und integriertem DVD-Player,
1 großen West-Balkon mit Sitzgarnitur, Tisch und Sonnenschirm sowie schönem Ausblick ins Dorfgeschehen und auf die Berge,
1 Bad mit Dusche und Bidet sowie 2 großen Spiegeln,
1 WC vom Bad getrennt
1 Parkplatz kostenfrei
Wlan vorhanden
7 Nächte im gemütlichen **** Appartement
für bis zu 4 Personen
direkt an der Piste beim 4-er Sessel-Skilift
1 Flasche Wein als Willkommenstrunk
Skiaufbewahrungsraum im Haus
Restaurant im Haus
für bis zu 4 Personen
direkt an der Piste beim 4-er Sessel-Skilift
1 Flasche Wein als Willkommenstrunk
Skiaufbewahrungsraum im Haus
Restaurant im Haus
Vores gæsteanmeldelser Eksterne anmeldelser
Faciliteter
-
Aktivitetsfaciliteter
-
Bueskydning
-
Kælkebakke
-
Sneskovandring
-
-
Børnefaciliteter
-
Familievenlig
-
-
Grundlæggende faciliteter
-
Størrelse50 m²
-
-
Indkvartering Faciliteter
-
Elevator/elevator
-
Ikke-ryger hus
-
Internet i det offentlige område
-
Skirum
-
-
Omgivende faciliteter
-
Parkeringsplads
-
Ski-/Rodelverleih
-
-
Servicefaciliteter
-
Bad / WC
-
Balkon
-
Bruser
-
CD afspiller
-
Eisen
-
Flere soveværelser
-
Håndklæder
-
Hårtørrer
-
Ikke-rygere
-
Internet - WiFi
-
Kabel/Sat
-
Kaffemaskine
-
Komfur
-
Køleskab
-
Mikroovn
-
Mulighed for fryser
-
Opvarmet
-
Ovn
-
Radio
-
Sengetøj
-
Separat køkken
-
Siddegruppe
-
Sofa seng
-
Soveværelse
-
Toaster
-
TV
-
TV - fladskærm
-
Vandvarmer
-
Vækkeur
-
WC-toilet
-
Miniferie
Der er begrænset mulighed for miniferie hele året, typisk uden for højsæsonen.
Priser og kalender
Kalender
Varighed
Personer
Pris
Periode
- Ankomst
- Afrejse
- Varighed
- 1 uge
Personer
Ingen personer er valgt
Bemærk
Ankomst er ikke valgt.
Der er ikke valgt personer.
