Sommerhus - 10 personer - Strandweg - 17373 - Ueckermünde
Alternative emner
I nærheden (24)10 personer
heraf 2 børn (0-7 år)
Oversigt
Emne nr.: 530-313035
- Soverum 4
- Badeværelser 3
- Boligareal 140 m²
- Husdyr Ikke tilladt
- Tilbyder miniferie Ja
- Afstand vand 200 m
- Afstand indkøb 3.500 m
- Sauna Ja
- Internet Ja
- Parabol/kabel TV Ja
- Brændeovn Ja
- Indhegnet område Ja
- Vaskemaskine Ja
- Opvaskemaskine Ja
- Ikkeryger Ja
- Energivenligt Ja
Beskrivelse
Beskrivelsen foreligger desværre ikke på Dansk. Se teksten på Tysk nedenfor, eller se den maskinoversatte tekst på Dansk.
Historisches Reetdachhaus mit Bauwagen und großem Obstgarten, Denkmal ans Haff
Reetgedecktes Bauernhaus mit großem Obstgarten und direkter Nähe (2 min.) zum Haffstrand. Hier können bis zu 6 Erwachsene und 2 Kinder bis 7 Jahre ihren traumhaften Urlaub verbringen.
Weitere 1-2 Personen können im schwedenroten Bauwagen übernachten. Dieser steht Ihnen ab einer Buchung von 7 erwachsenen Personen kostenpflichtig zur Verfügung.
Das Kolonistenhaus aus der Zeit Friedrich des Großen ist zusammen mit Stallgebäude und dem Obstgarten als Ensemble unter Denkmalschutz gestellt und wurde von 2014 bis 2016 mit viel Liebe zum Detail und konsequent baubiologisch saniert. Die Lehm- und Kalkputze an den Wänden, das temperaturausgleichende Reetdach und die Wärmedämmung mit Hanfwolle sorgen für ein sehr ausgewogenes Raumklima.
Die historische Substanz bietet zu jeder Jahreszeit einen besonderen Rahmen für Ihren Urlaub, ganz gleich ob gemeinsam mit Freunden oder als Familie zusammen mit den Großeltern. Als Feriengast können sie nun die lange Geschichte des Hauses weiterschreiben, jeder Urlaub ein neues Kapitel.
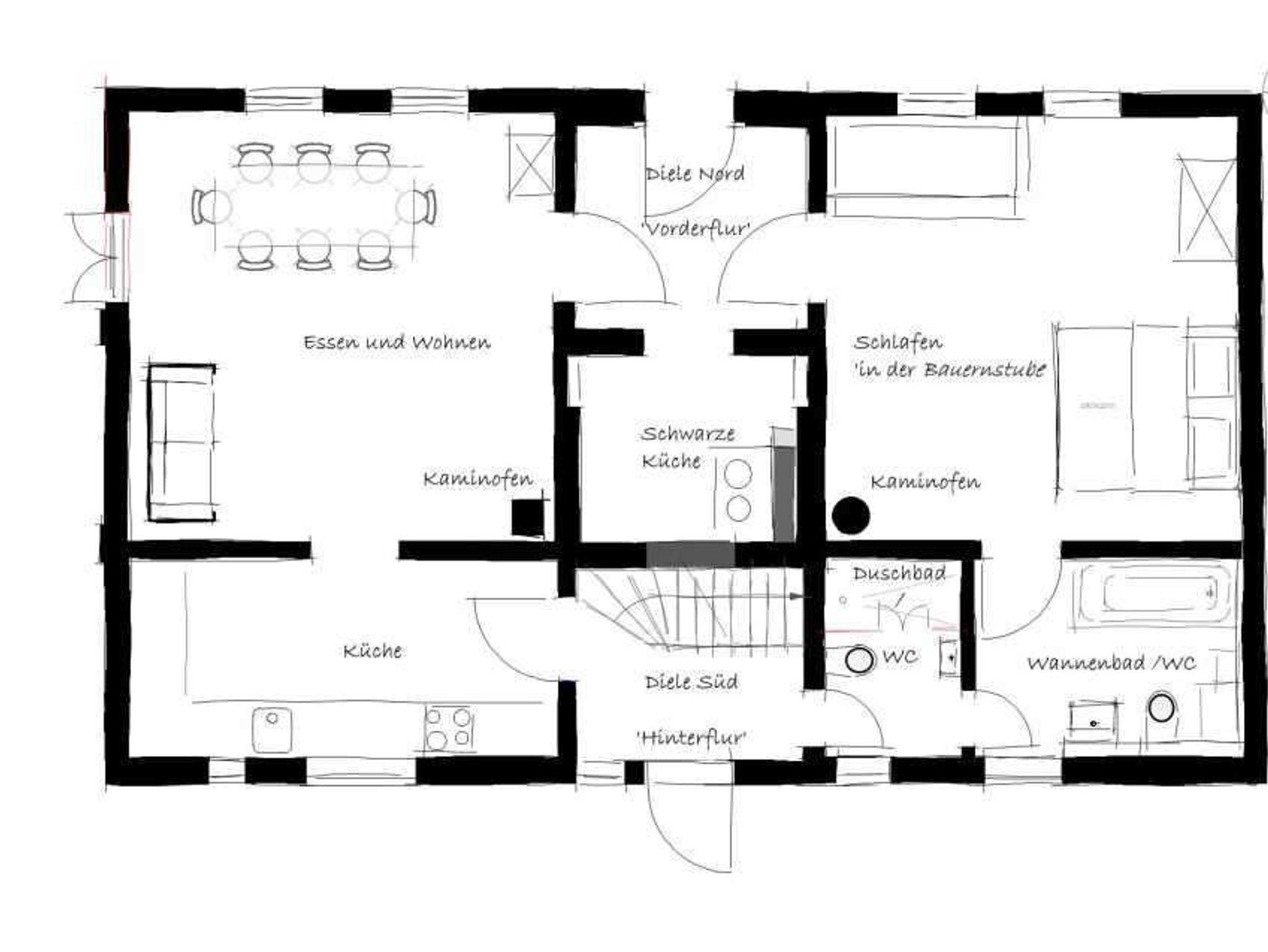
Auf 140 m² Wohnfläche erwarten Sie großzügige Aufenthaltsbereiche im Erdgeschoss und unter dem Dach. Zudem sorgen 3 separate Zimmer mit Doppelbetten für komfortable Schlaf- und Rückzugsmöglichkeiten für bis zu 6 Personen. Bei Bedarf gibt es nach Absprache noch Möglichkeiten zur Aufbettung für Kinder. Die Küche ist voll ausgestattet und der Esstisch groß, so dass auch ausgedehnten Schlemmereien nichts im Wege steht.
Zwei Kaminöfen sorgen für behagliche Wärme an kalten Tagen oder während der Winterzeit. Die Grundversorgung übernimmt aber eine Gaszentralheizung, so dass das Haus übers ganze Jahr durchgehend wohnlich ist. Spülmaschine, Waschmaschine und ein Zentralstaubsauger ergänzen den technischen Komfort. Im Sommer bietet der Garten (1700 m²) dann ausgiebige Sitz- und Aufenthaltsmöglichkeiten in Sonne und Schatten und lädt dazu ein, die Seele baumeln zu lassen.
Der Bauwagen ist komplett saniert und steht im Garten unter alten Obstbäumen. Auf 14 qm finden sie allen Komfort: ein Doppelbett (160x200), eine Küchenzeile mit Kühlschrank, Wasserkocher, Doppelherdplatte sowie ein kleines Bad mit Dusche und WC.
Die Dämmung und der Kaminofen ermöglichen auch Übernachtungen in den Übergangszeiten, eine separate Buchung in der Vor.und Nachsaison ist auf Anfrage möglich.
Die Saunabenutzung kann auf Wunsch kostenpflichtig hinzugebucht werden. Wünschen Sie dazu ein großes Saunatuch, können Sie dieses gern vor Ort: 4,- € pro Tuch/ pro Person dazubuchen.
Weitere 1-2 Personen können im schwedenroten Bauwagen übernachten. Dieser steht Ihnen ab einer Buchung von 7 erwachsenen Personen kostenpflichtig zur Verfügung.
Das Kolonistenhaus aus der Zeit Friedrich des Großen ist zusammen mit Stallgebäude und dem Obstgarten als Ensemble unter Denkmalschutz gestellt und wurde von 2014 bis 2016 mit viel Liebe zum Detail und konsequent baubiologisch saniert. Die Lehm- und Kalkputze an den Wänden, das temperaturausgleichende Reetdach und die Wärmedämmung mit Hanfwolle sorgen für ein sehr ausgewogenes Raumklima.
Die historische Substanz bietet zu jeder Jahreszeit einen besonderen Rahmen für Ihren Urlaub, ganz gleich ob gemeinsam mit Freunden oder als Familie zusammen mit den Großeltern. Als Feriengast können sie nun die lange Geschichte des Hauses weiterschreiben, jeder Urlaub ein neues Kapitel.
Auf 140 m² Wohnfläche erwarten Sie großzügige Aufenthaltsbereiche im Erdgeschoss und unter dem Dach. Zudem sorgen 3 separate Zimmer mit Doppelbetten für komfortable Schlaf- und Rückzugsmöglichkeiten für bis zu 6 Personen. Bei Bedarf gibt es nach Absprache noch Möglichkeiten zur Aufbettung für Kinder. Die Küche ist voll ausgestattet und der Esstisch groß, so dass auch ausgedehnten Schlemmereien nichts im Wege steht.
Zwei Kaminöfen sorgen für behagliche Wärme an kalten Tagen oder während der Winterzeit. Die Grundversorgung übernimmt aber eine Gaszentralheizung, so dass das Haus übers ganze Jahr durchgehend wohnlich ist. Spülmaschine, Waschmaschine und ein Zentralstaubsauger ergänzen den technischen Komfort. Im Sommer bietet der Garten (1700 m²) dann ausgiebige Sitz- und Aufenthaltsmöglichkeiten in Sonne und Schatten und lädt dazu ein, die Seele baumeln zu lassen.
Der Bauwagen ist komplett saniert und steht im Garten unter alten Obstbäumen. Auf 14 qm finden sie allen Komfort: ein Doppelbett (160x200), eine Küchenzeile mit Kühlschrank, Wasserkocher, Doppelherdplatte sowie ein kleines Bad mit Dusche und WC.
Die Dämmung und der Kaminofen ermöglichen auch Übernachtungen in den Übergangszeiten, eine separate Buchung in der Vor.und Nachsaison ist auf Anfrage möglich.
Die Saunabenutzung kann auf Wunsch kostenpflichtig hinzugebucht werden. Wünschen Sie dazu ein großes Saunatuch, können Sie dieses gern vor Ort: 4,- € pro Tuch/ pro Person dazubuchen.
Auf 140 m² Wohnfläche erwarten Sie großzügige Aufenthaltsbereiche im Erdgeschoss und unter dem Dach. Zudem sorgen 3 separate Zimmer mit Doppelbetten für komfortable Schlaf- und Rückzugsmöglichkeiten für bis zu 6 Personen. Bei Bedarf gibt es nach Absprache noch Möglichkeiten zur Aufbettung für Kinder. Die Küche ist voll ausgestattet und der Esstisch groß, so dass auch ausgedehnten Schlemmereien nichts im Wege steht.
Zwei Kaminöfen sorgen für behagliche Wärme an kalten Tagen oder während der Winterzeit. Die Grundversorgung übernimmt aber eine Gaszentralheizung, so dass das Haus übers ganze Jahr durchgehend wohnlich ist. Spülmaschine, Waschmaschine und ein Zentralstaubsauger ergänzen den technischen Komfort. Im Sommer bietet der Garten (1700 m²) dann ausgiebige Sitz- und Aufenthaltsmöglichkeiten in Sonne und Schatten und lädt dazu ein, die Seele baumeln zu lassen.
Ergänzend zum Ferienhaus können wir Ihnen noch einen schwedenroten Bauwagen als Übernachtungsmöglichkeit für 1-2 Personen anbieten. Der Wagen ist komplett saniert und steht im Garten unter alten Obstbäumen.
Auf 14 qm finden sie allen Komfort: ein Doppelbett (160x200), eine Küchenzeile mit Kühlschrank,Wasserkocher, Doppelherdplatte, sowie ein kleines Bad mit Dusche und WC. Ab einer Buchung von 7 Personen stellen wir ihnen den Bauwagen zur Verfügung.
Die Dämmung und der Kaminofen ermöglichen auch Übernachtungen in den Übergangszeiten, eine separate Buchung in der Vor- und Nachsaison ist auf Anfrage möglich.
Auf 140 m² Wohnfläche erwarten Sie großzügige Aufenthaltsbereiche im Erdgeschoss und unter dem Dach. Zudem sorgen 3 separate Zimmer mit Doppelbetten für komfortable Schlaf- und Rückzugsmöglichkeiten für bis zu 6 Personen. Bei Bedarf gibt es nach Absprache noch Möglichkeiten zur Aufbettung für Kinder. Die Küche ist voll ausgestattet und der Esstisch groß, so dass auch ausgedehnten Schlemmereien nichts im Wege steht.
Zwei Kaminöfen sorgen für behagliche Wärme an kalten Tagen oder während der Winterzeit. Die Grundversorgung übernimmt aber eine Gaszentralheizung, so dass das Haus übers ganze Jahr durchgehend wohnlich ist. Spülmaschine, Waschmaschine und ein Zentralstaubsauger ergänzen den technischen Komfort. Im Sommer bietet der Garten (1700 m²) dann ausgiebige Sitz- und Aufenthaltsmöglichkeiten in Sonne und Schatten und lädt dazu ein, die Seele baumeln zu lassen.
Ergänzend zum Ferienhaus können wir Ihnen noch einen schwedenroten Bauwagen als Übernachtungsmöglichkeit für 1-2 Personen anbieten.
Der Wagen ist komplett saniert und steht im Garten unter alten Obstbäumen. Auf 14 qm finden Sie allen Komfort: ein Doppelbett ( 160X200), eine Küchenzeile mit Kühlschrank, Wasserkocher, Doppelherdplatte sowie ein kleines Bad mit Dusche und WC. Sie können den Bauwagen zusammen mit unserem Ferienhaus buchen, dann haben sie insgesamt Platz für bis zu 8 Erw. die Dämmung und der Kaminofen ermöglichen auch Übernachtungen in den Übergangszeiten, eine separate Buchung in der Vor- und Nachsaison ist auf Anfrage möglich.
Zwei Kaminöfen sorgen für behagliche Wärme an kalten Tagen oder während der Winterzeit. Die Grundversorgung übernimmt aber eine Gaszentralheizung, so dass das Haus übers ganze Jahr durchgehend wohnlich ist. Spülmaschine, Waschmaschine und ein Zentralstaubsauger ergänzen den technischen Komfort. Im Sommer bietet der Garten (1700 m²) dann ausgiebige Sitz- und Aufenthaltsmöglichkeiten in Sonne und Schatten und lädt dazu ein, die Seele baumeln zu lassen.
Ergänzend zum Ferienhaus können wir Ihnen noch einen schwedenroten Bauwagen als Übernachtungsmöglichkeit für 1-2 Personen anbieten. Der Wagen ist komplett saniert und steht im Garten unter alten Obstbäumen.
Auf 14 qm finden sie allen Komfort: ein Doppelbett (160x200), eine Küchenzeile mit Kühlschrank,Wasserkocher, Doppelherdplatte, sowie ein kleines Bad mit Dusche und WC. Ab einer Buchung von 7 Personen stellen wir ihnen den Bauwagen zur Verfügung.
Die Dämmung und der Kaminofen ermöglichen auch Übernachtungen in den Übergangszeiten, eine separate Buchung in der Vor- und Nachsaison ist auf Anfrage möglich.
Auf 140 m² Wohnfläche erwarten Sie großzügige Aufenthaltsbereiche im Erdgeschoss und unter dem Dach. Zudem sorgen 3 separate Zimmer mit Doppelbetten für komfortable Schlaf- und Rückzugsmöglichkeiten für bis zu 6 Personen. Bei Bedarf gibt es nach Absprache noch Möglichkeiten zur Aufbettung für Kinder. Die Küche ist voll ausgestattet und der Esstisch groß, so dass auch ausgedehnten Schlemmereien nichts im Wege steht.
Zwei Kaminöfen sorgen für behagliche Wärme an kalten Tagen oder während der Winterzeit. Die Grundversorgung übernimmt aber eine Gaszentralheizung, so dass das Haus übers ganze Jahr durchgehend wohnlich ist. Spülmaschine, Waschmaschine und ein Zentralstaubsauger ergänzen den technischen Komfort. Im Sommer bietet der Garten (1700 m²) dann ausgiebige Sitz- und Aufenthaltsmöglichkeiten in Sonne und Schatten und lädt dazu ein, die Seele baumeln zu lassen.
Ergänzend zum Ferienhaus können wir Ihnen noch einen schwedenroten Bauwagen als Übernachtungsmöglichkeit für 1-2 Personen anbieten.
Der Wagen ist komplett saniert und steht im Garten unter alten Obstbäumen. Auf 14 qm finden Sie allen Komfort: ein Doppelbett ( 160X200), eine Küchenzeile mit Kühlschrank, Wasserkocher, Doppelherdplatte sowie ein kleines Bad mit Dusche und WC. Sie können den Bauwagen zusammen mit unserem Ferienhaus buchen, dann haben sie insgesamt Platz für bis zu 8 Erw. die Dämmung und der Kaminofen ermöglichen auch Übernachtungen in den Übergangszeiten, eine separate Buchung in der Vor- und Nachsaison ist auf Anfrage möglich.
Vor Ort
Die vereinbarte Kaution von 200 EUR ist bis spätestens 4 Wochen vor Reiseantritt zusammen mit der Restzahlung (siehe § 7) anzuweisen. Die Rückerstattung erfolgt innerhalb von 10 Tagen nach Ihrer Abreise auf Ihr Bankkonto, sofern das Mietobjekt wieder mängelfrei an uns übergeben wurde. Während der Mietzeit entstandene Schäden (dazu zählt u. a. auch ein stark erhöhter Reinigungsaufwand) werden mit dem hinterlegten Kautionsbetrag verrechnet. Bei Schäden, die den Kautionsbetrag überschreiten, erfolgt keine Rückerstattung. Zum weiteren Ausgleich des Schadens wird dann eine entsprechende Nachforderung an den Mieter gestellt.
Die vereinbarte Kaution von 200 EUR ist bis spätestens 4 Wochen vor Reiseantritt zusammen mit der Restzahlung (siehe § 7) anzuweisen. Die Rückerstattung erfolgt innerhalb von 10 Tagen nach Ihrer Abreise auf Ihr Bankkonto, sofern das Mietobjekt wieder mängelfrei an uns übergeben wurde. Während der Mietzeit entstandene Schäden (dazu zählt u. a. auch ein stark erhöhter Reinigungsaufwand) werden mit dem hinterlegten Kautionsbetrag verrechnet. Bei Schäden, die den Kautionsbetrag überschreiten, erfolgt keine Rückerstattung. Zum weiteren Ausgleich des Schadens wird dann eine entsprechende Nachforderung an den Mieter gestellt.
Vores gæsteanmeldelser Eksterne anmeldelser
Faciliteter
-
Afstande
-
Til (kur)parken/skoven300 m
-
Til badepladsen/vandmassen200 m
-
Til bageren400 m
-
Til busstoppestedet300 m
-
Til centrum5 km
-
Til cykelstien200 m
-
Til golfbanen35 km
-
Til lægen3,5 km
-
Til motorvejen40 km
-
Til naboen100 m
-
Til pengeautomaten/banken3,5 km
-
Til restauranten300 m
-
Til stranden200 m
-
Til supermarkedet3,5 km
-
Til sygehuset/klinikken9 km
-
Til togstationen4,5 km
-
Til turistinformationen5 km
-
-
Aktivitetsfaciliteter
-
Cykelvenlig
-
Ridning
-
-
Børnefaciliteter
-
Familievenlig
-
Småbørns udstyr
-
-
Grundlæggende faciliteter
-
Byggeår1737
-
Størrelse140 m²
-
År renoveret2016
-
-
Indkvartering Faciliteter
-
100% grøn strøm
-
Allergivenlig
-
BBQ
-
Bevidst undgåelse af spild
-
Bæredygtigt byggeri
-
Cykelrum aflåselig
-
Cykelvenlig
-
Energibesparende belysning
-
Fælles sauna
-
Ikke-ryger hus
-
Internet i det offentlige område
-
Klasse A husholdningsapparater
-
Kontaktløs ind-/udtjekning
-
Lounge
-
Tilgængelig med offentlig transport
-
Vandrer venlig
-
Vaskeservice
-
Økologiske rengøringsmidler
-
-
Omgivende faciliteter
-
Cykelrum
-
Grunden er indhegnet
-
Have til brug
-
Parkeringsplads
-
Siddeplads i haven
-
-
Servicefaciliteter
-
Allergikere (dyrefri)
-
Bad / WC
-
Bad/toilet
-
Badekar
-
Balkon
-
Dobbeltseng
-
Dyr ikke tilladt
-
Eisen
-
Flere soveværelser
-
Gæstetoilet
-
Højstol
-
Håndklæder
-
Hårtørrer
-
Ikke-rygere
-
Internet - WiFi
-
Kabel/Sat
-
Kaffemaskine
-
Køleskab
-
Mulighed for fryser
-
Opvarmet
-
Opvaskemaskine
-
Ovn
-
Pejs/brændovn
-
Pude
-
Rejseseng/krybbe
-
Rengøringsmidler
-
Røgalarm
-
Sauna
-
Sengetøj
-
Separat ejendom
-
Separat køkken
-
Skrivebord
-
Strygebræt
-
Terrasse
-
Toaster
-
Toiletpapir
-
Træ- eller parketgulve
-
TV
-
TV - fladskærm
-
Vandvarmer
-
Vaskemaskine
-
Miniferie
Der er mulighed for miniferie hele året.
Priser og kalender
Kalender
Varighed
Pris
Periode
- Ankomst
- Afrejse
- Varighed
- 1 uge
Personer
Fra 2 til 10 personer
heraf 2 børn (0-7 år)
Bemærk
Ankomst er ikke valgt.
