Sommerhus - 2 personer - Böhler Landstr. - 25826 - St. Peter-Ording

Beskrivelse

Beskrivelsen foreligger desværre ikke på Dansk. Se teksten på Tysk nedenfor, eller se den maskinoversatte tekst på Dansk.
Ferienhaus Jan und Gret

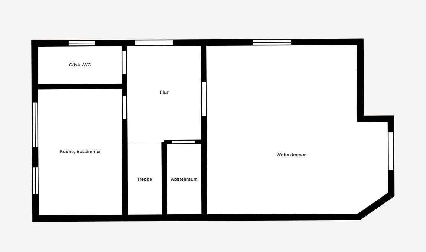
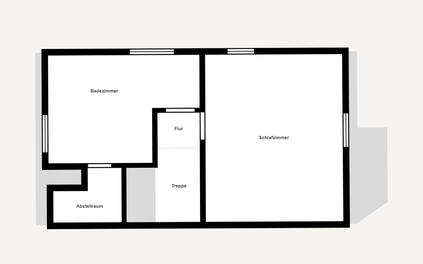
Kleine, 1995 erbaute Doppelhaushälfte im Ortsteil Böhl, ca. 60 qm groß, verteilt auf 2 Etagen. Qualitativ hochwertige Ausstattung mit Kabel-TV, Stereoanlage, Geschirrspüler, Herd mit Backofen, Mikrowelle, möblierte Terrasse mit Strandkorb, Gartengrundstück, Abstellraum für Fahrräder und PKW-Stellplatz am Haus. Ca. 15 Minuten zu Fuß zum Seedeich und ins Zentrum des Dorfes mit Restaurants, Cafés und Einkaufsmöglichkeiten. Raumaufteilung: Schlafraum (Doppelbett), Duschbad/WC und Abstellraum im Obergeschoss. Wohnraum, separate Küche, Gäste-WC und Abstellraum im Erdgeschoss. WLAN vorhanden. Bettwäsche und Handtücher inklusive. Keine Haustiere erlaubt.

Ferienhaus Jan und Gret - Eine Doppelhaushälfte für erholsame Urlaubstage, ca. 15 Gehminuten zum Seedeich mit Strandübergang und ca. 20 ins Dorfzentrum. Das Haus hat eine Größe von ca. 60qm verteilt auf 2 Etagen. Die Einrichtung ist im dänischen Stil gehalten. Im Erdgeschoss befindet sich ein Gäste-WC, eine separate Küche inkl. Geschirrspüler und Essecke. Das Wohnzimmer ist ausgestattet unter anderem mit einem Fernseher und einer Stereoanlage. Hier lassen sich gemütliche Abende verbringen. Im Obergeschoss gibt es 1 Duschbad und 1 Schlafraum. Zudem stehen Ihnen eine Terrasse mit Gartenmöbeln inkl. Strandkorb zur Verfügung, auf denen Sie Ihren Tag ausklingen lassen dürfen. Ein kostenfreier PKW-Stellplatz ist vorhanden

Raumaufteilung

  • Schlafzimmer, 2 Personen
    • Doppelbett

Populære faciliteter

  • Soverum 1
  • Badeværelser 1
  • Boligareal 60 m²
  • Husdyr Ikke tilladt
  • Tilbyder miniferie Ja
  • Afstand vand 2.600 m
  • Afstand indkøb 1.600 m
  • Internet Ja
  • Opvaskemaskine Ja
  • Ikkeryger Ja

Alle faciliteter

  • Afstand

    • Afstand indkøb
      1,6 km
    • Strandafstand
      2,4 km
    • Sø afstand
      2,6 km
  • Aktiviteter

    • Cykling
    • Fodbold
    • Golf
    • Jogging
    • Nordic walking
    • Ridning
    • Surfing
    • Svømning
    • Tennis
    • Vandsport
  • Badeværelse

    • Badeværelse vindue
    • Bruseantal
      1
    • Bruser
    • Gæstetoilet
      1
    • Håndklæder
    • Håndvask
    • Hårtørrer
    • WC
  • Grundlæggende

    • Etageantal
      2
    • Ikke-ryger
    • Kvadratmeter
      60 m²
    • Værelser
      2
  • Hus

    • Dag spa
    • Dobbeltsenge
      1
    • Familie
    • HIFI
    • Internet
    • Komfur
    • Kultur
    • Lounge siddepladser
    • Makeup spejl
    • Radiator
    • Røgalarm
    • Senge
      2
    • Sengetøj
    • Skraldespand
    • Sofa
    • Spejl
    • Spisebord
    • Spisepladser
    • Strygebræt
    • Strygejern
    • Støvsuger
    • TV
    • Varmt vand
    • WiFi
  • Køkken

    • Kaffemaskine
    • Køkken
    • Køkkenredskaber
    • Køleskab
    • Mikroovn
    • Opvask
    • Opvaskemaskine
    • Ovn
  • Udendørs

    • Antal parkeringspladser
      1
    • Have
    • Havemøbler
    • Parasol
    • Privat P-plads

Miniferie

Der er mulighed for miniferie i udvalgte perioder af året.

Prices and calendar

Kalender

Ankomst
Næste
   Se om emnet er ledigt på den valgte dato
Ledig
Optaget
   Ankomst mulig
Varighed
Personer

Pris

Periode
Ankomst
Afrejse
Varighed
1 uge
Personer
Ingen personer er valgt

Bemærk

Ankomst er ikke valgt.
Der er ikke valgt personer.
Aftale- og lejebetingelser

Vores gæsteanmeldelser Eksterne anmeldelser

Ingen gæsteanmeldelser
4,9
14 eksterne anmeldelser
5,0
september 2025
Generel:
Sehr schönes kleines Ferienhaus für 2 Personen mit eigenem Gartenanteil. Sehr großes Badezimmer mit kleinem Nebenraum, wo man gut die Koffer verstauen kann. In der Küche ist alles vorhanden was man braucht. Wir können das Haus weiterempfehlen!
5,0
september 2025
Generel:
Sind bereits das 3. Mal in Jan und Gret gewesen. Hatten es auf Facebook entdeckt: Feriendomizile SPO.
5,0
august 2025
Generel:
Das Mietobjekt ist ist sehr zu empfehlen. Es ist ruhig gelegen und trotzdem kann man alles sehr schnell erreichen. Das Haus hat einen wunderschönen gepflegten Garten, in dem man sich sehr gerne entspannt. Für 2 Personen ist das Haus optimal.
5,0
juli 2025
5,0
juni 2025
Generel:
Wir waren jetzt schon zum 3. Male hier im Haus und kommen im September nochmal. Wir sind gerne hier, weil uns die Aufteilung sehr gut gefällt. Die Matratzen sind sehr rückenfreundlich. Das Bad ist sehr geräumig und mit einem kleinen Nebenraum verbunden, sodass man gut seine Koffer abstellen kann. Auch in der kleinen Küche ist für 2 Personen alles vorhanden was man zum Kochen braucht.
5,0
september 2024
Generel:
Das Haus ist optimal für 2 Personen. Wir waren jetzt zum 2. Mal hier und werden bestimmt wieder kommen. Die Gegend ist sehr schön zum Radfahren und Erholen. Alles perfekt.
4,5
september 2024
Generel:
Ein toller Ort mit tollen Menschen. Alle sind so freundlich und zuvorkommend. Also Koffer packen und auf nach SPO. Es lohnt sich.
4,0
august 2024
Generel:
Schöne Wohnung in einer sehr ruhigen Gegend. Die Straße stört kaum. Gepflegter Garten und schöne Terrasse. Gut eingerichtet. Schlechtes WLAN Relativ große Entfernungen zu Lokalen. Dadurch aber schön ruhig
5,0
juni 2024
Generel:
Das Häuschen ist sehr zu empfehlen. Die Küche war für 2 Personen bestens ausgestattet. Das Wetter war in den 2 Wochen optimal und wir konnten viel mit dem Rad unternehmen. Wir kommen bestimmt wieder.
5,0
juni 2024
Generel:
Wir können St.-Peter-Ording nur empfehlen. Unterkunft, Wetter, Restaurants, alles hat gepasst.
4,5
maj 2024
Generel:
Das Haus Jan und Gred ist sehr zu empfehlen.
5,0
marts 2024
Generel:
Es war eine schöne Reise. Besonders schön fand ich, dass wir eine eigene Terrasse hatten, Gartenstühle und Liegen, und dass wir die Fahrräder in der Garage abstellen konnten. Ansonsten war die Wohnung wie beschrieben und somit prima :-)
5,0
september 2023
Generel:
SPO ist eine Reise wert.
5,0
juli 2023
Generel:
Die Wohnung ist absolut ohne Makel. Sehr gut und sauber.

Inspiration