Sommerhus - 6 personer - Bövergeest - 25826 - St. Peter-Ording

Beskrivelse

Beskrivelsen foreligger desværre ikke på Dansk. Se teksten på Tysk nedenfor, eller se den maskinoversatte tekst på Dansk.
DHH "Marschblick" - Erholsame Zeit für 6 Personen mit freiem Blick in die Natur

Liegt malerisch in St. Peter Dorf. Die 115 m² mit 2 Terrassen bieten Platz für bis zu 6 Personen. Sauna, 1 PKW-Stellplatz, Hunde herzlich willkommen

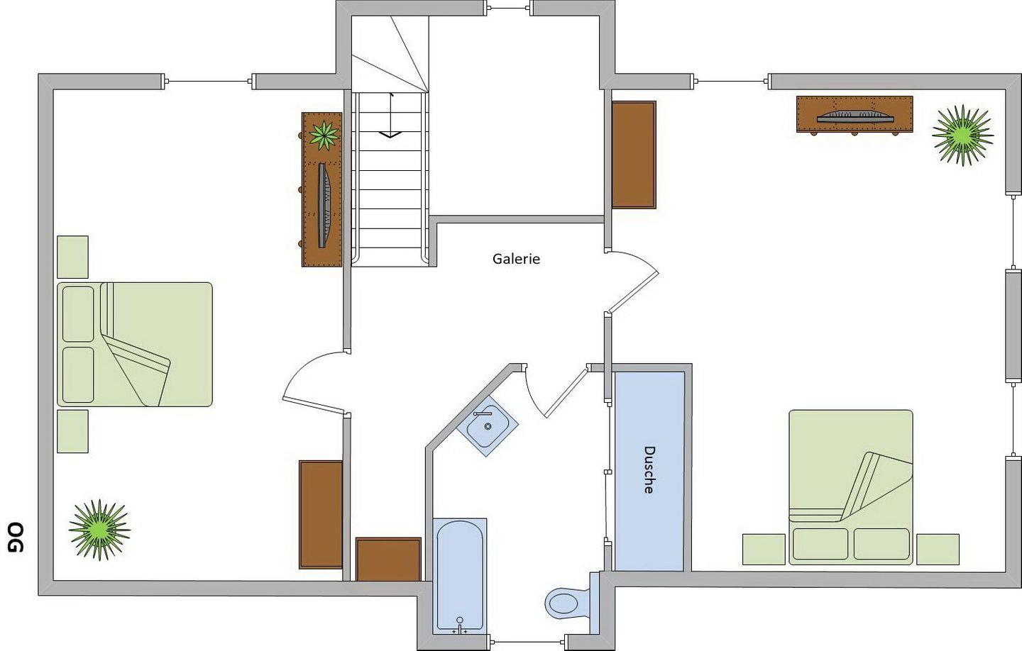
Absoluter Weitblick in traumhafter Lage! Die reetgedeckte Doppelhaushälfte "Marschblick" unweit des historischen Dorfkerns hält, was sie verspricht. Genießen Sie Ihren Urlaub umgeben von Wiesen und Feldern in vollen Zügen. Die stilvolle und hochwertige Einrichtung des Hauses, sowie das wunderschön angelegte Grundstück mit seinem herrlichen Garten lassen dirkt bei Ankunft ein Gefühl der Erholung entstehen. Die Wohnfläche von ca. 115 m² erstreckt sich über 2 Etagen und teilt sich wie folgt auf: Erdgeschoss: Eingangsbereich, Wohnraum mit offener Küche, Essbereich und Zugang zu den beiden Terrassen, ein Schlazimmer mit Doppelbett (160 x 200 cm - Einzelmatratzen) und TV, ein Duschbad mit integrierter Sauna, ein Hauswirtschaftsraum Auf den Terrassen befinden sich während der Saison Gartenmöbel, die zum Verweilen einladen und Ihnen obendrein einen herrlichen Platz zum Essen im Freien bieten. Obergeschoss: eine Galerie, 2 Schlafzimmer mit Doppelbett (jeweils 180 x 200 cm - Einzelmatratzen) und TV, ein Wannenbad mit separater Dusche Das gesamte Haus verfügt über eine Fußbodenheizung, die ganzjährig ein angenehmes Raumklima schafft. 1 PKW-Stellplatz steht Ihnen zur Verfügung. Gerne dürfen Sie Ihren Hund mitbringen.

Raumaufteilung

  • Schlafzimmer, 2 Personen
    • Kleiderschrank
    • Kleines Doppelbett (Offenes Fußteil)
  • Schlafzimmer, 2 Personen
    • Kleiderschrank
    • Doppelbett (Offenes Fußteil)
  • Schlafzimmer, 2 Personen
    • Kleiderschrank
    • Doppelbett (Offenes Fußteil)

Populære faciliteter

  • Soverum 3
  • Badeværelser 2
  • Boligareal 116 m²
  • Husdyr 1
  • Tilbyder miniferie Ja
  • Sauna Ja
  • Internet Ja
  • Opvaskemaskine Ja
  • Ikkeryger Ja

Alle faciliteter

  • Badeværelse

    • Badekar
    • Bruseantal
      2
    • Bruser
    • Hårtørrer
    • Tørretumbler
  • Grundlæggende

    • Børn velkomne
    • Ikke-ryger
    • Kvadratmeter
      116 m²
    • Værelser
      4
  • Hus

    • Dobbeltsenge
      2
    • Fuld længde spejl
    • Garderobe
    • Internet
    • Komfur
    • Sauna
    • Senge
      6
    • Sikkerheds boks
    • Strygejern
    • TV antal
      4
    • Underfloor heating
    • Vaskemaskine
    • WiFi
  • Køkken

    • Elkedel
    • Køkken
    • Køleskab
    • Mikroovn
    • Opvaskemaskine
    • Ovn
  • Udendørs

    • Antal parkeringspladser
      1
    • Have
    • Privat P-plads
    • Terrasse

Miniferie

Der er begrænset mulighed for miniferie hele året, typisk uden for højsæsonen.

Prices and calendar

Kalender

Ankomst
Næste
  • marts 2026
    mationtofr
    91
    102345678
    119101112131415
    1216171819202122
    1323242526272829
    143031
  • april 2026
    mationtofr
    1412345
    156789101112
    1613141516171819
    1720212223242526
    1827282930
    19
   Se om emnet er ledigt på den valgte dato
Ledig
Optaget
   Ankomst mulig
Varighed
Personer

Pris

Periode
Ankomst
Afrejse
Varighed
1 uge
Personer
Ingen personer er valgt

Bemærk

Ankomst er ikke valgt.
Der er ikke valgt personer.
Aftale- og lejebetingelser

Vores gæsteanmeldelser Eksterne anmeldelser

Ingen gæsteanmeldelser
4,7
3 eksterne anmeldelser
4,8
december 2025
5,0
oktober 2025
Generel:
Vielen Dank für schöne, erholsame Ferientage bei Ihnen. Wir haben uns sehr wohl gefühlt in der Unterkunft. Alles super, super!
4,3
juli 2025

Inspiration