Ferielejlighed - 5 personer - Fasanenweg - 25826 - St. Peter-Ording

Beskrivelse

Beskrivelsen foreligger desværre ikke på Dansk. Se teksten på Tysk nedenfor, eller se den maskinoversatte tekst på Dansk.
Ferienwohnung Fasanenweg, Wohnung 1

Privathaus mit 3 Ferienwohnungen im Ortsteil Dorf gelegen. Ein Carport für Ihre Fahrräder ist vorhanden. Nichtraucherhaus. Kleinstädtischer Charme im Dorf durchzieht das harmonische Miteinander von historischer Architektur und moderner Geschäftigkeit. Die Kirche aus dem 13. Jahrhundert, die St. Peter-Ording den Namen gab. Die einstige Postkutschenstation, die die älteste Gaststätte am Ort beherbergt. Das alte Friesenhaus, das zum Eiderstedter Heimatmuseum wurde. Viele andere betagte Bauten vertragen sich gut mit den kleinen Geschäften, den bunten Straßencafés und einladenden Restaurant's. Auch die Natur lässt freundlich bitten: Deich, Salzwiesen, Vorland und der Strand eröffnen wundervolle Spazierwege. Sie erreichen das Dorf- und Badzentrum in jeweils ca. 10 Gehminuten. In der Nähe ist ein kleines Wäldchen mit Kinderspielplatz, eine Tennisanlage mit Außenplätzen, ein Reitstall, der Marktplatz - auf dem am Mittwoch immer der Wochenmarkt statt findet und natürlich das Dorf - in den Sommermonaten jeweils Donnerstags das Dorffest!

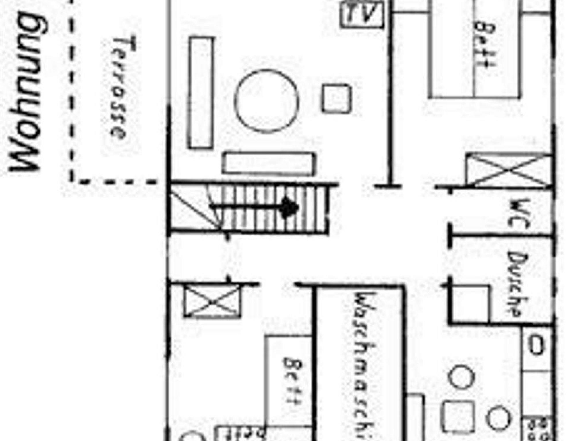
Die Ferienwohnung (ca. 68 qm) hat eine Terrrasse zur Ostseite, Elternschlafzimmer mit Doppelbett und ist eine Nichtraucherwohnung.
Kinderzimmer mit Etagenbett und Einzelbett, Wohnzimmer mit Farb-TV (Flachbildschirm) und Radio.
Modern eingerichtete Küche mit Essecke, Geschirrspüler, Mikrowelle, Ceranfeld und Backofen.
Duschbad und sep. Toilette.
Internet über Wlan kostenlos.

Hinter dem Haus befindet sich ein Garten, der gerne von den Kindern zum Spielen benutzt werden kann.
Waschmaschine, Kinderbett und Hochstuhl sind vorhanden.

Bettwäsche und Handtücher sind als Zusatzleistung auf Wunsch zu 20,-€ pro Person buchbar.

Populære faciliteter

  • Soverum 2
  • Badeværelser 1
  • Boligareal 68 m²
  • Husdyr 1
  • Tilbyder miniferie Nej
  • Internet Ja
  • Parabol/kabel TV Ja
  • Vaskemaskine Ja
  • Opvaskemaskine Ja
  • Ikkeryger Ja

Alle faciliteter

  • Børnefaciliteter

    • Familievenlig
  • Grundlæggende faciliteter

    • Størrelse
      68 m²
  • Indkvartering Faciliteter

    • Cykelvenlig
    • Ikke-ryger hus
    • Internet i det offentlige område
    • Vandrer venlig
  • Omgivende faciliteter

    • Cykelrum
    • Have til brug
    • Parkeringsplads
  • Servicefaciliteter

    • Bad / WC
    • Bad/toilet
    • Dobbeltseng
    • Dyr velkomne
    • Flere soveværelser
    • Husdyr tilladt eller efter anmodning
    • Højstol
    • Ikke-rygere
    • Internet - WiFi
    • Kabel/Sat
    • Kaffemaskine
    • Komfur
    • Køjeseng
    • Køleskab
    • Mikroovn
    • Mulighed for fryser
    • Opvaskemaskine
    • Ovn
    • På jorden
    • Radio
    • Rejseseng/krybbe
    • Separat køkken
    • Siddegruppe
    • Stue
    • Toaster
    • TV
    • TV - fladskærm
    • Vandvarmer
    • Vaskemaskine
    • WC-toilet

Miniferie

Prices and calendar

Kalender

Ankomst
Forrige Næste
  • maj 2026
    mationtofr
    18123
    1945678910
    2011121314151617
    2118192021222324
    2225262728293031
    23
  • juni 2026
    mationtofr
    231234567
    24891011121314
    2515161718192021
    2622232425262728
    272930
    28
   Se om emnet er ledigt på den valgte dato
Ledig
Optaget
   Ankomst mulig
Varighed

Pris

Periode
Ankomst
Afrejse
Varighed
1 uge
Personer
Op til 5 personer
heraf 2 børn (0-17 år)

Bemærk

Ankomst er ikke valgt.
Aftale- og lejebetingelser

Vores gæsteanmeldelser Eksterne anmeldelser

Ingen gæsteanmeldelser
4,4
Rengøring:
4,8
Beliggenhed:
3,6
Generelt:
4,6
Værelse:
4,6
Service på stedet:
4,4
Værdi for pengene:
4,2
3 eksterne anmeldelser
4,0
april 2016
Rengøring:
4
Beliggenhed:
4
Generelt:
4
Værelse:
4
Service på stedet:
4
Værdi for pengene:
4
Generel:
Der gesamte Aufenthalt war eine erholsame Woche, die wir jederzeit wiederholen würden.
4,0
september 2015
Rengøring:
5
Beliggenhed:
2
Generelt:
4
Værelse:
5
Service på stedet:
5
Værdi for pengene:
3
Generel:
Lage der Wohnung war etwas weit von St. Peter-Ording, Bad. Dass die Entfernung zum Nordstrand bis zum Meer inkl. der langen Brücke 5 km sind hätte genauer angegeben werden, mit Kleinkind -trotz Buggy- zu weit. WLAN musst relativ teuer bezahlt werden (50ct/Stunde) und trotzdem war es nicht möglich damit zu arbeiten wegen der Langsamkeit. Die Benutzung der Waschmaschine hätte bei diesem Preis für uns zum Service gehört, statt 3.00€ ohne Pulver zu verlangen. Insgesamt eine schöne, saubere Wohnung mit gepflegtem Garten in ruhiger Lage. Anbindung an Busse war gegeben. Aktuelles Infomaterial wie Busfahrplan, Monatsveranstaltungen etc. hätte man am 1. Tag der Ankunft sichtbar bereitliegen können. Wünschenswert wäre ein Kurbeitrag für Hunde, sodass Busfahrten nicht extra mit 1.10€ bezahlt werden müssen.
4,2
maj 2015
Rengøring:
5
Beliggenhed:
4
Generelt:
5
Værelse:
4
Service på stedet:
4
Værdi for pengene:
4
Generel:
Gute zentrale Lage, Wohnung gut geheizt, sehr sauber.

Inspiration