Sommerhus - 6 personer - Norderdeich - 25826 - St Peter-Ording

Beskrivelse

Beskrivelsen foreligger desværre ikke på Dansk. Se teksten på Tysk nedenfor, eller se den maskinoversatte tekst på Dansk.
Urlaub im Ferienhaus "Diekkieker"- direkt am Ordinger Deich gelegen mit Sauna

Liegt strandnah direkt am Deich in St. Peter Ording. Die 120 m² mit Terrasse bieten Platz für bis zu 6 Personen. Sauna, 3 PKW-Stellplätze, Hunde herzlich willkommen

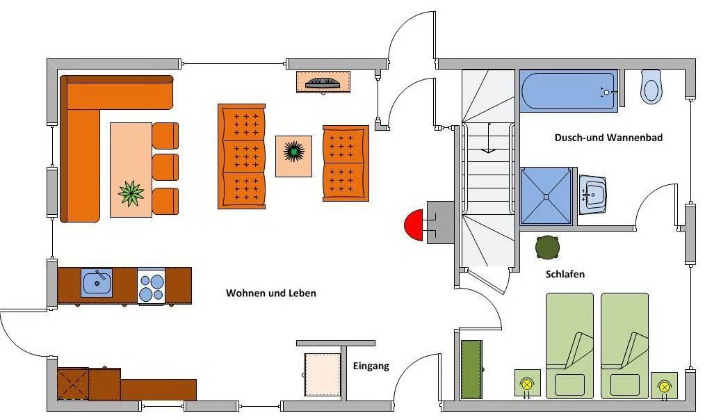
Noch näher und sie bekommen nasse Füße! Das Haus "Diekkieker" liegt direkt hinter dem Ordinger Deich in unmittelbarer Nähe zum Strand mit seinen typischen Pfahlbauten. Sobald Sie die Tür zu diesem charmanten Domizil betreten haben, kann Ihr Urlaub beginnen. Ein kleines, saisonales Kaufhaus liegt etwa 90 m entfernt, hier bekommen Sie frische Backwaren, Lebensmittel und Strandutensilien. Das Haus selbst verwöhnt Sie mit einer geschmackvollen Einrichtung, die Gemütlichkeit und Wohlbehagen ausstrahlt. Die Wohnfläche von ca. 120 m² verteilt sich auf 2 Etagen wie folgt: Erdgeschoss: Eingangsbereich, Wohnraum mit offener Küche, Essbereich, Kamin und Zugang zur Terrasse, ein Schlafzimmer mit Doppelbett (180 x 200 cm - Einzelmatratzen) und angeschlossenem Wannenbad / WC mit separater Dusche Der Wohn- und Essbereich wird durch einen erhöhten Holzfußboden besonders hervorgehoben, der wunderschöne Kachelofen rundet diesen Bereich optisch ab. Auf der Terrasse finden Sie Gartenmöbeln vor. Obergeschoss: kleine Leseecke mit Blick auf den Deich, ein Schlafzimmer mit Doppelbett (180 x 200 cm), ein Schlafzimmer mit 2 Einzelbetten (je 100 x 200 cm - können zum Doppelbett zusammengestellt werden), ein Duschbad / WC mit angeschlossener Sauna Die Fenster der Schlafzimmer sind mit Insektenschutzgittern versehen. Im Außenbereich gibt es einen abschließbaren Gartenschuppen für Fahrräder. 3 PKW-Stellplätze stehen Ihnen zur Verfügung. Gerne dürfen Sie Ihren Hund mitbringen.

Raumaufteilung

  • Schlafzimmer, 2 Personen
    • Privates Badezimmer, Kleiderschrank
    • Doppelbett
  • Schlafzimmer, 2 Personen
    • Kleiderschrank
    • 2 x Einzelbett
  • Schlafzimmer, 2 Personen
    • Kleiderschrank
    • Doppelbett

Populære faciliteter

  • Soverum 3
  • Badeværelser 2
  • Boligareal 120 m²
  • Husdyr 1
  • Tilbyder miniferie Ja
  • Sauna Ja
  • Internet Ja
  • Opvaskemaskine Ja
  • Ikkeryger Ja

Alle faciliteter

  • Badeværelse

    • Badekar
    • Bruser
    • Hårtørrer
    • Tørretumbler
  • Grundlæggende

    • Børn velkomne
    • Ikke-ryger
    • Kvadratmeter
      120 m²
    • Værelser
      4
  • Hus

    • CD
    • Dobbeltsenge
      2
    • DVD
    • Enkeltsenge
      2
    • Fireside
    • Garderobe
    • Internet
    • Luksus
    • Sauna
    • Senge
      6
    • Sikkerheds boks
    • Strygejern
    • TV
    • Vaskemaskine
    • WiFi
  • Køkken

    • Fryser
    • Køkken
    • Køleskab
    • Mikroovn
    • Opvaskemaskine
    • Ovn
    • Toaster
  • Udendørs

    • Have
    • Privat P-plads
    • Terrasse

Miniferie

Der er mulighed for miniferie hele året.

Prices and calendar

Kalender

Ankomst
Forrige Næste
  • juli 2026
    mationtofr
    2712345
    286789101112
    2913141516171819
    3020212223242526
    312728293031
    32
  • august 2026
    mationtofr
    3112
    323456789
    3310111213141516
    3417181920212223
    3524252627282930
    3631
   Se om emnet er ledigt på den valgte dato
Ledig
Optaget
   Ankomst mulig
Varighed
Personer

Pris

Periode
Ankomst
Afrejse
Varighed
1 uge
Personer
Ingen personer er valgt

Bemærk

Ankomst er ikke valgt.
Der er ikke valgt personer.
Aftale- og lejebetingelser

Vores gæsteanmeldelser Eksterne anmeldelser

Ingen gæsteanmeldelser
5,0
5 eksterne anmeldelser
5,0
februar 2026
Generel:
Wunderbares Haus, alles vorhanden, was man braucht. Wit kommen sehr gerne wieder.
5,0
februar 2026
4,8
januar 2026
5,0
november 2025
Generel:
Ein Haus mit hochwertiger Ausstattung in bester Lage. Besser geht es nicht.
5,0
juli 2025
Generel:
Alles war hervorragend. Die Strandnähe ist wirklich super. Im Haus befindet sich eine sehr gute Ausstattung, alles was man braucht ist vorhanden. Ebenfalls sehr gut ist die Kommunikation mit den Mitarbeitern von Koch & Co.

Inspiration