Alternative emner
I nærheden (1.449)Sommerhus - 6 personer - Neuer Weg - 18586 - Sellin (Ostseebad)
-
Sellin (Ostseebad)
-
6 personer
-
Boligareal103 m²
-
Emne nr.:530-735735
Beskrivelse
Beskrivelsen foreligger desværre ikke på Dansk. Se teksten på Tysk nedenfor, eller se den maskinoversatte tekst på Dansk.
Haus Strandjuwel Sellin | Haus 02 | Sonnenträumer
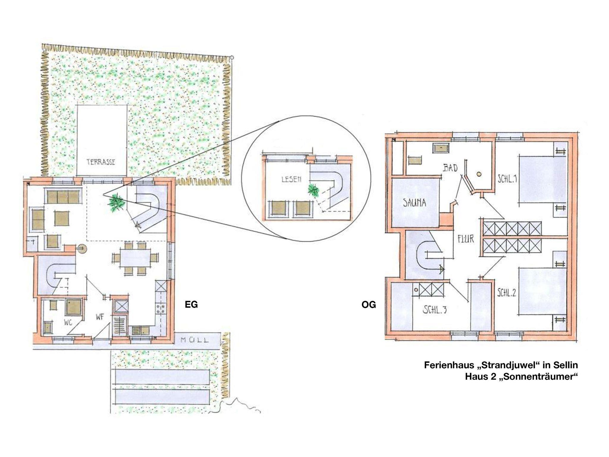
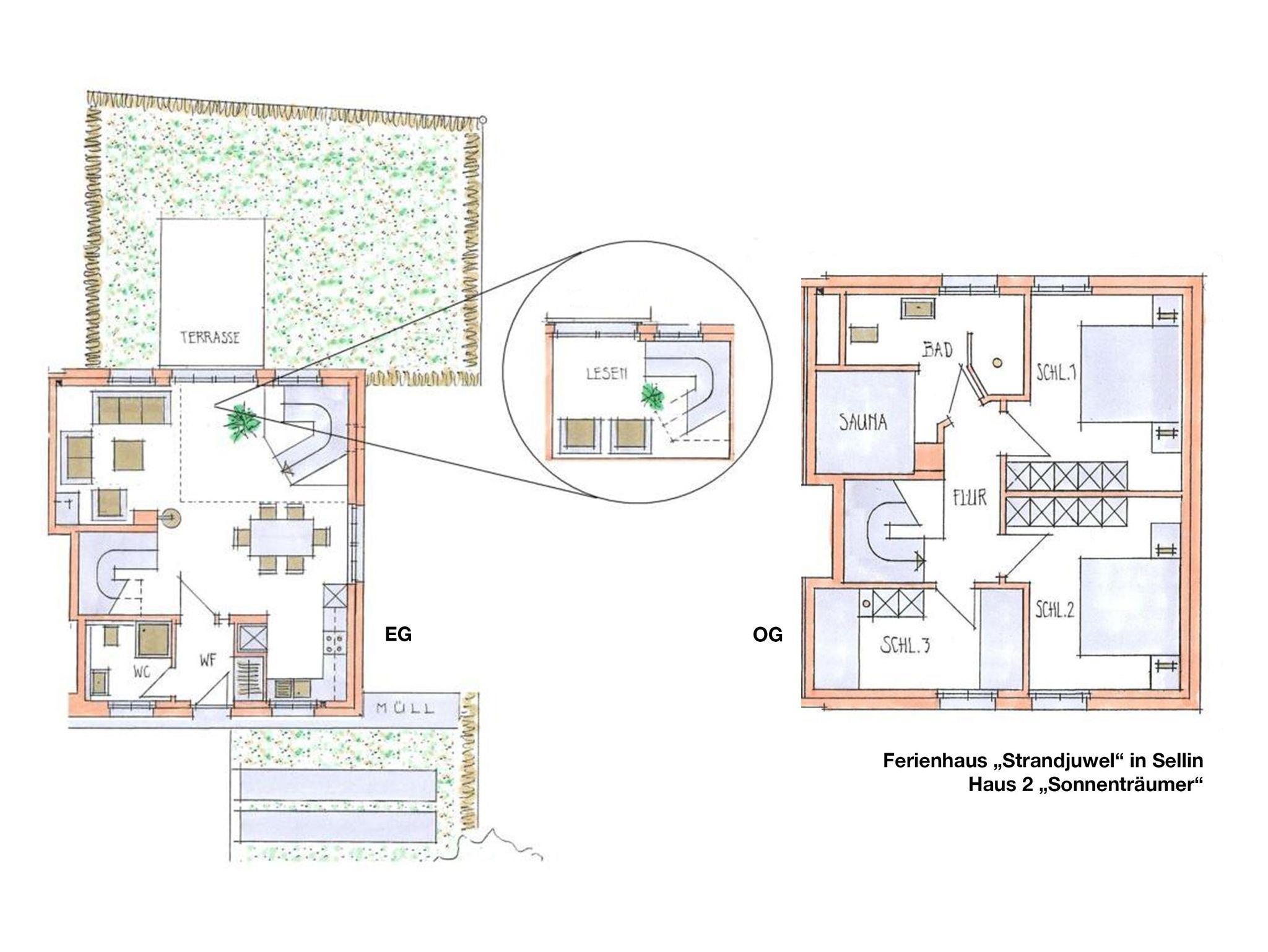
Ihr Ostsee-Urlaub in Sellin kann beginnen! Mit dem wunderschönen Namen „Sonnenträumer“ und gut 103 qm Wohnfläche empfängt Sie dieses ruhig und strandnah gelegene Ferienhaus, das auf drei Etagen Platz für bis zu 6 Personen bietet.
Über den Flur mit Garderobe, Spiegel, Schuhablage, [&] Co. betreten Sie den lichtdurchfluteten Wohn- und Essbereich, der mit seiner modernen und hochwertigen Ausstattung sofort zum Wohlfühlen einlädt. Die gemütliche Ledergarnitur wartet förmlich darauf, dass Sie hier vor dem großen Flachbild-TV Platz nehmen, für den sogar eine PlayStation 4 vorhanden ist. Natürlich gibt es zur medialen Unterhaltung auch ein Radio mit CD-Player und kostenfreies W-LAN.
Die hochwertige Nobilia-Einbauküche verfügt über ein Ceran-Kochfeld, einen Backofen auf Augenhöhe, einen Kühl-/Gefrierschrank, einen Geschirrspüler sowie eine Kaffeemaschine, eine Senseo-Padmaschine, einen Toaster, Mikrowelle, Wasserkocher und all die anderen Dinge, die man braucht, um sich selbst zu „bekochen“.
Am großen Esstisch aus wertvollem Pinienholz ist Platz für die ganze Familie. Wenn das Wetter es zulässt, kann man natürlich auch wunderbar draußen an der frischen Ostseeluft speisen. Dazu müssen Sie nur ein paar Treppenstufen abwärts gehen. Sie passieren den gemütlichen Leseraum mit zwei Ledersesseln plus Hocker ? ein kuscheliger Ort für die spannende Lieblingslektüre! Noch ein Schritt weiter und Sie stehen auf der Terrasse, die dem Namen „Sonnenträumer“ alle Ehre macht. Schließlich können Sie hier von mittags bis zum Abend die Sonne genießen. Komfortable Gartenstühle inkl. Auflagen, ein großer Tisch, ein Sonnenschirm und ein Gartengrill stehen Ihnen zur Verfügung.
Auch ein kleines Badezimmer ist im Erdgeschoss vorhanden. Es verfügt über eine Dusche mit Echtglaskabine, ein WC, einen beleuchteten Waschtisch inkl. Fön sowie einen Handtuchhalter und genügend Ablageflächen.
Das Haupt-Badezimmer und die Sauna befinden sich im Obergeschoss. Genießen Sie den Luxus ganz privaten Saunavergnügens, wann immer Sie möchten! Im Bad stehen Ihnen eine bodenebene XXL-Dusche, ein beleuchteter Waschtisch inkl. Fön sowie ein Handtuchhalter und genügend Ablageflächen und Haken für Ihre Utensilien zur Verfügung.
Im Obergeschoss finden Sie auch Ihre drei Schlafzimmer. Zwei davon sind mit komfortablen Doppelbetten (1,80 x 2,00 m), Kleiderschrank und zusätzlichem TV ausgestattet, das dritte Schlafzimmer verfügt über zwei Einzelbetten (0,90 x 2,00 m). Fliegengitter an allen Fenstern im OG sorgen saisonal dafür, dass lästige Plagegeister draußen bleiben und Sie erholt und ausgeruht in den nächsten Urlaubstag starten können.
Gut zu wissen:
• Die Fußbodenheizung und eine kontrollierte Wohnraumlüftung sorgen in dem modernen Niedrigenergiehaus für ein angenehmes Raumgefühl. Alle Fenster sind mit elektrischen Rolläden versehen.
• Ein Kinderreisebett, ein Hochstuhl und ein Schranktresor sind vorhanden.
• Es steht eine gemeinschaftliche Waschmaschine und ein gemeinschaftlicher Trockner zur Verfügung.
• Ein kostenfreier PKW-Stellplatz sowie ein Fahrradständer stehen direkt vor dem Haus zur Verfügung.
• 1 Haustier ist auf Anmeldung und gegen Gebühr willkommen.
Der „Sonnenträumer“ ist mit bis zu 6 Personen buchbar. Mit Rücksicht auf die nachfolgenden Gäste ist das Rauchen innerhalb der Räumlichkeiten nicht gestattet.
Über den Flur mit Garderobe, Spiegel, Schuhablage, [&] Co. betreten Sie den lichtdurchfluteten Wohn- und Essbereich, der mit seiner modernen und hochwertigen Ausstattung sofort zum Wohlfühlen einlädt. Die gemütliche Ledergarnitur wartet förmlich darauf, dass Sie hier vor dem großen Flachbild-TV Platz nehmen, für den sogar eine PlayStation 4 vorhanden ist. Natürlich gibt es zur medialen Unterhaltung auch ein Radio mit CD-Player und kostenfreies W-LAN.
Die hochwertige Nobilia-Einbauküche verfügt über ein Ceran-Kochfeld, einen Backofen auf Augenhöhe, einen Kühl-/Gefrierschrank, einen Geschirrspüler sowie eine Kaffeemaschine, eine Senseo-Padmaschine, einen Toaster, Mikrowelle, Wasserkocher und all die anderen Dinge, die man braucht, um sich selbst zu „bekochen“.
Am großen Esstisch aus wertvollem Pinienholz ist Platz für die ganze Familie. Wenn das Wetter es zulässt, kann man natürlich auch wunderbar draußen an der frischen Ostseeluft speisen. Dazu müssen Sie nur ein paar Treppenstufen abwärts gehen. Sie passieren den gemütlichen Leseraum mit zwei Ledersesseln plus Hocker ? ein kuscheliger Ort für die spannende Lieblingslektüre! Noch ein Schritt weiter und Sie stehen auf der Terrasse, die dem Namen „Sonnenträumer“ alle Ehre macht. Schließlich können Sie hier von mittags bis zum Abend die Sonne genießen. Komfortable Gartenstühle inkl. Auflagen, ein großer Tisch, ein Sonnenschirm und ein Gartengrill stehen Ihnen zur Verfügung.
Auch ein kleines Badezimmer ist im Erdgeschoss vorhanden. Es verfügt über eine Dusche mit Echtglaskabine, ein WC, einen beleuchteten Waschtisch inkl. Fön sowie einen Handtuchhalter und genügend Ablageflächen.
Das Haupt-Badezimmer und die Sauna befinden sich im Obergeschoss. Genießen Sie den Luxus ganz privaten Saunavergnügens, wann immer Sie möchten! Im Bad stehen Ihnen eine bodenebene XXL-Dusche, ein beleuchteter Waschtisch inkl. Fön sowie ein Handtuchhalter und genügend Ablageflächen und Haken für Ihre Utensilien zur Verfügung.
Im Obergeschoss finden Sie auch Ihre drei Schlafzimmer. Zwei davon sind mit komfortablen Doppelbetten (1,80 x 2,00 m), Kleiderschrank und zusätzlichem TV ausgestattet, das dritte Schlafzimmer verfügt über zwei Einzelbetten (0,90 x 2,00 m). Fliegengitter an allen Fenstern im OG sorgen saisonal dafür, dass lästige Plagegeister draußen bleiben und Sie erholt und ausgeruht in den nächsten Urlaubstag starten können.
Gut zu wissen:
• Die Fußbodenheizung und eine kontrollierte Wohnraumlüftung sorgen in dem modernen Niedrigenergiehaus für ein angenehmes Raumgefühl. Alle Fenster sind mit elektrischen Rolläden versehen.
• Ein Kinderreisebett, ein Hochstuhl und ein Schranktresor sind vorhanden.
• Es steht eine gemeinschaftliche Waschmaschine und ein gemeinschaftlicher Trockner zur Verfügung.
• Ein kostenfreier PKW-Stellplatz sowie ein Fahrradständer stehen direkt vor dem Haus zur Verfügung.
• 1 Haustier ist auf Anmeldung und gegen Gebühr willkommen.
Der „Sonnenträumer“ ist mit bis zu 6 Personen buchbar. Mit Rücksicht auf die nachfolgenden Gäste ist das Rauchen innerhalb der Räumlichkeiten nicht gestattet.
Ihr Ostsee-Urlaub in Sellin kann beginnen! Mit dem wunderschönen Namen Sonnenträumer und gut 103 qm Wohnfläche empfängt Sie dieses ruhig und strandnah gelegene Ferienhaus, das auf drei Etagen Platz für bis zu 6 Personen bietet.
Über den Flur mit Garderobe, Spiegel, Schuhablage, [&] Co. betreten Sie den lichtdurchfluteten Wohn- und Essbereich, der mit seiner modernen und hochwertigen Ausstattung sofort zum Wohlfühlen einlädt. Die gemütliche Ledergarnitur wartet förmlich darauf, dass Sie hier vor dem großen Flachbild-TV Platz nehmen, für den sogar eine PlayStation 4 vorhanden ist. Natürlich gibt es zur medialen Unterhaltung auch ein Radio mit CD-Player und kostenfreies W-LAN.
Die hochwertige Nobilia-Einbauküche verfügt über ein Ceran-Kochfeld, einen Backofen auf Augenhöhe, einen Kühl-/Gefrierschrank, einen Geschirrspüler sowie eine Kaffeemaschine, eine Senseo-Padmaschine, einen Toaster, Mikrowelle, Wasserkocher und all die anderen Dinge, die man braucht, um sich selbst zu bekochen.
Am großen Esstisch aus wertvollem Pinienholz ist Platz für die ganze Familie. Wenn das Wetter es zulässt, kann man natürlich auch wunderbar draußen an der frischen Ostseeluft speisen. Dazu müssen Sie nur ein paar Treppenstufen abwärts gehen. Sie passieren den gemütlichen Leseraum mit zwei Ledersesseln plus Hocker ein kuscheliger Ort für die spannende Lieblingslektüre! Noch ein Schritt weiter und Sie stehen auf der Terrasse, die dem Namen Sonnenträumer alle Ehre macht. Schließlich können Sie hier von mittags bis zum Abend die Sonne genießen. Komfortable Gartenstühle inkl. Auflagen, ein großer Tisch, ein Sonnenschirm und ein Gartengrill stehen Ihnen zur Verfügung.
Auch ein kleines Badezimmer ist im Erdgeschoss vorhanden. Es verfügt über eine Dusche mit Echtglaskabine, ein WC, einen beleuchteten Waschtisch inkl. Fön sowie einen Handtuchhalter und genügend Ablageflächen.
Das Haupt-Badezimmer und die Sauna befinden sich im Obergeschoss. Genießen Sie den Luxus ganz privaten Saunavergnügens, wann immer Sie möchten! Im Bad stehen Ihnen eine bodenebene XXL-Dusche, ein beleuchteter Waschtisch inkl. Fön sowie ein Handtuchhalter und genügend Ablageflächen und Haken für Ihre Utensilien zur Verfügung.
Im Obergeschoss finden Sie auch Ihre drei Schlafzimmer. Zwei davon sind mit komfortablen Doppelbetten (1,80 x 2,00 m), Kleiderschrank und zusätzlichem TV ausgestattet, das dritte Schlafzimmer verfügt über zwei Einzelbetten (0,90 x 2,00 m). Fliegengitter an allen Fenstern im OG sorgen saisonal dafür, dass lästige Plagegeister draußen bleiben und Sie erholt und ausgeruht in den nächsten Urlaubstag starten können.
Gut zu wissen:
• Die Fußbodenheizung und eine kontrollierte Wohnraumlüftung sorgen in dem modernen Niedrigenergiehaus für ein angenehmes Raumgefühl. Alle Fenster sind mit elektrischen Rolläden versehen.
• Ein Kinderreisebett, ein Hochstuhl und ein Schranktresor sind vorhanden.
• Es steht eine gemeinschaftliche Waschmaschine und ein gemeinschaftlicher Trockner zur Verfügung.
• Ein kostenfreier PKW-Stellplatz sowie ein Fahrradständer stehen direkt vor dem Haus zur Verfügung.
• 1 Haustier ist auf Anmeldung und gegen Gebühr willkommen.
Der Sonnenträumer ist mit bis zu 6 Personen buchbar. Mit Rücksicht auf die nachfolgenden Gäste ist das Rauchen innerhalb der Räumlichkeiten nicht gestattet.
Über den Flur mit Garderobe, Spiegel, Schuhablage, [&] Co. betreten Sie den lichtdurchfluteten Wohn- und Essbereich, der mit seiner modernen und hochwertigen Ausstattung sofort zum Wohlfühlen einlädt. Die gemütliche Ledergarnitur wartet förmlich darauf, dass Sie hier vor dem großen Flachbild-TV Platz nehmen, für den sogar eine PlayStation 4 vorhanden ist. Natürlich gibt es zur medialen Unterhaltung auch ein Radio mit CD-Player und kostenfreies W-LAN.
Die hochwertige Nobilia-Einbauküche verfügt über ein Ceran-Kochfeld, einen Backofen auf Augenhöhe, einen Kühl-/Gefrierschrank, einen Geschirrspüler sowie eine Kaffeemaschine, eine Senseo-Padmaschine, einen Toaster, Mikrowelle, Wasserkocher und all die anderen Dinge, die man braucht, um sich selbst zu bekochen.
Am großen Esstisch aus wertvollem Pinienholz ist Platz für die ganze Familie. Wenn das Wetter es zulässt, kann man natürlich auch wunderbar draußen an der frischen Ostseeluft speisen. Dazu müssen Sie nur ein paar Treppenstufen abwärts gehen. Sie passieren den gemütlichen Leseraum mit zwei Ledersesseln plus Hocker ein kuscheliger Ort für die spannende Lieblingslektüre! Noch ein Schritt weiter und Sie stehen auf der Terrasse, die dem Namen Sonnenträumer alle Ehre macht. Schließlich können Sie hier von mittags bis zum Abend die Sonne genießen. Komfortable Gartenstühle inkl. Auflagen, ein großer Tisch, ein Sonnenschirm und ein Gartengrill stehen Ihnen zur Verfügung.
Auch ein kleines Badezimmer ist im Erdgeschoss vorhanden. Es verfügt über eine Dusche mit Echtglaskabine, ein WC, einen beleuchteten Waschtisch inkl. Fön sowie einen Handtuchhalter und genügend Ablageflächen.
Das Haupt-Badezimmer und die Sauna befinden sich im Obergeschoss. Genießen Sie den Luxus ganz privaten Saunavergnügens, wann immer Sie möchten! Im Bad stehen Ihnen eine bodenebene XXL-Dusche, ein beleuchteter Waschtisch inkl. Fön sowie ein Handtuchhalter und genügend Ablageflächen und Haken für Ihre Utensilien zur Verfügung.
Im Obergeschoss finden Sie auch Ihre drei Schlafzimmer. Zwei davon sind mit komfortablen Doppelbetten (1,80 x 2,00 m), Kleiderschrank und zusätzlichem TV ausgestattet, das dritte Schlafzimmer verfügt über zwei Einzelbetten (0,90 x 2,00 m). Fliegengitter an allen Fenstern im OG sorgen saisonal dafür, dass lästige Plagegeister draußen bleiben und Sie erholt und ausgeruht in den nächsten Urlaubstag starten können.
Gut zu wissen:
• Die Fußbodenheizung und eine kontrollierte Wohnraumlüftung sorgen in dem modernen Niedrigenergiehaus für ein angenehmes Raumgefühl. Alle Fenster sind mit elektrischen Rolläden versehen.
• Ein Kinderreisebett, ein Hochstuhl und ein Schranktresor sind vorhanden.
• Es steht eine gemeinschaftliche Waschmaschine und ein gemeinschaftlicher Trockner zur Verfügung.
• Ein kostenfreier PKW-Stellplatz sowie ein Fahrradständer stehen direkt vor dem Haus zur Verfügung.
• 1 Haustier ist auf Anmeldung und gegen Gebühr willkommen.
Der Sonnenträumer ist mit bis zu 6 Personen buchbar. Mit Rücksicht auf die nachfolgenden Gäste ist das Rauchen innerhalb der Räumlichkeiten nicht gestattet.
Populære faciliteter
- Soverum 3
- Badeværelser 2
- Boligareal 103 m²
- Husdyr 1
- Tilbyder miniferie Ja
- Afstand vand 600 m
- Afstand indkøb 400 m
- Sauna Ja
- Internet Ja
- Vaskemaskine Ja
- Opvaskemaskine Ja
- Ikkeryger Ja
Alle faciliteter
-
Afstande
-
Til bageren400 m
-
Til centrum300 m
-
Til restauranten200 m
-
Til stranden600 m
-
Til supermarkedet400 m
-
Til svømme-/sjovpoolen500 m
-
-
Aktivitetsfaciliteter
-
Cykeludlejning
-
Cykelvenlig
-
Minigolf
-
-
Børnefaciliteter
-
Familievenlig
-
-
Grundlæggende faciliteter
-
Størrelse103 m²
-
-
Indkvartering Faciliteter
-
BBQ
-
Cykelvenlig
-
Ikke-ryger hus
-
Internet i det offentlige område
-
Vandrer venlig
-
-
Omgivende faciliteter
-
Have til brug
-
Parkeringsplads
-
-
Servicefaciliteter
-
Dobbeltseng
-
Dyr velkomne
-
Ekstra badeværelse
-
Enkeltseng
-
Flere soveværelser
-
Husdyr tilladt eller efter anmodning
-
Højstol
-
Hårtørrer
-
Ikke-rygere
-
Insektsmiddel/gaze
-
Internet - WiFi
-
Kaffemaskine
-
Køkken (åbent)
-
Køleskab
-
Mikroovn
-
Mulighed for fryser
-
Opvarmet
-
Opvaskemaskine
-
Ovn
-
Rejseseng/krybbe
-
Sauna
-
Sikkerheds boks
-
Terrasse
-
Toaster
-
TV - fladskærm
-
Vandvarmer
-
Vaskemaskine
-
Miniferie
Der er begrænset mulighed for miniferie hele året, typisk uden for højsæsonen.
Prices and calendar
Pris
Periode
- Ankomst
- Afrejse
- Varighed
- 1 uge
Personer
Ingen personer er valgt
Bemærk
Ankomst er ikke valgt.
Der er ikke valgt personer.