Sommerhus - 4 personer - Böhler Landstraße - 25826 - Sankt Peter-Ording

Beskrivelse

Beskrivelsen foreligger desværre ikke på Dansk. Se teksten på Tysk nedenfor, eller se den maskinoversatte tekst på Dansk.
Charmantes Reihenendhaus mit ca. 65 m², 3 Zimmern und offenem Wohn-/Küchenbereich. Moderne Küche mit Geschirrspüler, Backofen, Cerankochfeld sowie Kaffeemaschine, Wasserkocher und Toaster. Badezimmer im Erdgeschoss mit Waschmaschine. Zwei Schlafzimmer im Obergeschoss, jeweils mit Kleiderschrank, Verdunklung und TV. Abgeschlossenes Grundstück mit Gartenmöbeln, Parkplatz und Gartenhaus vorhanden. WLAN, Nichtraucher, Hunde auf Anfrage. Ruhige Lage, 500 m zum Böhler Leuchtturm, 1,5 km zum Böhler Strand.

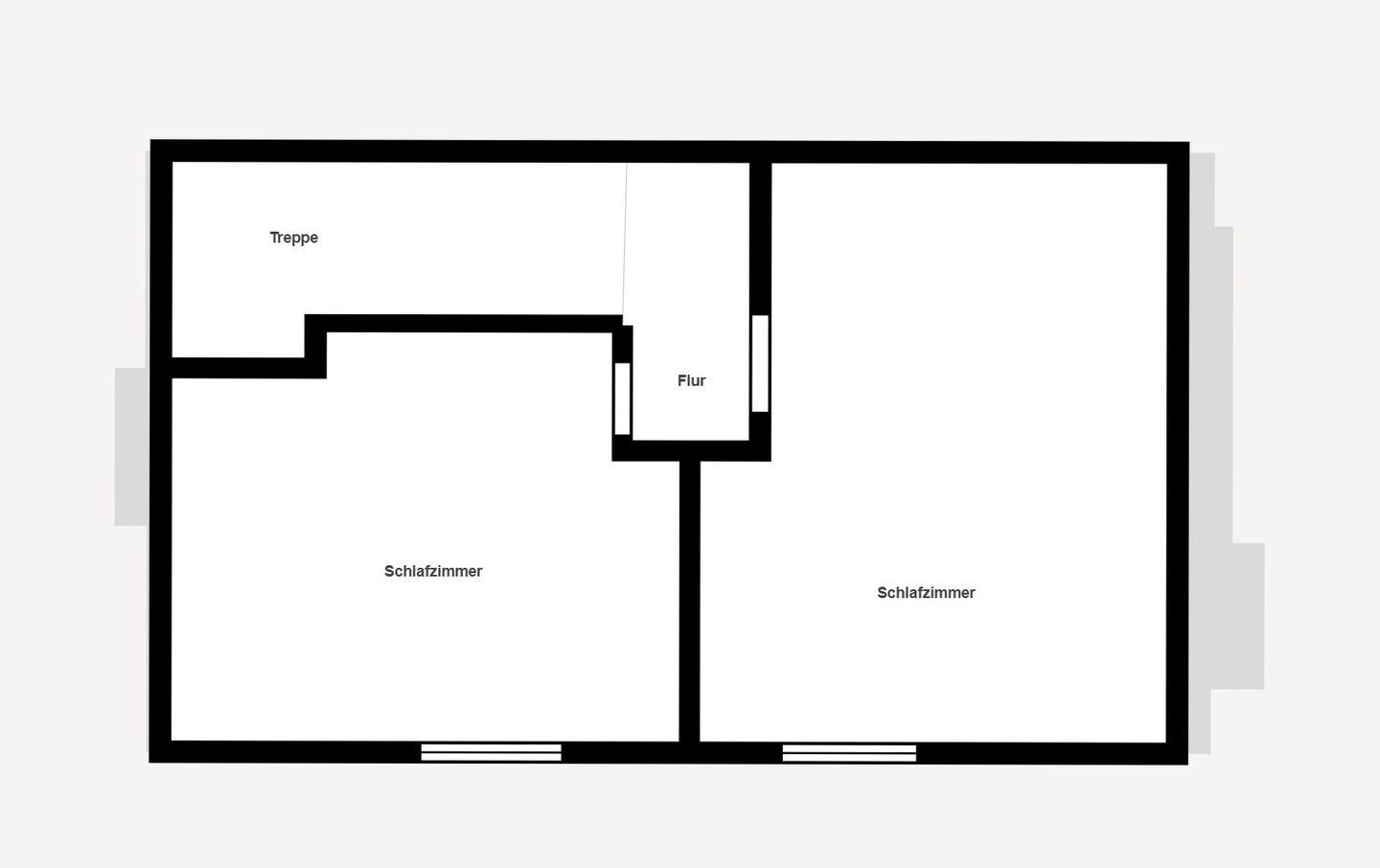
Das Reihenendhaus „Haus Skov & Salt“ liegt ruhig im Ortsteil Böhl in Sankt Peter-Ording. Der Böhler Leuchtturm ist nur etwa 500 Meter entfernt und auch der Böhler Strand ist mit rund 1,5 Kilometern gut zu erreichen. Die Gegend eignet sich wunderbar für Spaziergänge oder Fahrradtouren. Fußläufig durch einen Kiefernwald gelangen sie zum Böhler Leuchtturm. Auf etwa 65 m² bietet das Haus drei Zimmer sowie einen offenen Wohn- und Küchenbereich, der modern und gemütlich eingerichtet ist. In der Küche finden Sie alles, was Sie für den Alltag brauchen, darunter Geschirrspüler, Kombi-Backofen mit Mikrowellenfunktion, Cerankochfeld, Kaffeemaschine und Wasserkocher. Im Erdgeschoss befindet sich das Badezimmer mit Dusche, WC und Waschbecken. Eine Waschmaschine steht Ihnen ebenfalls zur Verfügung. Über eine geschlossene Treppe gelangen Sie ins Obergeschoss. Dort erwarten Sie zwei Schlafzimmer mit bequemen und hochwertigen Boxspringbetten. Beide Zimmer verfügen über Kleiderschränke, Verdunklungsmöglichkeiten und einen Smart-TV. Die abgeschlossene Südterrasse mit Gartenmöbeln lädt dazu ein, draußen zu sitzen und den Tag entspannt ausklingen zu lassen. Ihre Fahrräder können sie in einem eigenen Gartenhaus sicher abstellen. Ein Privatparkplatz steht ihnen ebenfalls zur Verfügung WLAN ist vorhanden. Hunde sind auf Anfrage willkommen. Es handelt sich um ein Nicht.Raucherhaus.

Raumaufteilung

  • Schlafzimmer, 2 Personen
    • Verdunklungsvorhänge, Kleiderschrank
    • Doppel-Boxspringbett (Extra hoch, Offenes Fußteil)
  • Schlafzimmer, 2 Personen
    • Verdunklungsvorhänge, Kleiderschrank
    • 2 x Einzel-Boxspringbett (Offenes Fußteil)

Populære faciliteter

  • Soverum 2
  • Badeværelser 1
  • Boligareal 65 m²
  • Husdyr 1
  • Tilbyder miniferie Ja
  • Afstand vand 1.500 m
  • Afstand indkøb 2.400 m
  • Internet Ja
  • Opvaskemaskine Ja
  • Ikkeryger Ja

Alle faciliteter

  • Afstand

    • Afstand indkøb
      2,4 km
    • Restaurant afstand
      250 m
    • Strandafstand
      1,5 km
    • Sø afstand
      1,5 km
  • Aktiviteter

    • Boccie
    • Cykling
    • Nordic walking
    • Ridning
    • Tennis
    • Wellness
    • Yoga
  • Badeværelse

    • Badeværelse vindue
    • Bruseantal
      1
    • Bruser
    • Håndvask
    • Hårtørrer
    • WC
  • Grundlæggende

    • Børn velkomne
    • Etageantal
      2
    • Ikke-ryger
    • Kvadratmeter
      65 m²
    • Værelser
      3
  • Hus

    • Familie
    • Garderobe
    • Internet
    • Komfur
    • Lounge siddepladser
    • Lukket grund
    • Mulighed for mørklægning af rummet
    • Persienner
    • Røgalarm
    • Senge
      4
    • Skraldespand
    • Skænk
    • Sofa
    • Spejl
    • Spisebord
    • Spisepladser
    • Stue
    • Støvsuger
    • TV
    • TV antal
      3
    • Varmt vand
    • Vaskemaskine
    • Vasketøjsstativ
    • WiFi
  • Køkken

    • Elkedel
    • Fryser
    • Kaffemaskine
    • Køkken
    • Køkkenredskaber
    • Køleskab
    • Mikroovn
    • Opvask
    • Opvaskemaskine
    • Ovn
  • Udendørs

    • Antal parkeringspladser
      1
    • Have
    • Havemøbler
    • Haveskur
    • Privat P-plads
    • Terrasse

Miniferie

Der er mulighed for miniferie i udvalgte perioder af året.

Prices and calendar

Kalender

Ankomst
Næste
   Se om emnet er ledigt på den valgte dato
Ledig
Optaget
   Ankomst mulig
Varighed
Personer

Pris

Periode
Ankomst
Afrejse
Varighed
1 uge
Personer
Ingen personer er valgt

Bemærk

Ankomst er ikke valgt.
Der er ikke valgt personer.
Aftale- og lejebetingelser

Inspiration