Sommerhus - 4 personer - Böhler Landstraße - 25826 - Sankt Peter-Ording

Beskrivelse

Beskrivelsen foreligger desværre ikke på Dansk. Se teksten på Tysk nedenfor, eller se den maskinoversatte tekst på Dansk.
Entspannen Sie in der Küsten Kate – Ihr Ferienhaus in Sankt Peter-Ording

Das lichtdurchflutete Einzelhaus unter Reet mit ca. 95 m² Wohnfläche, wurde exklusiv eingerichtet und ermöglicht Ihnen einen traumhaften Urlaub in St. Peter-Ording. Es bietet Platz für 1-4 Personen über 2 Etagen. In dem wunderschönen Ferienhaus sind zwei Haustiere zugelassen.

Das stilvolle und ganz besonders eingerichtete Einzelhaus verfügt über ca. 95 m² Wohnfläche über 2 Etagen und bietet Platz für 1-4 Personen. Im Erdgeschoss erwartet Sie ein offener, stilvoll eingerichteter Wohnbereich mit moderner, vollausgestatteter Küche und gemütlichem Essplatz – perfekt für gesellige Abende. Die ebenerdige Dusche sowie die hauseigene Sauna bieten besonderen Komfort nach einem langen Tag am Strand oder im Wald. Im Obergeschoss befinden sich zwei einladende Schlafzimmer mit komfortablen Doppelbetten (je 160x200 cm), ausgestattet mit hochwertigen Matratzen und Stauraum. Der Außenbereich überzeugt mit einer einladenden Terrasse, ausgestattet mit Gartenmöbeln, sowie einer gepflegten Fläche aus hochwertigem Kunstrasen. Das freistehende Ferienhaus vereint naturnahe Lage, moderne Ausstattung und liebevolles Design – ein perfekter Ort für erholsame Urlaubstage in St. Peter-Ording. Auch zwei Hunde sind herzlich willkommen und dürfen den Urlaub gemeinsam mit Ihnen genießen. Darüber hinaus gibt es einen Privatparkplatz für Ihr Fahrzeug, sodass Sie unbesorgt die Umgebung erkunden können.

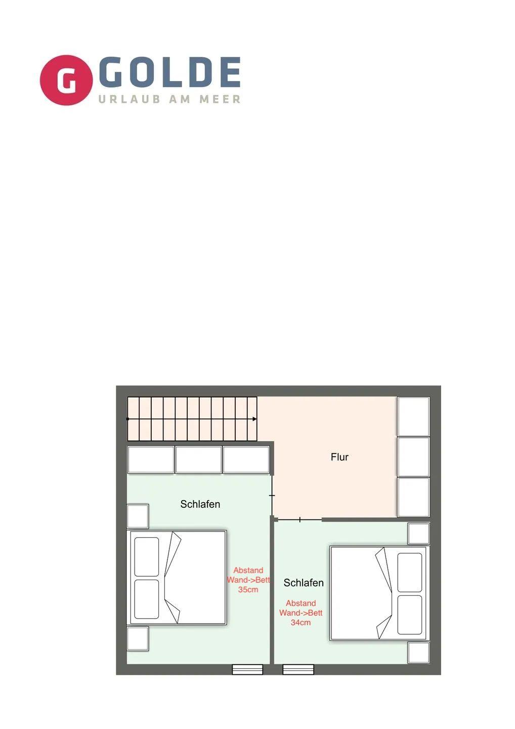
Raumaufteilung

  • Schlafzimmer, 2 Personen
    • Verdunklungsvorhänge, Kleiderschrank
    • Kleines Doppelbett (Offenes Fußteil)
  • Schlafzimmer, 2 Personen
    • Verdunklungsvorhänge, Kleiderschrank
    • Kleines Doppelbett (Offenes Fußteil)

Populære faciliteter

  • Soverum 2
  • Boligareal 95 m²
  • Husdyr 1
  • Tilbyder miniferie Ja
  • Sauna Ja
  • Internet Ja
  • Opvaskemaskine Ja
  • Ikkeryger Ja

Alle faciliteter

  • Badeværelse

    • Bruseantal
      1
    • Bruser
    • Håndvask
    • Hårtørrer
    • WC
  • Grundlæggende

    • Børn velkomne
    • Etageantal
      2
    • Ikke-ryger
    • Kvadratmeter
      95 m²
  • Hus

    • Flueskærm
    • Garderobe
    • Internet
    • Komfur
    • Mulighed for mørklægning af rummet
    • Sauna
    • Senge
      4
    • Spejl
    • TV
    • TV antal
      3
    • Vaskemaskine
    • Vasketøjsstativ
    • WiFi
  • Køkken

    • Elkedel
    • Fryser
    • Kaffemaskine
    • Køkken
    • Køleskab
    • Mikroovn
    • Opvask
    • Opvaskemaskine
    • Ovn
    • Toaster
  • Udendørs

    • Antal parkeringspladser
      1
    • Privat P-plads
    • Terrasse

Miniferie

Der er begrænset mulighed for miniferie hele året, typisk uden for højsæsonen.

Prices and calendar

Kalender

Ankomst
Næste
  • marts 2026
    mationtofr
    91
    102345678
    119101112131415
    1216171819202122
    1323242526272829
    143031
  • april 2026
    mationtofr
    1412345
    156789101112
    1613141516171819
    1720212223242526
    1827282930
    19
   Se om emnet er ledigt på den valgte dato
Ledig
Optaget
   Ankomst mulig
Varighed
Personer

Pris

Periode
Ankomst
Afrejse
Varighed
1 uge
Personer
Ingen personer er valgt

Bemærk

Ankomst er ikke valgt.
Der er ikke valgt personer.
Aftale- og lejebetingelser

Vores gæsteanmeldelser Eksterne anmeldelser

Ingen gæsteanmeldelser
4,8
4 eksterne anmeldelser
4,7
marts 2026
Generel:
Sehr positives Feedback: „Ein sehr geschmackvoll und liebevoll eingerichtetes Ferienhaus. Alles ist gemütlich und einladend, man fühlt sich vom ersten Moment an sehr wohl. Wir haben den Aufenthalt sehr genossen.“
5,0
februar 2026
Generel:
Sehr schöne und gemütlich eingerichtete Unterkunft.
4,9
januar 2026
Generel:
Es war ein wirklich schöner Aufenthalt - die Wohnung ist sehr schön eingerichtet und super ausgestattet. Die Sauna war das Highlight während der den kalten Wintertage. Die Lage ist sehr ruhig, bis zu den Stränden ist es allerdings schon recht weit, wenn man zu Fuß unterwegs sein möchte.
4,7
september 2025
Generel:
Besonders schön eingerichtetes Ferienhaus. Sehr hochwertig und es war alles da, was man braucht. Es wurde wirklich an alles gedacht. Der Service von Golde ist nicht zu übertreffen.

Inspiration