Ferielejlighed - 4 personer - Auf der Gast - 26316 - Nordseebad Dangast
Alternative emner
I nærheden (390)4 personer
Oversigt
Emne nr.: 552-210818
7 overnatninger
Fra
DKK 7.098,-
4
voksne
0
børn
- Soverum 2
- Badeværelser 1
- Boligareal 102 m²
- Husdyr Ikke tilladt
- Tilbyder miniferie Ja
- Afstand vand 800 m
- Afstand indkøb 600 m
- Sauna Ja
- Internet Ja
- Parabol/kabel TV Ja
- Opvaskemaskine Ja
- Ikkeryger Ja
Beskrivelse
Beskrivelsen foreligger desværre ikke på Dansk. Se teksten på Tysk nedenfor, eller se den maskinoversatte tekst på Dansk.
Moin und herzlich Willkommen im Apartment Weidenpesch !
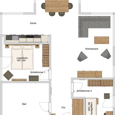
Die großzügige Ferienunterkunft Weidenpesch -im Erdgeschoss- bietet auf 102 m² Platz für bis zu vier Personen. Sie verfügt über zwei Schlafzimmer, eine offene Küche mit moderner Ausstattung, eine Terrasse sowie eine eigene Sauna. Zu den weiteren Annehmlichkeiten zählen WLAN, Fußbodenheizung und ein Privatparkplatz. Der Sandstrand ist nur 800 Meter entfernt.
Im Apartment Weidenpesch erwartet Sie eine moderne und hochwertig ausgestattete Unterkunft im Erdgeschoss eines neu erbauten Gebäudes aus dem Jahr 2024. Die großzügige Wohnfläche von 102 m² bietet bis zu vier Personen reichlich Platz, um entspannt und komfortabel den Urlaub an der Nordsee zu verbringen. Nur etwa 800 Meter trennen Sie vom nächsten Sandstrand und der Nordsee, Einkaufsmöglichkeiten sind in 600 Metern gut erreichbar, und ein Restaurant befindet sich bereits in unmittelbarer Nähe in einer Entfernung von etwa 150 Metern.
Die offen zum Wohnzimmer gestaltete Küche ist modern ausgestattet und ermöglicht gemeinsames Kochen und Genießen. Sie finden hier einen Ceranherd, Backofen, Kühlschrank mit Gefrierfach, Spülmaschine, Mikrowelle, Wasserkocher, Toaster sowie eine Kaffeemaschine und sämtliche Küchenutensilien, Geschirr und Besteck. Der angrenzende Essbereich mit Esstisch lädt zu geselligen Mahlzeiten ein, während in der Sofaecke mit bequemer Sitzgelegenheit mit Fernseher für abwechslungsreiche Unterhaltung sorgen. Die gesamte Wohnung ist mit Fliesenböden ausgestattet, was nicht nur für einen eleganten Stil, sondern auch für angenehme Fußbodenheizung sorgt.
Insbesondere Familien profitieren von der kinderfreundlichen Ausstattung: Babys und Kinder sind willkommen, es gibt Sichtschutz an allen Fenstern sowie Fliegengitter, und die Unterkunft ist als Nichtraucherbereich ausgewiesen. Die zwei Schlafzimmer bieten jeweils behagliche Rückzugsorte; ein Schreibtisch steht für Arbeit oder kreative Stunden bereit. Ein Ganzkörperspiegel, Kommode, Garderobe, Schuhschrank und Wäscheständer gewährleisten Komfort im Alltag. Die moderne Wärmepumpenheizung sorgt ganzjährig für behagliches Wohnklima; bei Bedarf steht ein Staubsauger zur Verfügung.
Das hochwertige Badezimmer ist mit eigener Sauna, bodengleicher Dusche, WC, Waschbecken, Spiegel, Fenster, Haartrockner und allen notwendigen Annehmlichkeiten eingerichtet. Eine Waschmaschine und ein Trockner stehen zur Eigennutzung bereit.
WLAN und Internetzugang ermöglichen Ihnen komfortables Arbeiten und Surfen während des Aufenthalts.
Ein weiteres Highlight ist die einladende Terrasse, auf dem Sie mit Gartenmöbeln ausgestattet entspannte Stunden an der frischen Nordseeluft genießen können. Der zur Unterkunft gehörende Privatparkplatz bietet einen Stellplatz für Ihr Fahrzeug.
Sichern Sie sich Ihren Aufenthalt in dieser modernen und komfortablen Unterkunft im Nordsee Park Dangast.
Zusätzliche Leistungen gegen Aufpreis möglich:
Handtücher (1 Duschtuch + 2 Handtücher) und Bettwäsche auf Anfrage, Zwischenreinigung, Handtuch-/Bettwäschewechsel
Daten und Fakten:
Wohnzimmer: gemütliche Sitzecke mit Sessel, Sofa, Flachbildfernseher, Empfang deutschsprachiger TV-Programme
Schlafzimmer 1: Doppelbett (Maße: 180 x 200 cm - 2 Einzelmatratzen á 90x200cm), Flat-TV, Leselampen, Kleiderschrank, Verdunkelungsvorhänge
Schlafzimmer 2: Etagenbett (Maße: 2 x 90x200 cm), Flat-TV, Leselampen, Kleiderschrank, Verdunkelungsvorhänge
Esszimmer: großer Esstisch mit 4 bequemen Stühlen
Küche und Haushalt: Einbauküche, Kühlschrank mit Gefrierfach, 4-Zonen Cerankochfeld, Backofen, Mikrowelle, Dunstabzugshaube, Geschirrspüler, Toaster, Wasserkocher, Kaffeefiltermaschine, hochwertiges Geschirr und Besteck
Bad und Sanitär: Sauna, bodentiefe, barrierefreie Sommerregendusche, Waschtischanlage mit Spiegel, Föhn, WC, Handtuchheizung, Waschmaschine, Trockner, Wäscheständer
Flur: Aktivierung der Stromzufuhr der Wohnung durch eine Stromkarte. Flur mit Garderobe, Schuh- und Garderobenschrank, Staubsauger
Zusätzliche Kinderausstattung vorhanden: Kinderreisebett (faltbar) + Kinderhochstuhl im Gemeinschaftsraum des Erdgeschosses
Vores gæsteanmeldelser Eksterne anmeldelser
Faciliteter
-
Afstand
-
Afstand indkøb600 m
-
Byafstand24 km
-
Lufthavnsafstand80000 km
-
Restaurant afstand150 m
-
Strandafstand800 m
-
Sø afstand800 m
-
-
Badeværelse
-
Badeværelse vindue
-
Bruseantal1
-
Bruser
-
Håndvask
-
Hårtørrer
-
Tørretumbler
-
WC
-
-
Grundlæggende
-
Byggeår2024
-
Børn velkomne
-
Ikke-ryger
-
Kvadratmeter102 m²
-
Værelser3
-
År Renovering2025
-
-
Hus
-
Allergi venlig
-
Baby seng1
-
Digital TV
-
Dobbeltsenge1
-
Familie
-
Flueskærm
-
Fuld længde spejl
-
Garderobe
-
Høj stol1
-
Internet
-
Komfur
-
Køjesenge1
-
Kørestolsvenlig
-
Lounge siddepladser
-
Lænestol
-
Mulighed for mørklægning af rummet
-
Persienner
-
Radiator
-
Røgalarm
-
Sauna
-
Senge4
-
Skoskab
-
Skraldespand
-
Skrivebord
-
Skænk
-
Sofa
-
Spejl
-
Spisebord
-
Spisepladser
-
Stue
-
Støvsuger
-
TV
-
TV antal3
-
Underfloor heating
-
Varmt vand
-
Vaskemaskine
-
Vasketøjsstativ
-
WiFi
-
-
Køkken
-
Elkedel
-
Fryser
-
Kaffemaskine
-
Køkken
-
Køkkenredskaber
-
Køleskab
-
Mikroovn
-
Opvask
-
Opvaskemaskine
-
Ovn
-
Toaster
-
-
Udendørs
-
Antal parkeringspladser1
-
Havemøbler
-
Privat P-plads
-
Terrasse
-
Miniferie
Der er begrænset mulighed for miniferie hele året, typisk uden for højsæsonen.
Priser og kalender
Kalender
Varighed
Personer
Pris
Periode
- Ankomst
- Afrejse
- Varighed
- 1 uge
Personer
Ingen personer er valgt
Bemærk
Ankomst er ikke valgt.
Der er ikke valgt personer.
