Ferielejlighed - 4 personer - Feldhausenstr. - 26548 - Norderney

Beskrivelse

Beskrivelsen foreligger desværre ikke på Dansk. Se teksten på Tysk nedenfor, eller se den maskinoversatte tekst på Dansk.
Liebevoll und gemütlich eingerichtete Ferienwohnung

Liebevoll und gemütlich eingerichtete Ferienwohnung in der Feldhausenstraße. Genießen Sie Norderney in vollen Zügen mit dieser herrlichen Unterkunft für bis zu 4 Personen und einen Hund.

Freuen Sie sich auf das Meeresrauschen und die kurzen Wege zum Strand. Der Wohn- und Essbereich ist sehr gemütlich eingerichtet. Die Küchenzeile beinhaltet alles, was Sie für Ihren Urlaub brauchen: Herd mit Backofen, Kaffeemaschine, Wasserkocher und eine Mikrowelle. Die Couch lässt sich sehr einfach in ein Schlafsofa (140x200cm) umfunktionieren und der Flachbildfernseher sorgt für Unterhaltung bei schlechtem Wetter. Im Schlafzimmer gibt es ein großes, bequemes Boxspringbett (160x200cm) und einen großen Kleiderschrank für Ihre Urlaubsgarderobe. Die Unterkunft befindet sich im zweiten Stock und Hunde sind hier herzlich willkommen (maximal ein Hund). Bettwäsche und Handtücher sind inklusive. Die Nutzung der Waschmaschine und des Trockneres erfolgt gegen Gebühr. Auf Nachfrage stellen wir Ihnen gerne ein Babybett und einen Hochstuhl zur Verfügung. Gruppenreisen bitten wir von Buchungen abzusehen. Das Rauchen ist innerhalb dieser Wohnung nicht erlaubt. Wichtiger Hinweis: Von Mitte Oktober 2025 bis voraussichtlich Ende Mai 2026 wird die Feldhausenstraße zwischen der Gartenstraße und der Marienstraße saniert. Während dieser Zeit kann es zu baulichen Maßnahmen kommen, die möglicherweise mit etwas mehr Lärm verbunden sind. Wir danken für Ihr Verständnis und bitten um Ihre Aufmerksamkeit.

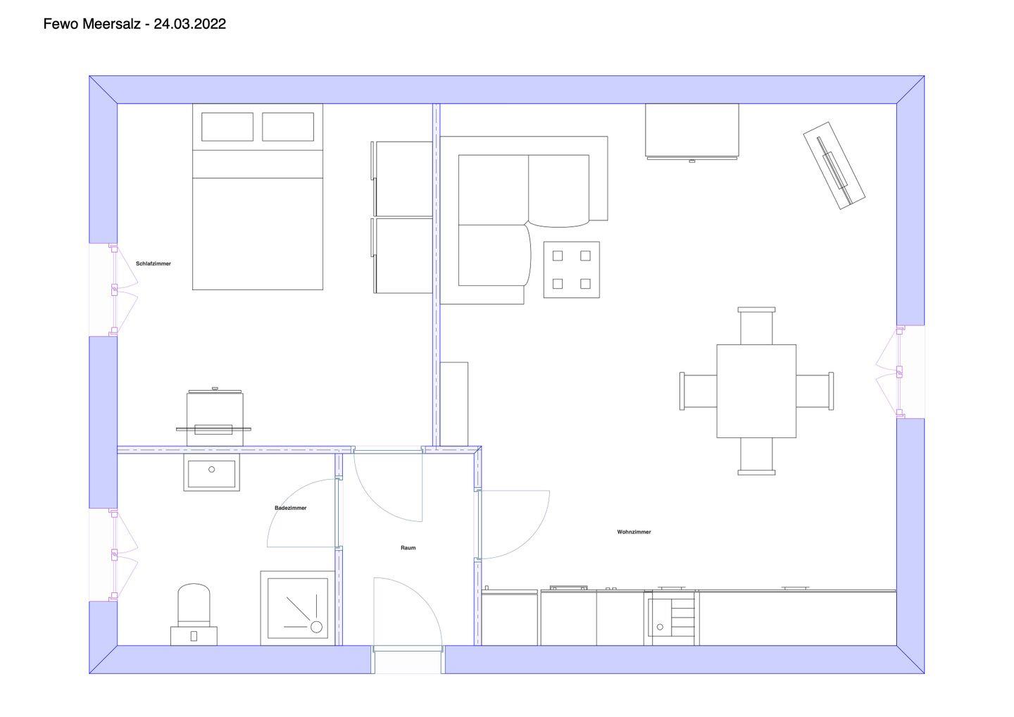
Raumaufteilung

  • Schlafzimmer, 2 Personen
    • Verdunklungsvorhänge, Kleiderschrank
    • Kleines Doppel-Boxspringbett (Offenes Fußteil)
  • Wohnzimmer, 2 Personen
    • Verdunklungsvorhänge
    • Kleine Doppelcouch (Offenes Fußteil)

Populære faciliteter

  • Soverum 1
  • Badeværelser 1
  • Boligareal 55 m²
  • Husdyr 1
  • Tilbyder miniferie Ja
  • Afstand vand 1 km
  • Afstand indkøb 300 m
  • Internet Ja
  • Opvaskemaskine Ja
  • Ikkeryger Ja

Alle faciliteter

  • Afstand

    • Afstand indkøb
      300 m
    • Byafstand
      500 m
    • Restaurant afstand
      300 m
    • Strandafstand
      1 km
    • Sø afstand
      1 km
  • Aktiviteter

    • Cykling
    • Golf
    • Jogging
    • Minigolf
    • Nordic walking
    • Sportsaktiviteter
    • Surfing
    • Svømning
    • Tennis
    • Vandreture
    • Wellness
  • Badeværelse

    • Badeværelse vindue
    • Bruseantal
      1
    • Bruser
    • Håndklæder
    • Håndvask
    • Hårtørrer
    • Tørretumbler
    • WC
  • Grundlæggende

    • Børn velkomne
    • Ikke-ryger
    • Kvadratmeter
      55 m²
    • Værelser
      2
  • Hus

    • Baby seng
      1
    • Bøger
    • Familie
    • Fuld længde spejl
    • Garderobe
    • Høj stol
      1
    • Internet
    • Komfur
    • Kultur
    • Mulighed for mørklægning af rummet
    • Oprindeligt udstyret
    • Radiator
    • Radio
    • Røgalarm
    • Senge
      4
    • Sengetøj
    • Shopping
    • Skraldespand
    • Skænk
    • Sofa
    • Sovesofaer
      1
    • Spejl
    • Spil
    • Spisebord
    • Spisepladser
    • Strygebræt
    • Strygejern
    • Stue
    • Støvsuger
    • TV
    • TV antal
      1
    • Varmt vand
    • Vaskemaskine
    • Vasketøjsstativ
    • WiFi
  • Køkken

    • Elkedel
    • Fryser
    • Kaffemaskine
    • Køkken
    • Køkkenredskaber
    • Køleskab
    • Mikroovn
    • Opvask
    • Opvaskemaskine
    • Ovn
    • Toaster

Miniferie

Der er begrænset mulighed for miniferie hele året, typisk uden for højsæsonen.

Prices and calendar

Kalender

Ankomst
Næste
   Se om emnet er ledigt på den valgte dato
Ledig
Optaget
   Ankomst mulig
Varighed
Personer

Pris

Periode
Ankomst
Afrejse
Varighed
1 uge
Personer
Ingen personer er valgt

Bemærk

Ankomst er ikke valgt.
Der er ikke valgt personer.
Aftale- og lejebetingelser

Vores gæsteanmeldelser Eksterne anmeldelser

Ingen gæsteanmeldelser
4,7
24 eksterne anmeldelser
4,9
december 2025
Generel:
Wir haben uns sehr wohl gefühlt.Es ist ein sehr ruhiges Haus in zentraler Lage. Die Ausstattung ist ebenfalls sehr gut von Kaffeekapselmaschine über Kuchenbackform ist alles vorhanden.
4,9
september 2025
4,9
august 2025
Generel:
Sehr schön eingerichtete Wohnung in zentralen Lage von Norderney. Gut mit dem Bus zu erreichen.
4,7
august 2025
0,0
maj 2025
4,9
maj 2025
4,3
april 2025
5,0
januar 2025
4,4
august 2024
5,0
august 2024
Generel:
Zentrale und ruhige Nahe dem Zentrum gelegen
4,1
juli 2024
Generel:
Gute Lage und gute Ausstattung, empfehlenswert
4,6
maj 2024
Generel:
Günstige Lage, sehr ruhig gelegen, trotzdem sind mehrere Restaurants, Geschäfte und ein Fahrradverleih schnell fußläufig erreichbar.
4,9
marts 2024
5,0
marts 2024
Generel:
Sehr schöne und günstig gelegene Wohnung. Bequeme, große Couch. Bad recht klein, aber völlig ausreichend. Ausreichend Stauraum für Klamotten, da großer Kleiderschrank und Kommode im Schlafzimmer vorhanden. Aufgrund der Treppen ins Stockwerk der Wohnung und der Lage des Bettes in der Dachschräge ist die Wohnung gegebenfalls eher für „mobilere/ beweglichere“ Menschen geeignet. Wir haben uns sehr wohlgefühlt und kommen gerne wieder. Hier macht auch schlechtes Wetter noch lange keine schlechte Laune.
4,7
januar 2024
Generel:
Sehr schöne Wohnung (für den Winter), ideal zum Rückzug. Gross, geräumig und gut bestückt mit allem, was man so braucht. Liegt im Dachgeschoss, also gut zu Fuss sein ist Voraussetzung. Kurpark und Zentrum direkt um die Ecke und zum Wasser ist es auch nicht weit. Sehr guter und aufmerksamer service- vielen Dank!
5,0
december 2023
5,0
december 2023
4,3
oktober 2023
5,0
september 2023
Generel:
Es fehlte an nichts in der Ferienwohnung. Die Küche ist richtig gut ausgestattet. Alles vorhanden. Bei Fragen an den Vermieter, sehr schnelle Rückmeldung. Wir hatten einen super schönen Urlaub und kommen bestimmt wieder.
4,3
juli 2023
Generel:
Schöne, zentral gelegene FeWo, gute Ausstattung vor allem in der Küche! Gute Aufteilung der Räume & hundefreundlich nutzbar. Park in der Nähe.
4,4
juli 2023
Generel:
Der Kontakt mit Herrn Visser war hervorragend sowie unkompliziert. Sehr lösungsorientiert und freundlich.
4,3
maj 2023
4,0
marts 2023
4,9
marts 2023
Generel:
Eine schöne und gut gelegene Wohnung. Man braucht nur 2 min in die Stadt, zum Bäcker oder Supermarkt. Der Bus hält nur wenige Schritte von der Unterkunft. Die Kommunikation zum Vermieter war super. Es wurde sich zwischendurch auch nach unserem Woh erkundigt. Alles in allem -> super. Wir kommen gerne wieder.

Inspiration