Ferielejlighed - 4 personer - Lüttje Damenpfad - 26548 - Norderney

Beskrivelse

Beskrivelsen foreligger desværre ikke på Dansk. Se teksten på Tysk nedenfor, eller se den maskinoversatte tekst på Dansk.
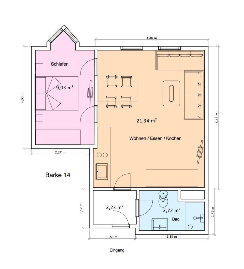
Barke 14

"Gute Lage - gute Wohnung für 2 - 4 Personen, nicht weit vom Schuss und trotzdem Ruhig."

Die Ferienwohnung "Barke 14" auf Norderney liegt im Lüttje Damenpfad, unmittelbar unterhalb der Marienhöhe. Damit vereint diese Wohnung die Nähe zum Strand und zum Inselkern. Viele Restaurants, Cafés und Einkaufsmöglichkeiten sind fußläufig erreichbar. Ein Fahrrad wird dadurch nicht zwangsläufig benötigt. Das Schlafzimmer verfügt über ein Doppelbett (1,80m x 2,00m). Im Wohnzimmer sind dazu noch zwei Schrankbetten vorhanden. Weiter befindet sich im Wohnzimmer ein Blu-ray Player, der nicht nur Filme, sondern auch CDs und DVDs abspielen kann. Die Küche wurde mit einer Spülmaschine, einer Mikrowelle und einer Kaffeemaschine ausgestattet. Die gemeinschaftlich nutzbare Waschmaschine und der Wäschetrockner erfordern den Einwurf von Münzen. Die Wohnung ist groß genug für bis zu vier Personen und ist optimal für Familien, Paare oder Freunde. Hunde sind in dieser Wohnung nicht erlaubt.

Raumaufteilung

  • Schlafzimmer, 2 Personen
    • Kleiderschrank
    • Doppelbett (Offenes Fußteil)
  • Wohnzimmer, 2 Personen
    • 2 x Einzel-Schrankklappbett

Populære faciliteter

  • Soverum 1
  • Badeværelser 1
  • Boligareal 38 m²
  • Husdyr Ikke tilladt
  • Tilbyder miniferie Ja
  • Internet Ja
  • Ikkeryger Ja

Alle faciliteter

  • Afstand

    • Strandafstand
      140 m
  • Badeværelse

    • Hårtørrer
    • Tørretumbler
  • Grundlæggende

    • Børn velkomne
    • Ikke-ryger
    • Kvadratmeter
      38 m²
    • Værelser
      2
  • Hus

    • Baby seng
      1
    • Dobbeltsenge
      1
    • Garderobe
    • Internet
    • Røgalarm
    • Senge
      4
    • TV
    • Vaskemaskine
    • WiFi
  • Køkken

    • Elkedel
    • Kaffemaskine
    • Køkken
    • Mikroovn
    • Toaster

Miniferie

Der er mulighed for miniferie i udvalgte perioder af året.

Prices and calendar

Kalender

Ankomst
Næste
  • marts 2026
    mationtofr
    91
    102345678
    119101112131415
    1216171819202122
    1323242526272829
    143031
  • april 2026
    mationtofr
    1412345
    156789101112
    1613141516171819
    1720212223242526
    1827282930
    19
   Se om emnet er ledigt på den valgte dato
Ledig
Optaget
   Ankomst mulig
Varighed
Personer

Pris

Periode
Ankomst
Afrejse
Varighed
1 uge
Personer
Ingen personer er valgt

Bemærk

Ankomst er ikke valgt.
Der er ikke valgt personer.
Aftale- og lejebetingelser

Vores gæsteanmeldelser Eksterne anmeldelser

Ingen gæsteanmeldelser
4,6
11 eksterne anmeldelser
4,3
marts 2026
Generel:
Paar
4,0
oktober 2025
Generel:
Alleinreisend
4,0
august 2025
Generel:
älteres Ehepaar
5,0
maj 2025
Generel:
0
4,8
maj 2025
Generel:
Paar
4,5
marts 2025
Generel:
Die Lage ….!
5,0
september 2024
Generel:
Gruppe
4,5
august 2024
Generel:
1
4,3
september 2023
Generel:
Paar
5,0
september 2023
Generel:
5
5,0
august 2023
Generel:
Familie mit Kind

Inspiration