Ferielejlighed - 3 personer - Luisenstrasse - 26548 - Norderney
Alternative emner
I nærheden (1.148)3 personer
Oversigt
Emne nr.: 552-155301
7 overnatninger
Fra
DKK 5.523,-
3
voksne
0
børn
- Soverum 1
- Badeværelser 1
- Boligareal 40 m²
- Husdyr Ikke tilladt
- Tilbyder miniferie Ja
- Internet Ja
- Opvaskemaskine Ja
- Ikkeryger Ja
Beskrivelse
Beskrivelsen foreligger desværre ikke på Dansk. Se teksten på Tysk nedenfor, eller se den maskinoversatte tekst på Dansk.
Insel-Sonne
"Eine kleine Wohnung in guter Lage, die für einen günstigen Preis alles bietet"
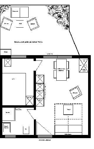
Die Ferienwohnung "Insel-Sonne" befindet sich in der Anlage Filia Maris, in der Luisenstraße. Sie ist über einen eigenen Eingang erreichbar (8 Stufen am Haus und 7 Stufen vor der Wohnung). Die Wohnung liegt in einer ruhigeren und dennoch zentralen Lage. Es ist jedoch wichtig zu beachten, dass die Wohnung aufgrund der zusätzlichen Stufen vor der Wohnungstür nicht für Menschen mit eingeschränkter Mobilität geeignet ist (schmale Metalltreppe mit Haltegriffen). Die Wohnung bietet Platz für bis zu 3 Personen.
Die Inneneinrichtung der Ferienwohnung "Insel-Sonne" ist hell gestaltet. Der Wohnraum ist mit Fliesen ausgelegt. Sämtliche Fenster- und Türöffnungen sind mit Plissees ausgestattet. Im Wohnbereich befindet sich ein Schlafsofa mit einer Matratze. Zudem befinden sich dort ein Flachbildschirm, ein DVD-Player und eine HiFi-Anlage. Das Schlafzimmer ist mit einem Doppelbett ausgestattet. Die Küchenzeile befindet sich im Wohnbereich und beinhaltet alle notwendigen Utensilien, ist jedoch ohne Backofen ausgestattet worden. Ein Highlight der Ferienwohnung ist die umzäunte Süd/Ost Terrasse. Diese Terrasse ist mit einer Markise und Gartenmöbeln ausgestattet. Hunde sind hier nicht erlaubt.
Vores gæsteanmeldelser Eksterne anmeldelser
Faciliteter
-
Afstand
-
Strandafstand125 m
-
-
Badeværelse
-
Hårtørrer
-
-
Grundlæggende
-
Børn velkomne
-
Ikke-ryger
-
Kvadratmeter40 m²
-
Værelser2
-
-
Hus
-
Baby seng1
-
Dobbeltsenge1
-
Garderobe
-
Internet
-
Lukket terrasse
-
Røgalarm
-
Senge3
-
Sikkerheds boks
-
Sovesofaer til én1
-
TV
-
WiFi
-
-
Køkken
-
Køkken
-
Mikroovn
-
Opvaskemaskine
-
Miniferie
Der er begrænset mulighed for miniferie hele året, typisk uden for højsæsonen.
Priser og kalender
Kalender
Varighed
Personer
Pris
Periode
- Ankomst
- Afrejse
- Varighed
- 1 uge
Personer
Ingen personer er valgt
Bemærk
Ankomst er ikke valgt.
Der er ikke valgt personer.
