Ferielejlighed - 6 personer - Strandstrasse - 23669 - Niendorf/Ostsee

Beskrivelse

Beskrivelsen foreligger desværre ikke på Dansk. Se teksten på Tysk nedenfor, eller se den maskinoversatte tekst på Dansk.
Ostsee Lodges mit Wellnessbereich, Captain's Home Ostsee Lodges

Von der kleinen hochwertigen Wohneinheit, mit nur 5 modernen und lichtdurchfluteten Wohnungen, erreichen Sie in nur 3 Gehminuten die Ostsee mit der weitläufigen Strandpromenade, den Hafen von Niendorf, den Bäcker, Restaurants und Cafés. Die vielseitigen Shoppingmöglichkeiten in Timmendorfer Strand oder das Sealife erreichen Sie über die Strandpromenade bequem zu Fuß oder mit dem Fahrrad. Genießen Sie Ihren Urlaub in den 75-144 qm großen Wohnungen mit 2-3 Schlafzimmern, bodentiefen Fenstern und jeglichem Komfort, einfach zum wohlfühlen. Bei der Einrichtung der Wohnung und Errichtung des Hauses wurde auf hochwertige Materialien Wert gelegt.
In unserem Herzstück der 144 qm großen Wohnung Captain´s Home können Sie gemütlich vor dem Holzkamin verweilen mit Freunden oder Ihrer Familie mit bis zu 6 Personen. Im Wellnessbereich finden Sie unsere Klafssauna mit Regendusche und Fitnessgeräten wie einem Crosstrainer und Ergometer. Ladestationen für Ihr Elektrofahrzeug im Carport sind vorhanden.

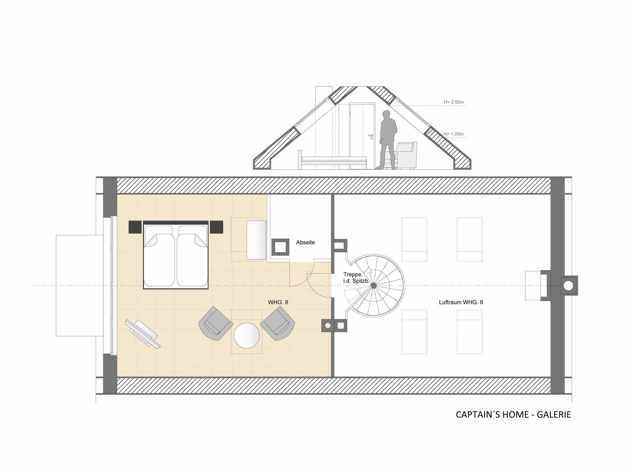
Die lichtdurchflutete Ferienwohnung Captain´s Home mit 3 Schlafzimmern, 2 Bädern, Kamin und Aufzug befindet sich im 2. Obergeschoss des Ferienhauses Ostsee Lodges mit einer Klafssauna und Fitnessbereich. Genießen Sie Ihren Urlaub in der 144 qm großzügigen Wohnung, mit bodentiefen Fenstern, je einer Loggia ( 30 qm) zum Südwesten und Südosten, einem Strandkorb und Sonnenschirm. Captain´s Home bietet Ihnen neben 3 Schlafzimmern 2 Bäder, Fußbodenheizung und einen Holzkamin für bis zu 6 Personen. Von der offenen komfortablen Küche gelangen Sie in das lichtdurchflutete Wohnzimmer mit Essbereich und einer Leseecke mit einem Schaukelstuhl zum Verweilen. Das obere großzügige Schlafzimmer erreichen Sie über eine Wendeltreppe, von dort können Sie einen kleinen Meerblick erhaschen. Im 1. Duschbad steht Ihnen ein Waschtrockner zur Verfügung. Im 2. Bad haben Sie neben einer großen Komfortdusche eine Whirlwanne. Carpot mit Ladestation und Fahrradhäuschen sind vorhanden.

Populære faciliteter

  • Soverum 3
  • Badeværelser 2
  • Boligareal 144 m²
  • Husdyr Ikke tilladt
  • Tilbyder miniferie Ja
  • Sauna Ja
  • Internet Ja
  • Vaskemaskine Ja
  • Tørretumbler Ja
  • Opvaskemaskine Ja
  • Ikkeryger Ja

Alle faciliteter

  • Aktivitetsfaciliteter

    • Golf
    • Ridning
    • Wellness tilbud
  • Børnefaciliteter

    • Familievenlig
  • Grundlæggende faciliteter

    • Størrelse
      144 m²
  • Indkvartering Faciliteter

    • El-cykel ladestation
    • Elevator/elevator
    • Ikke-ryger hus
    • Internet i det offentlige område
    • Sauna
  • Omgivende faciliteter

    • Cykelrum
    • Parkeringsplads
  • Servicefaciliteter

    • Bad / WC
    • Badekar
    • Balkon
    • Bruser
    • Dyr ikke tilladt
    • Flere soveværelser
    • Højstol
    • Håndklæder
    • Hårtørrer
    • Ikke-rygere
    • Internet - WiFi
    • Køleskab
    • Mulighed for fryser
    • Opvarmet
    • Opvaskemaskine
    • Ovn
    • Rejseseng/krybbe
    • Røgalarm
    • Sengetøj
    • Separat køkken
    • Sikkerheds boks
    • Sæbe
    • Terrasse
    • Toiletpapir
    • Tørretumbler
    • Vaskemaskine

Miniferie

Der er begrænset mulighed for miniferie hele året, typisk uden for højsæsonen.

Prices and calendar

Kalender

Ankomst
Forrige Næste
   Se om emnet er ledigt på den valgte dato
Ledig
Optaget
   Ankomst mulig
Varighed
Personer

Pris

Periode
Ankomst
Afrejse
Varighed
1 uge
Personer
Ingen personer er valgt

Bemærk

Ankomst er ikke valgt.
Der er ikke valgt personer.
Aftale- og lejebetingelser

Vores gæsteanmeldelser Eksterne anmeldelser

Ingen gæsteanmeldelser
4,6
Rengøring:
5,0
Beliggenhed:
5,0
Generelt:
5,0
Værelse:
4,0
Service på stedet:
5,0
Værdi for pengene:
4,0
1 ekstern anmeldelse
4,6
oktober 2024
Rengøring:
5
Beliggenhed:
5
Generelt:
5
Værelse:
4
Service på stedet:
5
Værdi for pengene:
4
Generel:
Das Appartement ist toll! Verbesserungswürdig ist die Coach. Sie ist unbequem, da sich die Sitzfläche immer nach vorne schiebt. Wir haben die Coach verrückt, um einen besseren Winkel zum Fernseher zu haben, Tipp fürs Reinigungsteam: Das Putzen unter der Couch wird sich lohnen. :-)

Inspiration