Alternative emner
I nærheden (6)Ferielejlighed - 4 personer - Grafenwiesen - 93479
-
4 personer
-
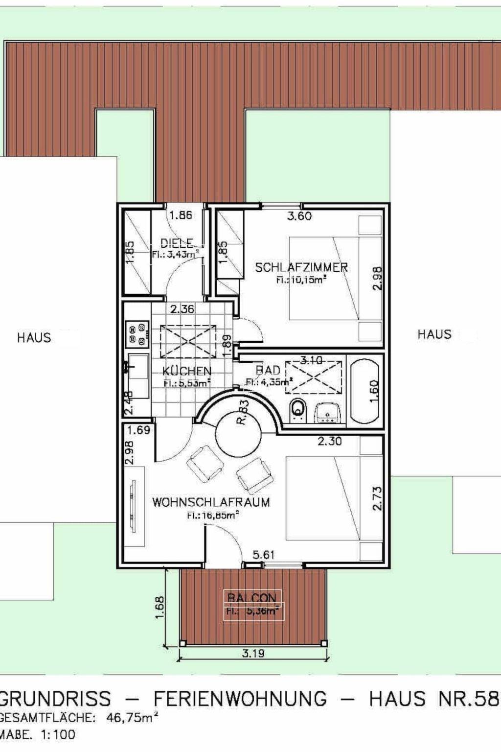
Boligareal46 m²
-
Emne nr.:305-DE8493.603.1
Beskrivelse
Beskrivelsen foreligger desværre ikke på Dansk. Se teksten på Engelsk nedenfor, eller se den maskinoversatte tekst på Dansk.
Our four holiday flats are located in the small holiday home complex "Am Wildgatter" in the resort of Grafenwiesen, nestled between Kaitersberg ( 1132m ) and the almost eight kilometre long mountain range of the Hoher Bogen ( 1079m) on the river Weißer Regen in the Bavarian Forest Nature Park.
The modern and individually furnished 2-room flats are equipped for up to four guests, have fully equipped kitchens, balcony or terrace and are the ideal starting point for all activities in the Bavarian Forest. Many hiking trails start directly in the village, the Goldsteig long-distance hiking trail and the Way of St James run through the village. Various cycle paths such as the Lamer Winkel - Arber cycle path and the Green Roof cycle path also pass through Grafenwiesen. The skiing/cross-country skiing and hiking areas on the Großer Arber, Eck, Lohberg Scheiben and Hohenbogen are within easy reach.
We only took over this flat at the beginning of 2022 and have completely renovated and modernised it. A cosy box-spring bed awaits our guests in the bedroom. The living room is furnished with a sofa bed, cosy round dining area, reading corner and satellite TV. There is also a Wii games console, Bluray/DVD player and a DAB+ radio with Bluetooth. The bathroom with bathtub is bright and friendly. The kitchen is equipped with a ceramic hob, microwave with grill and hot air, dishwasher, Senseo coffee machine, kettle, toaster and all cooking utensils. The sunny balcony overlooks a small stream and a biotope in the countryside. A high-quality electric barbecue is available for barbecuing.
The flat is also equipped with WiFi-WLan, an air purifier with Hepa 14 filter, smoke detectors, fire extinguisher, first aid kit and a hand sanitiser dispenser.
Basic information
- Pets allowed: 1
- allowed size of dogs: medium (30 to 60 cm)
- is located in: holiday park
- type of apartment: attic
- type of building: terraced house
- Floor on which the object can be found: 1. floor
- Total number of floors in the building above the ground floor: 1
- year of construction: 1989
- Year of the last complete renovation : 2022
- not observable from the street
- Number of bedrooms: 1
- Number of bathrooms: 1
Top features
- WiFi
- heating: Everywhere
- balcony
- Total of private car parking spaces: 1
- ? of which garage spaces: None
- ? of which carport spaces: None
- ? of which private outdoor parking spaces: None
Sleeping
bedroom 2
- double bed (1.80 m width)
in the living area
- double sofa bed for 2 people
Bathroom
bathroom 2
- bath tub
Cooking/Living
- coffee machine: coffee machine capsules/pods
- fridge/freezer: freezing compartment, fridge
- stove: 2-plate stove
- kitchen hood
- toaster
- microwave
- electric kettle
- dishwasher
- number of dining tables: 1
- number of seats: 4
- number of living rooms: 1
Entertainment
- TV: satellite TV
- DVD player
- games console
- music system
- party games for adults
Utility
- vaccum cleaner
Outside area
- grill/barbecue: Electric grill
Surroundings
- view: garden, forrest, lawn
- Nearest town centre: 1,2 km
- Grocery store: 1,2 km
- restaurant: 100 m
- train station: 1,5 km
- distance public transport: 1,5 km
- lake: 5,0 km
- river: 1,5 km
- public swimming pool: 1,4 km
- hiking trail: 100 m
- ski vacation
- distance to ski slope: 8,0 km
Type of building: terraced house. year of construction: 1989.
The modern and individually furnished 2-room flats are equipped for up to four guests, have fully equipped kitchens, balcony or terrace and are the ideal starting point for all activities in the Bavarian Forest. Many hiking trails start directly in the village, the Goldsteig long-distance hiking trail and the Way of St James run through the village. Various cycle paths such as the Lamer Winkel - Arber cycle path and the Green Roof cycle path also pass through Grafenwiesen. The skiing/cross-country skiing and hiking areas on the Großer Arber, Eck, Lohberg Scheiben and Hohenbogen are within easy reach.
We only took over this flat at the beginning of 2022 and have completely renovated and modernised it. A cosy box-spring bed awaits our guests in the bedroom. The living room is furnished with a sofa bed, cosy round dining area, reading corner and satellite TV. There is also a Wii games console, Bluray/DVD player and a DAB+ radio with Bluetooth. The bathroom with bathtub is bright and friendly. The kitchen is equipped with a ceramic hob, microwave with grill and hot air, dishwasher, Senseo coffee machine, kettle, toaster and all cooking utensils. The sunny balcony overlooks a small stream and a biotope in the countryside. A high-quality electric barbecue is available for barbecuing.
The flat is also equipped with WiFi-WLan, an air purifier with Hepa 14 filter, smoke detectors, fire extinguisher, first aid kit and a hand sanitiser dispenser.
Basic information
- Pets allowed: 1
- allowed size of dogs: medium (30 to 60 cm)
- is located in: holiday park
- type of apartment: attic
- type of building: terraced house
- Floor on which the object can be found: 1. floor
- Total number of floors in the building above the ground floor: 1
- year of construction: 1989
- Year of the last complete renovation : 2022
- not observable from the street
- Number of bedrooms: 1
- Number of bathrooms: 1
Top features
- WiFi
- heating: Everywhere
- balcony
- Total of private car parking spaces: 1
- ? of which garage spaces: None
- ? of which carport spaces: None
- ? of which private outdoor parking spaces: None
Sleeping
bedroom 2
- double bed (1.80 m width)
in the living area
- double sofa bed for 2 people
Bathroom
bathroom 2
- bath tub
Cooking/Living
- coffee machine: coffee machine capsules/pods
- fridge/freezer: freezing compartment, fridge
- stove: 2-plate stove
- kitchen hood
- toaster
- microwave
- electric kettle
- dishwasher
- number of dining tables: 1
- number of seats: 4
- number of living rooms: 1
Entertainment
- TV: satellite TV
- DVD player
- games console
- music system
- party games for adults
Utility
- vaccum cleaner
Outside area
- grill/barbecue: Electric grill
Surroundings
- view: garden, forrest, lawn
- Nearest town centre: 1,2 km
- Grocery store: 1,2 km
- restaurant: 100 m
- train station: 1,5 km
- distance public transport: 1,5 km
- lake: 5,0 km
- river: 1,5 km
- public swimming pool: 1,4 km
- hiking trail: 100 m
- ski vacation
- distance to ski slope: 8,0 km
Type of building: terraced house. year of construction: 1989.
Populære faciliteter
- Soverum 1
- Badeværelser 1
- Boligareal 46 m²
- Husdyr 1
- Tilbyder miniferie Ja
- Afstand vand 5 km
- Internet Ja
- Opvaskemaskine Ja
Alle faciliteter
-
Afstand
-
Center1,2 km
-
Lufthavn MUC158,8 km
-
Lufthavn NUE160,6 km
-
Offentlig transport1,5 km
-
Ski8 km
-
Sø5 km
-
-
Husinfo
-
Antal badeværelser1
-
Antal soveværelser1
-
Antal værelser3
-
BBQ
-
Boligareal46 m²
-
DVD
-
Fryser
-
Husdyr1
-
Håndklæder gratis
-
Internet
-
Internet (DSL)
-
Internet (ISDN)
-
Køleskab
-
Linnedfri
-
Mikroovn
-
Natur
-
Opvaskemaskine
-
Parkering overdækket
-
Radiator
-
Skiområde
-
Terrasse
-
WLAN
-
-
Tema
-
Bjergsøer
-
Miniferie
Der er mulighed for miniferie hele året.
Pris
Periode
- Ankomst
- Afrejse
- Varighed
- 1 uge
Personer
Op til 4 personer
Bemærk
Ankomst er ikke valgt.