Alternative emner
I nærheden (2)Ferielejlighed - 4 personer - Neuenhammer - 92697 - Georgenberg
-
Georgenberg
-
4 personer
-
Boligareal-
-
Emne nr.:530-647929
Beskrivelse
Beskrivelsen foreligger desværre ikke på Dansk. Se teksten på Tysk nedenfor, eller se den maskinoversatte tekst på Dansk.
Modul Häuser Maurer, Ferienwohnung zum Hirschblick
Lage & Umgebung
Erleben Sie Ihren Urlaub in unseren neu erbauten Modulhäusern (Tiny) in Neuenhammer. Im Herzen des Zottbachtals im Oberpfälzer Wald und direkt am Glasschleifer Wanderweg gelegen.
Räumlichkeiten & Ausstattung
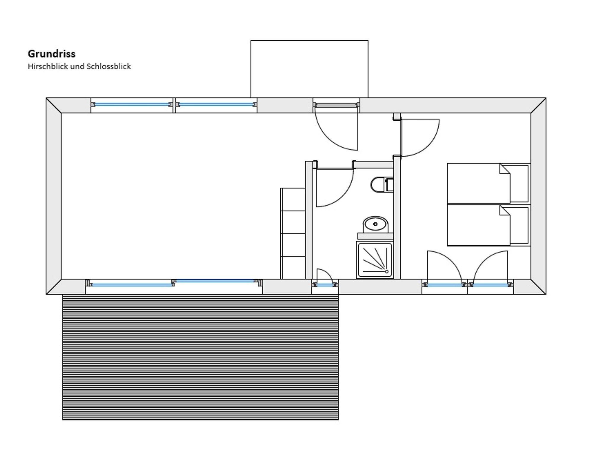
46 qm barrierefreie Ferienwohnung mit Terrasse und großer Wiese.
Räumlichkeiten:
1 großes, helles Schlafzimmer mit einem Doppelbett und großzügigem Schrank. Schlafcouch für weitere 2 Personen im Wohnbereich. Bettwäsche wird gestellt. Auf Anfrage stellen wir auch ein Babyreisebett.
Großzügige Wohn-Ess-Küche mit großem Esstisch für 4 Personen, Zugang zur Terrasse mit Blick auf unser Hirschgehege. Kühlschrank, Spülmaschine, Ceranfeld mit 2 Kochstellen, Filterkaffeemaschine, Wasserkocher, Toaster und reichhaltiges Geschirr. Geschirrtücher werden gestellt.
Terrasse ca. 18 qm zum Relaxen. Gartentisch und Stühle sind vorhanden.
Bad mit großzügiger barrierefreier Dusche, Waschbecken und WC. 1 Satz Handtücher wird gestellt.
Ausstattung
Zentrale Flächenheizung
Internetzugang über WLAN (kostenfrei)
Garderobe mit Schuhbank
Unterstellmöglichkeit für Fahrzeuge
Ski- und Schlitten-Unterbringungsraum
Bei Bedarf Kinderhochstuhl und Wäscheständer
Auf Anfrage können Sie in unserer Gaststätte einkehren
In nächster Nähe
50 m Hirschgehege
100 m Schönwert-Märchenwanderweg
4 km Emma´s Dorfmarkt Georgenberg, Einkaufen 24/7, alles für den täglichen Gebrauch
6 km Waldthurn: Marktladen mit Bäckerei, Metzgerei
7 km Pleystein: Supermarkt mit Bäckerei, Metzgerei, Getränkemarkt
12 km Vohenstrauß: mehrere Einkaufsmöglichkeiten
14 km: Waidhaus mit Grenzübergang in die Tschechische Republik
Konditionen
Stornierungen bis zu 14 Tage vor Anreise sind kostenfrei. Bei Stornierungen bis zu 7 Tage vor Anreise werden 50% berechnet. Bei späteren Stornierungen werden 100% des Übernachtungspreises fällig.
Die Anreise ist zwischen 14:00 Uhr und 23:00 Uhr möglich.
Die Abreise ist zwischen 10:00 Uhr und 10:00 Uhr möglich.
Schlüsselübergabe: Türcode
Erleben Sie Ihren Urlaub in unseren neu erbauten Modulhäusern (Tiny) in Neuenhammer. Im Herzen des Zottbachtals im Oberpfälzer Wald und direkt am Glasschleifer Wanderweg gelegen.
Räumlichkeiten & Ausstattung
46 qm barrierefreie Ferienwohnung mit Terrasse und großer Wiese.
Räumlichkeiten:
1 großes, helles Schlafzimmer mit einem Doppelbett und großzügigem Schrank. Schlafcouch für weitere 2 Personen im Wohnbereich. Bettwäsche wird gestellt. Auf Anfrage stellen wir auch ein Babyreisebett.
Großzügige Wohn-Ess-Küche mit großem Esstisch für 4 Personen, Zugang zur Terrasse mit Blick auf unser Hirschgehege. Kühlschrank, Spülmaschine, Ceranfeld mit 2 Kochstellen, Filterkaffeemaschine, Wasserkocher, Toaster und reichhaltiges Geschirr. Geschirrtücher werden gestellt.
Terrasse ca. 18 qm zum Relaxen. Gartentisch und Stühle sind vorhanden.
Bad mit großzügiger barrierefreier Dusche, Waschbecken und WC. 1 Satz Handtücher wird gestellt.
Ausstattung
Zentrale Flächenheizung
Internetzugang über WLAN (kostenfrei)
Garderobe mit Schuhbank
Unterstellmöglichkeit für Fahrzeuge
Ski- und Schlitten-Unterbringungsraum
Bei Bedarf Kinderhochstuhl und Wäscheständer
Auf Anfrage können Sie in unserer Gaststätte einkehren
In nächster Nähe
50 m Hirschgehege
100 m Schönwert-Märchenwanderweg
4 km Emma´s Dorfmarkt Georgenberg, Einkaufen 24/7, alles für den täglichen Gebrauch
6 km Waldthurn: Marktladen mit Bäckerei, Metzgerei
7 km Pleystein: Supermarkt mit Bäckerei, Metzgerei, Getränkemarkt
12 km Vohenstrauß: mehrere Einkaufsmöglichkeiten
14 km: Waidhaus mit Grenzübergang in die Tschechische Republik
Konditionen
Stornierungen bis zu 14 Tage vor Anreise sind kostenfrei. Bei Stornierungen bis zu 7 Tage vor Anreise werden 50% berechnet. Bei späteren Stornierungen werden 100% des Übernachtungspreises fällig.
Die Anreise ist zwischen 14:00 Uhr und 23:00 Uhr möglich.
Die Abreise ist zwischen 10:00 Uhr und 10:00 Uhr möglich.
Schlüsselübergabe: Türcode
46 qm barrierefreie Ferienwohnung mit Terrasse und großer Wiese.
DIe Ferienwohnung verfügt über 1 großes, helles Schlafzimmer mit einem Doppelbett und großzügigem Schrank. Schlafcouch für weitere 2 Personen im Wohnbereich. Bettwäsche wird gestellt. Auf Anfrage stellen wir auch ein Babyreisebett. Großzügige Wohn-Ess-Küche mit großem Esstisch für 4 Personen, Kochfeld mit zwei Kochplatten, Zugang zur Terrasse mit Blick auf unser Hirschgehege. Kühlschrank, Spülmaschine, Ceranfeld mit 2 Kochstellen, Filterkaffeemaschine, Wasserkocher, Toaster und reichhaltiges Geschirr. Geschirrtücher werden gestellt. Terrasse ca. 18 qm zum Relaxen. Gartentisch und Stühle sind vorhanden. Bad mit großzügiger barrierefreier Dusche, Waschbecken und WC. 1 Satz Handtücher wird gestellt.
Konditionen
Haustiere sind nicht erlaubt.
Ein Babybett kann auf Anfrage kostenfrei zur Verfügung gestellt werden.
DIe Ferienwohnung verfügt über 1 großes, helles Schlafzimmer mit einem Doppelbett und großzügigem Schrank. Schlafcouch für weitere 2 Personen im Wohnbereich. Bettwäsche wird gestellt. Auf Anfrage stellen wir auch ein Babyreisebett. Großzügige Wohn-Ess-Küche mit großem Esstisch für 4 Personen, Kochfeld mit zwei Kochplatten, Zugang zur Terrasse mit Blick auf unser Hirschgehege. Kühlschrank, Spülmaschine, Ceranfeld mit 2 Kochstellen, Filterkaffeemaschine, Wasserkocher, Toaster und reichhaltiges Geschirr. Geschirrtücher werden gestellt. Terrasse ca. 18 qm zum Relaxen. Gartentisch und Stühle sind vorhanden. Bad mit großzügiger barrierefreier Dusche, Waschbecken und WC. 1 Satz Handtücher wird gestellt.
Konditionen
Haustiere sind nicht erlaubt.
Ein Babybett kann auf Anfrage kostenfrei zur Verfügung gestellt werden.
Populære faciliteter
- Soverum 1
- Husdyr Ikke tilladt
- Tilbyder miniferie Ja
- Swimmingpool Ja
- Internet Ja
- Opvaskemaskine Ja
- Ikkeryger Ja
Alle faciliteter
-
Aktivitetsfaciliteter
-
Cykeludlejning
-
-
Børnefaciliteter
-
Familievenlig
-
-
Indkvartering Faciliteter
-
Allergivenlig
-
Ikke-ryger hus
-
Internet i det offentlige område
-
Kreditkort
-
Vandrer venlig
-
-
Omgivende faciliteter
-
Cykelrum
-
Garage
-
Parkeringsplads
-
Pool
-
-
Servicefaciliteter
-
Allergikere (dyrefri)
-
Bad/toilet
-
Dobbeltseng
-
Dyr ikke tilladt
-
Højstol
-
Håndklæder
-
Ikke-rygere
-
Internet - WiFi
-
Kaffemaskine
-
Køleskab
-
Mikroovn
-
Opvarmet
-
Opvaskemaskine
-
På jorden
-
Røgalarm
-
Sengetøj
-
Separat køkken
-
Terrasse
-
Toaster
-
TV
-
Miniferie
Der er mulighed for miniferie hele året.
Prices and calendar
Pris
Periode
- Ankomst
- Afrejse
- Varighed
- 1 uge
Personer
Ingen personer er valgt
Bemærk
Ankomst er ikke valgt.
Der er ikke valgt personer.