- 4 personer - Trollvägen - 38696 - Färjestaden
Alternative emner
I nærheden (3)Oversigt
- Badeværelser 1
- Boligareal 33 m²
- Husdyr 2
- Tilbyder miniferie Ja
- Afstand vand 4 km
- Afstand indkøb 1.600 m
- Ikkeryger Ja
- Energivenligt Ja
Beskrivelse
Supergulligt 1800-tals hus som är helt nyrenoverat och smakfullt inrett där ni kan njuta av härliga semesterdagar.
Här kan ni njuta av lugnet samtidigt som ni endast har 4 km in till Färjestadens stora utbud av restauranger, glasscaféer och underbara badstränder. Närmsta restaurang finns i Arontorp där ni kan njuta av mycket omtyckta kroppkakor med mera. Ni har en trädgård med utemöbler som är omgiven av vackra stenmurar där det finns ännu ett vackert hus som inte ingår i uthyrningen, men ni har hela trädgården för er själva då detta hus inte används.
Huset har ett stort sällskapsrum med en vacker murad vedspis där ni kan tända ljus och njuta av atmosfären under de vackra takbjälkarna. Ingen eldning är tillåten i spisen. Ni har två snygga soffor som bäddas ut till bekväma dubbelsängar med sköna pocketresårmadrasser.
I den trevliga köksdelen med matplats finns kaffemaskin, bistrobryggare m.m. Ni har ett badrum med wc, handfat och dusch. I området finns gott om promenadstråk och är en plats många besöker för att få se Arontorpsrosen när den blommar Kristihimmelshelgen. Ni har nära till Jordtorpsåsens naturreservat som är ett populärt utflyktsmål som bjuder på omväxlande natur och spännande kulturhistoria och fornlämningar. Njut av en härlig semester.
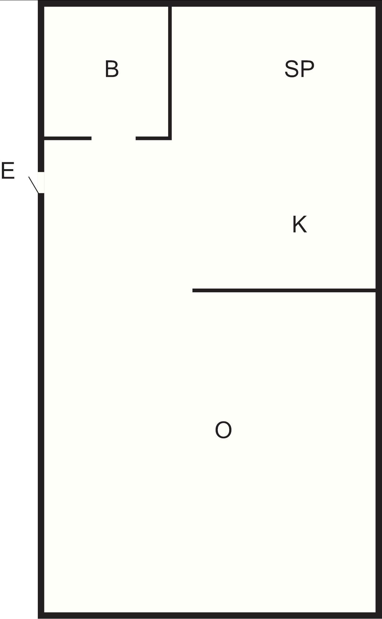
1 Opholdsstue: (2DO)
Køkken: Elkogepl., ovn, køle-frys, mikroovn, kaffemaskine
Bad/wc: Wc, håndvask, bruser
Og: Luft/luft varmepumpe, anlagt have 3000 m2, villakvarter, ikke-ryger hus
Vores gæsteanmeldelser Eksterne anmeldelser
Faciliteter
-
Afstand
-
Bank3,5 km
-
De også12 m
-
Golf18,5 km
-
Indkøb1,6 km
-
Kyst4 km
-
Kyst (badestrand)4 km
-
Parkering10 m
-
Restaurant850 m
-
Ved1,6 km
-
-
Bad
-
Bruser
-
Håndvask
-
WC
-
-
Diverse
-
Antal badeværelser1
-
Boligareal33 m²
-
Byggeår1906
-
Energihus
-
Husdyr tilladt
-
Ikke ryger
-
Luft/luft varmepumpe
-
Renoveret2023
-
-
Køkken
-
Elkogeplader
-
Kaffemaskine
-
Køle-frys
-
Mikroovn
-
Ovn
-
-
Udendørs
-
Bademuligheder (lavvandet)
-
Bademuligheder fra bro
-
Bademuligheder fra sandstrand
-
Miniferie
Priser og kalender
Kalender
Pris
- Ankomst
- Afrejse
- Varighed
- 1 uge
