Ferielejlighed - 6 personer - Methon - 24000
Alternative emner
I nærheden (2)6 personer
Oversigt
Emne nr.: 309-GR2123.602.1
7 overnatninger
Fra
DKK 14.895,-
Inkl. rengøring og forsikring
6
personer
- Soverum 2
- Badeværelser 2
- Boligareal 95 m²
- Husdyr Ikke tilladt
- Tilbyder miniferie Ja
- Afstand vand 10 m
- Internet Ja
- Brændeovn Ja
- Gode fiskeforhold Ja
- Aircondition Ja
- Vaskemaskine Ja
- Opvaskemaskine Ja
- Ikkeryger Ja
Beskrivelse
Beskrivelsen foreligger desværre ikke på Dansk. Se teksten på Engelsk nedenfor, eller se den maskinoversatte tekst på Dansk.
Luxury beachfront apartment with a private panoramic sea view terrace
This luxury 95 sqm private suite is located in front of the amazing beach of Sikia in the Corinthian Gulf. So you can reach the beach just by making only 3 steps.
The serene pine forest of Peykias and the beautiful beaches are just 2 minutes walking distance.
It is the best destination for those who search for relaxing and romantic moments. Families will appreciate the calmness and comfort in their holidays at the private suite.
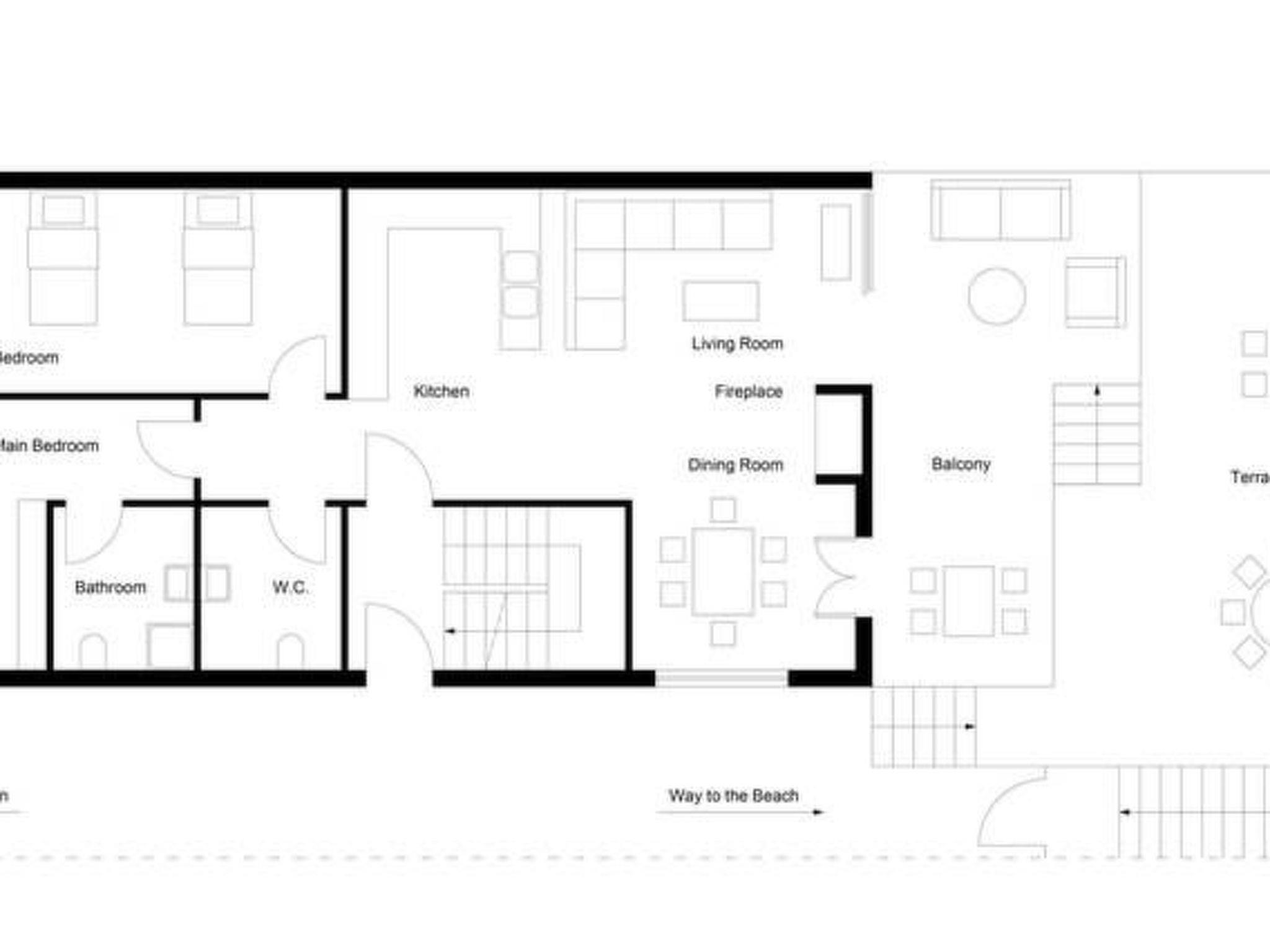
The apartment can accommodate up to six persons. It includes one master bedroom with a double bed, one bedroom with two single beds, a bathroom complete with washing machine, WC, a living room with a big dining table and fireplace, TV, DVD player, Wi-Fi, and fully furnished kitchen with facilities such as fridge, oven, dish washer, kettle, coffee machine, microwave. Sheets and towels provided. Two extra beds can be added to the living room. The apartment has an heating and air conditioning system.
The apartment has a 120 sqm terrace with BBQ facilities. The view from the spacious terrace is amazing and it gives you the opportunity to enjoy great meals at any time of the day.
Basic information
- Pets allowed: none
- type of apartment: Granny flat
- type of building: Multiple-family dwelling
- Floor on which the object can be found: 1. floor
- Total number of floors in the building above the ground floor: 1
- non-smoking
- Number of bedrooms: 2
- Number of bathrooms: 2
Top features
- WiFi
- air conditioning: Everywhere
- heating: Everywhere
- terrace
- garden: For communal use
- Total of private car parking spaces: None
- ? of which garage spaces: None
- ? of which carport spaces: None
- ? of which private outdoor parking spaces: None
- distance to public multi-storey car park: 10 m
Sleeping
bedroom 2
- double bed (from 1.51 m to 1.79 m width)
bedroom 4
- 2x single bed
in the living area
- 2x extra bed
Bathroom
bathroom 2
- shower
- basin
bathroom 4
- bath tub
- basin
- toilet
Cooking/Living
- coffee machine: filter coffee machine, coffee machine
- fridge/freezer: freezing compartment, fridge
- stove: ceramic hob, electric stove, stove
- oven
- toaster
- microwave
- electric kettle
- dishwasher
- number of dining tables: no
- number of seats: no
- fireplace
Entertainment
- TV: TV, satellite TV
- DVD player
- music system
- radio
- CD player
Utility
- washing machine: For sole use in the object
- iron
- vaccum cleaner
- safe
Outside area
- veranda
- grill/barbecue: grill/barbecue
Surroundings
- view: sea/lake
- Nearest town centre: 3,0 km
- Grocery store: 10 m
- going out: 10 m
- train station: 9,0 km
- airport: 140,0 km
- port: 100,0 km
- beach: 10 m
- water (sea, lake, etc.): 10 m
- sea: 10 m
Distinctive features
- Suitable for fishing
- architecture and design houses
Type of building: Multiple-family dwelling.
This luxury 95 sqm private suite is located in front of the amazing beach of Sikia in the Corinthian Gulf. So you can reach the beach just by making only 3 steps.
The serene pine forest of Peykias and the beautiful beaches are just 2 minutes walking distance.
It is the best destination for those who search for relaxing and romantic moments. Families will appreciate the calmness and comfort in their holidays at the private suite.
The apartment can accommodate up to six persons. It includes one master bedroom with a double bed, one bedroom with two single beds, a bathroom complete with washing machine, WC, a living room with a big dining table and fireplace, TV, DVD player, Wi-Fi, and fully furnished kitchen with facilities such as fridge, oven, dish washer, kettle, coffee machine, microwave. Sheets and towels provided. Two extra beds can be added to the living room. The apartment has an heating and air conditioning system.
The apartment has a 120 sqm terrace with BBQ facilities. The view from the spacious terrace is amazing and it gives you the opportunity to enjoy great meals at any time of the day.
Basic information
- Pets allowed: none
- type of apartment: Granny flat
- type of building: Multiple-family dwelling
- Floor on which the object can be found: 1. floor
- Total number of floors in the building above the ground floor: 1
- non-smoking
- Number of bedrooms: 2
- Number of bathrooms: 2
Top features
- WiFi
- air conditioning: Everywhere
- heating: Everywhere
- terrace
- garden: For communal use
- Total of private car parking spaces: None
- ? of which garage spaces: None
- ? of which carport spaces: None
- ? of which private outdoor parking spaces: None
- distance to public multi-storey car park: 10 m
Sleeping
bedroom 2
- double bed (from 1.51 m to 1.79 m width)
bedroom 4
- 2x single bed
in the living area
- 2x extra bed
Bathroom
bathroom 2
- shower
- basin
bathroom 4
- bath tub
- basin
- toilet
Cooking/Living
- coffee machine: filter coffee machine, coffee machine
- fridge/freezer: freezing compartment, fridge
- stove: ceramic hob, electric stove, stove
- oven
- toaster
- microwave
- electric kettle
- dishwasher
- number of dining tables: no
- number of seats: no
- fireplace
Entertainment
- TV: TV, satellite TV
- DVD player
- music system
- radio
- CD player
Utility
- washing machine: For sole use in the object
- iron
- vaccum cleaner
- safe
Outside area
- veranda
- grill/barbecue: grill/barbecue
Surroundings
- view: sea/lake
- Nearest town centre: 3,0 km
- Grocery store: 10 m
- going out: 10 m
- train station: 9,0 km
- airport: 140,0 km
- port: 100,0 km
- beach: 10 m
- water (sea, lake, etc.): 10 m
- sea: 10 m
Distinctive features
- Suitable for fishing
- architecture and design houses
Type of building: Multiple-family dwelling.
Licens nr.: 1247?134?0382001
Vores gæsteanmeldelser Eksterne anmeldelser
Faciliteter
-
Afstand
-
Center3 km
-
Hav10 m
-
Vand10 m
-
-
Husinfo
-
Aircondition
-
Antal badeværelser2
-
Antal soveværelser2
-
Antal værelser5
-
Bad og bruser
-
BBQ
-
Boligareal95 m²
-
Bruser
-
Certificeret fiskeri
-
DVD
-
Fryser
-
Garage
-
Have
-
Håndklæder gratis
-
Ikke rygere
-
Ingen kæledyr tilladt
-
Internet
-
Internet (DSL)
-
Internet (ISDN)
-
Køleskab
-
Linnedfri
-
Mikroovn
-
Opvaskemaskine
-
Ovn
-
Pejs
-
Radiator
-
Terrasse
-
TV
-
Tv International
-
Vaskemaskine
-
WLAN
-
Miniferie
Der er mulighed for miniferie hele året.
Priser og kalender
Kalender
Varighed
Personer
Pris
Periode
- Ankomst
- Afrejse
- Varighed
- 1 uge
Personer
Ingen personer er valgt
Bemærk
Ankomst er ikke valgt.
Der er ikke valgt personer.
